EasyManua.ls Logo

SIMDA 3215 - Page 21

Default Icon
50 pages
Print Icon
To Next Page IconTo Next Page
To Next Page IconTo Next Page
To Previous Page IconTo Previous Page
To Previous Page IconTo Previous Page
Loading...
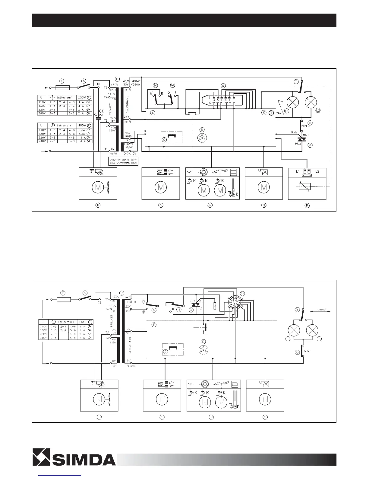
SERVICE MANUAL 19
01B
SCHEMAS - DIAGRAMS
3262 - 3462
3234 AF

Related product manuals