EasyManua.ls Logo

SIMDA 3215 - Oplite

Default Icon
50 pages
Print Icon
To Next Page IconTo Next Page
To Next Page IconTo Next Page
To Previous Page IconTo Previous Page
To Previous Page IconTo Previous Page
Loading...
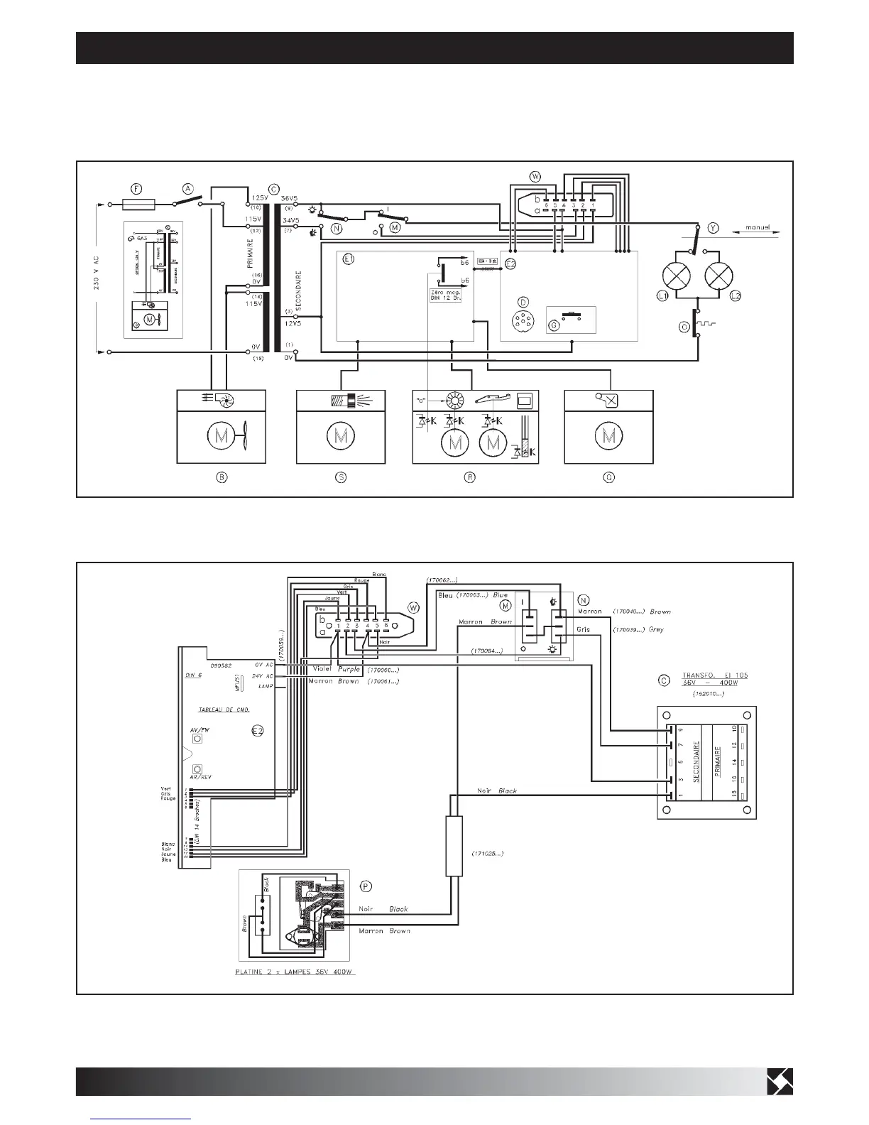
20 SERVICE MANUAL
SCHEMAS - DIAGRAMS
01B
3450 AF (OPLITE 7)
3450 AF (OPLITE 7)

Related product manuals