EasyManua.ls Logo

SIMDA 3215 - Page 29

Default Icon
50 pages
Print Icon
To Next Page IconTo Next Page
To Next Page IconTo Next Page
To Previous Page IconTo Previous Page
To Previous Page IconTo Previous Page
Loading...
SERVICE MANUAL 27
01B
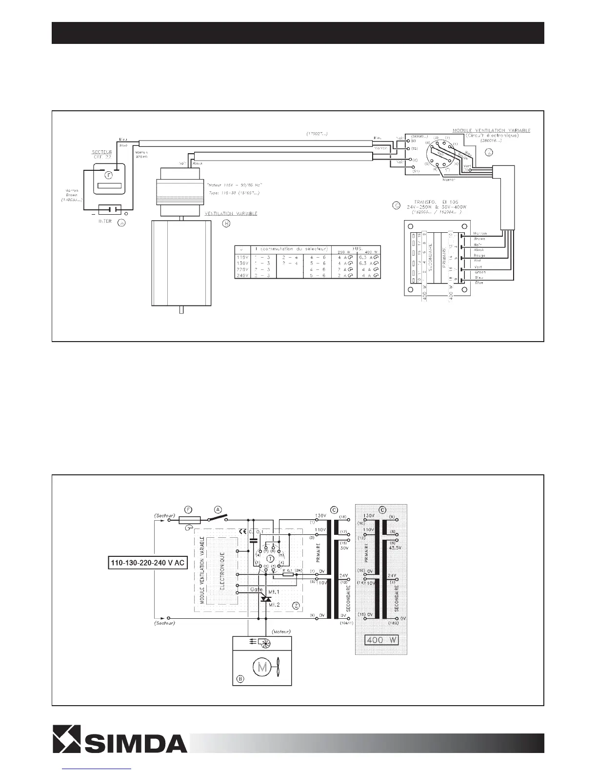
VENTILATION VARIABLE - VARIABLE VENTILATION

Related product manuals