EasyManua.ls Logo

Sime MURELLE - Murelle BF Coaxial Flue Assembly

Sime MURELLE
33 pages
Print Icon
To Next Page IconTo Next Page
To Next Page IconTo Next Page
To Previous Page IconTo Previous Page
To Previous Page IconTo Previous Page
Loading...
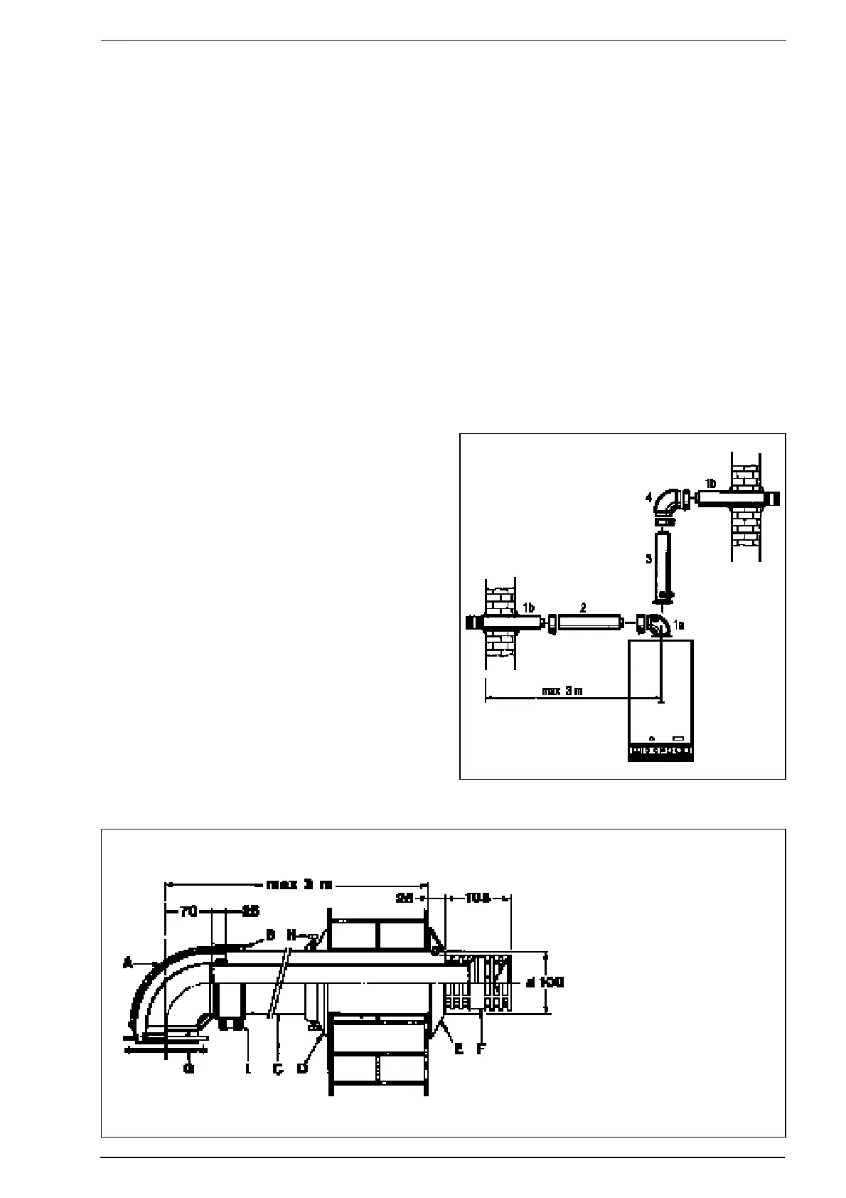
2.6 “MURELLE BF” COAXIAL AIR INLET-FLUE
OUTLET ASSEMBLY
The air inlet-flue outlet assembly is supplied apart (optio-
nal) in a kit (Code 8084802). It includes:
coaxial duct ø 60/100, length 840, with wind-proof
(anti-blowback) head already fixed to the flue dischar-
ge duct;
pipe bend ø 60/100 with fixing screws;
fixing clamp;
rubber ring nut for external closing;
sponge-rubber gasket.
2.6.1 Assembly of the coaxial duct kit
For assembly follow closely what is indicated in Fig. 8.
Make a hole in the wall sufficiently large to allow for
insertion of a 130 mm ø PVC pipe of the same length
as the thickness of the wall it has to pass through.
Then fix the PVC pipe in place using cement mortar.
WARNING: When cutting the pipe, remember that
the 60 mm ø flue discharge pipe must be approx.
25 mm longer than the air intake tube.
Before sliding the pipe into the hole made in the wall,
insert the rubber sealing ring (E) into its seat made in
the tube.
Push the tube outwards until the gasket comes out. Pull
the pipe inwards bringing the ring to rest on the wall.
Slide the inner ring (D) and the metal collar (I) onto the
pipe.
Push the flue discharge duct (F) fully home in the bend
and fasten the metal collar (I) in position, tightening the
two fixing screws.
Fasten the duct (C) by tightening the two screws (H) on
the aluminium ring nut (D).
NOTE: The air intake-flue outlet assembly must slope
gently downwards to prevent rain water getting into
the boiler.
2.6.2 Coaxial air intake-flue outlet assembly
accessories
In addition to the coaxial duct kit, also the following can
be supplied on request (Fig. 9):
Extension ø 60/100, length 855 (Code 8084800)
Supplementary 90° pipe elbow ø 60/100 (Code
8085600)
Vertical extension ø 60/100, length 590 (Code 8086900).
NOTE: With the pipe bend supplied in the kit, the maxi-
mum length of piping should not exceed 3 metres. In
the case where the supplementary bend (4) is used, the
total length of piping can reach a maximum of 1.6 m.
When the vertical extension (3) is used, the terminal
part of the pipe must always come out horizontally.
8
KEY
1 Coaxial duct kit
2 Extension L. 855
3 Vertical extension L. 590
4 90° supplementary elbow
Fig. 8
Fig. 9
KEY
A Elbow flange
B Junction collar
C Outer duct
D Aluminium ring
E Rubber sealing ring
F Inner duct c/w terminal
H Fixing screw
I Protective metal collar
J Inner “O” ring

Related product manuals