EasyManua.ls Logo

Simplex 4098-9687 - Magnetic Test for Photoelectric Detectors

Simplex 4098-9687
28 pages
Print Icon
To Next Page IconTo Next Page
To Next Page IconTo Next Page
To Previous Page IconTo Previous Page
To Previous Page IconTo Previous Page
Loading...
15
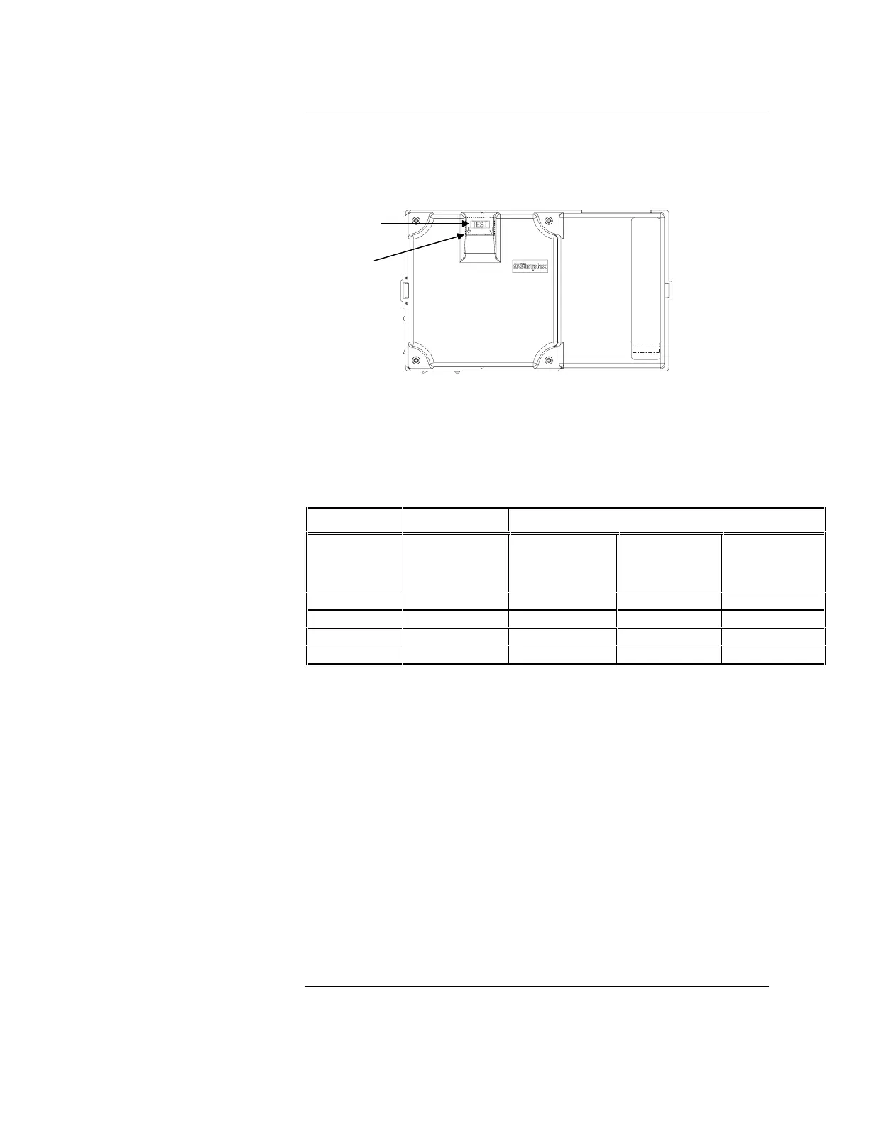
The 4098-9601 photoelectric detector may be tested by placing a magnet at the
location indicated by a TEST mark embossed on the cover for four (4)
seconds (see Figure 12). Use the Simplex Magnet Tester (Part No. 553-810),
Table 3, and the following information to test detectors.
Figure 12. Magnet Test Location
Table 3 describes the detector LED reaction during Normal and MAG TEST
modes to the Normal, More Sensitive, Less Sensitive, and Non-Functional states
of the detector.
Table 3. MAG TEST/Normal Modes - States and Reactions
STATE Normal Mode MAG TEST Mode
LED flashes
every 4 secs.
LED Flashes
Quickly 6 Times
in 3 secs.
LED Flashes
Slowly 4 Times
In 8 secs.
Latches in Alarm
Mode/LED stays
ON
Normal
XX
More Sensitive
XX X
Less Sensitive
XXX
Non-Functional
X
When placing the magnet near the location (see Figure 12) indicated by a
TEST mark embossed on the cover, the visible LED flashes indicating the
detector's condition. The following are descriptions of what you should see
when using the MAG TEST.
NORMAL - When in MAG TEST, the detector latches into alarm if the
detector is within calibration range and the visible LED stays ON.
MORE SENSITIVE - When in MAG TEST, if the detector is more
sensitive than the maximum calibration, the visible LED quickly flashes,
twice a second. Following the sixth flash, the detector latches into alarm
and the visible LED stays ON.
LESS SENSITIVE - When in MAG TEST, if the detector is less sensitive
than the minimum calibration, the visible LED slowly flashes four times,
once every two seconds. Following the fourth flash, the detector latches
into alarm and the visible LED stays ON.
Continued on next page
Installation, Continued
Magnetic Test for
Photoelectric Detectors
TEST MARK
ON COVER
PLACE MAGNET TESTER FLAT
(INDICATED BY DASHED LINES)
firealarmresources.com

Related product manuals