EasyManua.ls Logo

Smeg STL867A - Page 4

Smeg STL867A
15 pages
Print Icon
To Next Page IconTo Next Page
To Next Page IconTo Next Page
To Previous Page IconTo Previous Page
To Previous Page IconTo Previous Page
Loading...
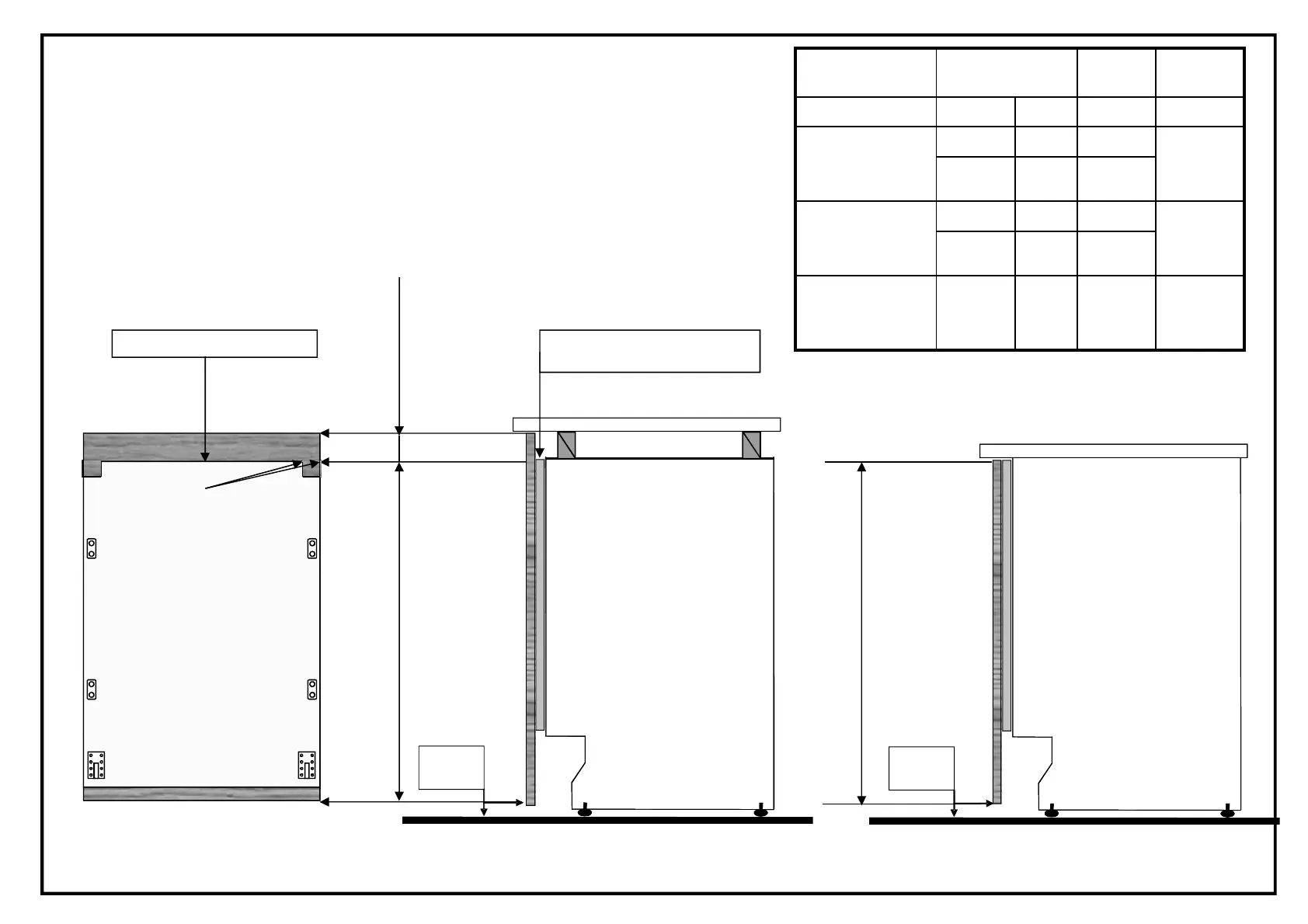
GEPERSONALISEERDEINSTALLATIE
Hoogte deur
mm. (maat “A”)
Model Min. Max Dikte Gewicht
STL867A
STLA868A
STL/STLA865A
840 880 3 2,5-9
881 885 2,5
STL827A
STLA828A
STL/STLA825A
800 840 3 2,5-9
841 845 2,5
STL827B
STLA828B
STL/STLA825B
760 800 3 2,5-9
LET OP: Wij bevelen de standard installatie aan.
Bij een gepersonaliseerde installatie (aanwezigheid maat “B”) raden wij het
gebruik aan van lichtere deuren( 8,5 kg).
25 mm.
Minimum
25 mm.
Minimum
STANDAARDINSTALLATIE
MAAT A
MAAT “A“
PLAATS DE SJABLOON
BIJ MAAT “B”
LAAT DE BOVENSTE
RAND VAN DE
SJABLOON
OVEREENSTEMMEN MET
DE BOVENSTE RAND VAN
HET BEDIENINGSPANEEL
MAAT “B“
BOVENSTE RAND SJABLOON BOVENSTE RAND
BEDIENINGSPANEEL

Related product manuals