EasyManua.ls Logo

Smeg STL867A - Page 3

Smeg STL867A
15 pages
Print Icon
To Next Page IconTo Next Page
To Next Page IconTo Next Page
To Previous Page IconTo Previous Page
To Previous Page IconTo Previous Page
Loading...
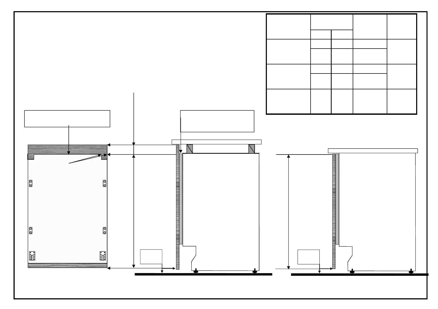
INSTALLATION PERSONNALISÉE
PERSONALISIERTE INSTALLATION
Modè
èè
èle
Modell
Hauteur «
««
« A »
»»
»
Mass
A
É
ÉÉ
Épaisseur
Stä
ää
ärke
Poids
Gewicht
Min. Max.
STL867A
STLA868A
STL/STLA865A
840 880 3 2,5-9
881 885 2,5
STL827A
STLA828A
STL/STLA825A
800 840 3 2,5-9
841 845 2,5
STL827B
STLA828B
STL/STLA825B
760 800 3 2,5-9
ATTENTION : Linstallation standard est conseillée.
En cas d'installation personnalisé
éé
ée (présence hauteur « B »), il est conseillé
d'utiliser des portes plus lé
éé
égè
èè
ères ( 8,5 kg).
ACHTUNG: Es wird die Standardinstallation empfohlen.
Für die personalisierte Installation (Maß „B“) empfiehlt sich die Verwendung
der erleichterten Platte ( 8,5 kg).
25 mm.
Min.
25 mm.
Min.
INSTALLATION STANDARD
STANDARDINSTALLATION
HAUTEUR A -MASS A
HAUTEUR « A »-MASS « A »
POSITIONNER LE GABARIT À
ÀÀ
À
LA HAUTEUR «
««
« B »
»»
» FAIRE
COÏ
ÏÏ
ÏNCIDER LE NIVEAU
SUPÉ
ÉÉ
ÉRIEUR DU GABARIT
AVEC LE NIVEAU SUPÉ
ÉÉ
ÉRIEUR
DU BANDEAU
DIE SCHABLONE AUF MASS
„B“ POSITIONIEREN.
DIE OBERKANTE DER
SCHABLONE MIT DER
OBERKANTE DER
BEDIENBLENDE IN
ÜBEREINSTIMMUNG
BRINGEN.
HAUTEUR « B »
MASS « A »
NIVEAU SUPÉ
ÉÉ
ÉRIEUR DU GABARIT
OBERKANTE SCHABLONE
NIVEAU SUPÉ
ÉÉ
ÉRIEUR DU
BANDEAU
OBERKANTE BEDIENBLENDE

Related product manuals