EasyManua.ls Logo

SODICK A530D - Decide Upon the Wire Diameter

Default Icon
214 pages
Print Icon
To Next Page IconTo Next Page
To Next Page IconTo Next Page
To Previous Page IconTo Previous Page
To Previous Page IconTo Previous Page
Loading...
Wire EDM Machine Operation Chapter 4
Copyright November, 98 Page 4-4 Sodick Inc.
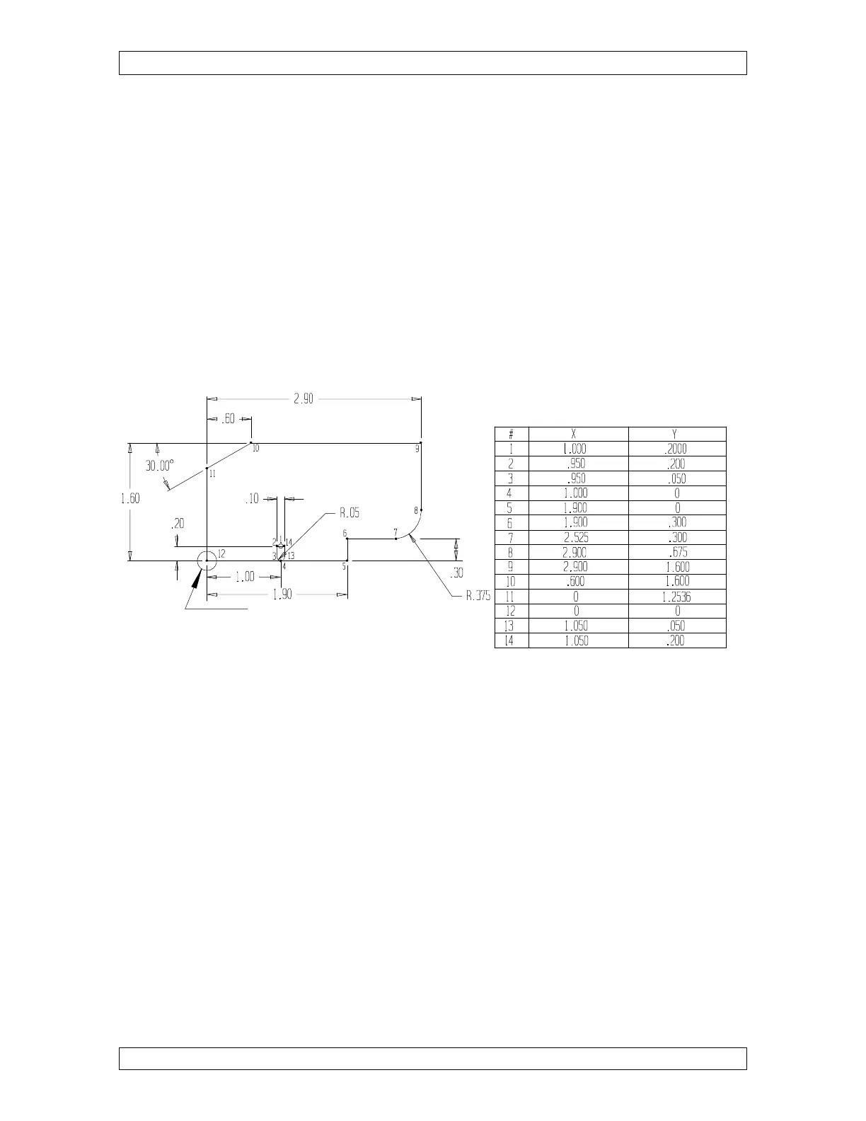
Notice that the programmer knows that this die will include an arc-on and off technique
to get a smooth entry and exit so he sketched in the approach movements and included
the entry and exit points in the coordinate sheet.
Once the coordinate sheet is filled in, the operator/programmer will be simply copying
the coordinates from the coordinate sheet right into the program. This obviously keeps
the operator/programmer from having to break out of his or her train of thought while
writing the program to come up with coordinates.
Another point to make about the coordinate sheet is that having it truly helps when trying
to correct any mistakes which have been made. While verifying the program at the
machine (during dry run or graphics), if you find a mistake, it will be easier to correct the
mistake if you have a coordinate sheet. Also, it may point in the direction of how the
mistake was made so you can improve in the future.
Figure 4-2
2) DECIDE UPON THE WIRE DIAMETER
Many times the print will specify a MAXIMUM inside radius allowed for one or more
radii. This means that you MUST use a wire size that is SMALLER than the maximum
allowed inside radius. For example, if your print specifies that an inside radius be no
greater than .005 inch, you may think that you could use .010 diameter wire (since the
wire radius is .005 inch). But you would be wrong! You must also consider the
“overburn” that is involved in the EDM process. A .010 diameter wire will cut a radius of
more than .005 inch (depending on the condition and number of skim passes), so if the
.005 inside radius is critical, a wire diameter of .008 inch or less must be used.
Point X Coordinate Y Coordinate
Program Zero

Table of Contents

Related product manuals