EasyManua.ls Logo

SODICK A600 - Page 54

Default Icon
214 pages
Print Icon
To Next Page IconTo Next Page
To Next Page IconTo Next Page
To Previous Page IconTo Previous Page
To Previous Page IconTo Previous Page
Loading...
Wire EDM Machine Operation Chapter 5
Copyright November, 98 Page 5-6 Sodick Inc.
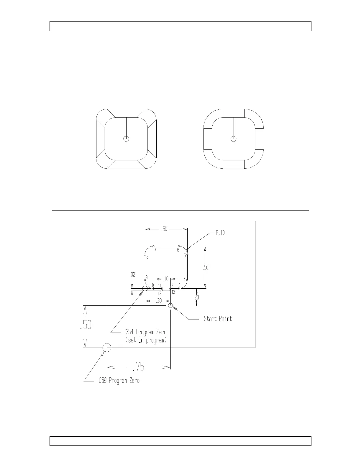
This type of radius is usually referred to as an isometric or constant radius.
For die relief, you will want the radius to expand as it reaches the bottom of the die. For
this type of radius, use the G02 and G03 style of programming.
For more details, see figure 5-6 or “Automatic Corner Rounding” on page 10-14.
Figure 5-6
EXAMPLE PROGRAM SHOWING THREE MOTION TYPES G00, G01, G03
Figure 5-7
Taper With G02 - 3 Corners
Taper With "R" Word Corners

Table of Contents

Related product manuals