EasyManua.ls Logo

Sofarsolar HYD 10KTL-3PH - 2.1.7 Repair and maintenance

Default Icon
76 pages
Print Icon
To Next Page IconTo Next Page
To Next Page IconTo Next Page
To Previous Page IconTo Previous Page
To Previous Page IconTo Previous Page
Loading...
HYD 5-20KTL-3PH User manual
Copyright © Shenzhen SOFARSOLAR Co., Ltd
- 7 -
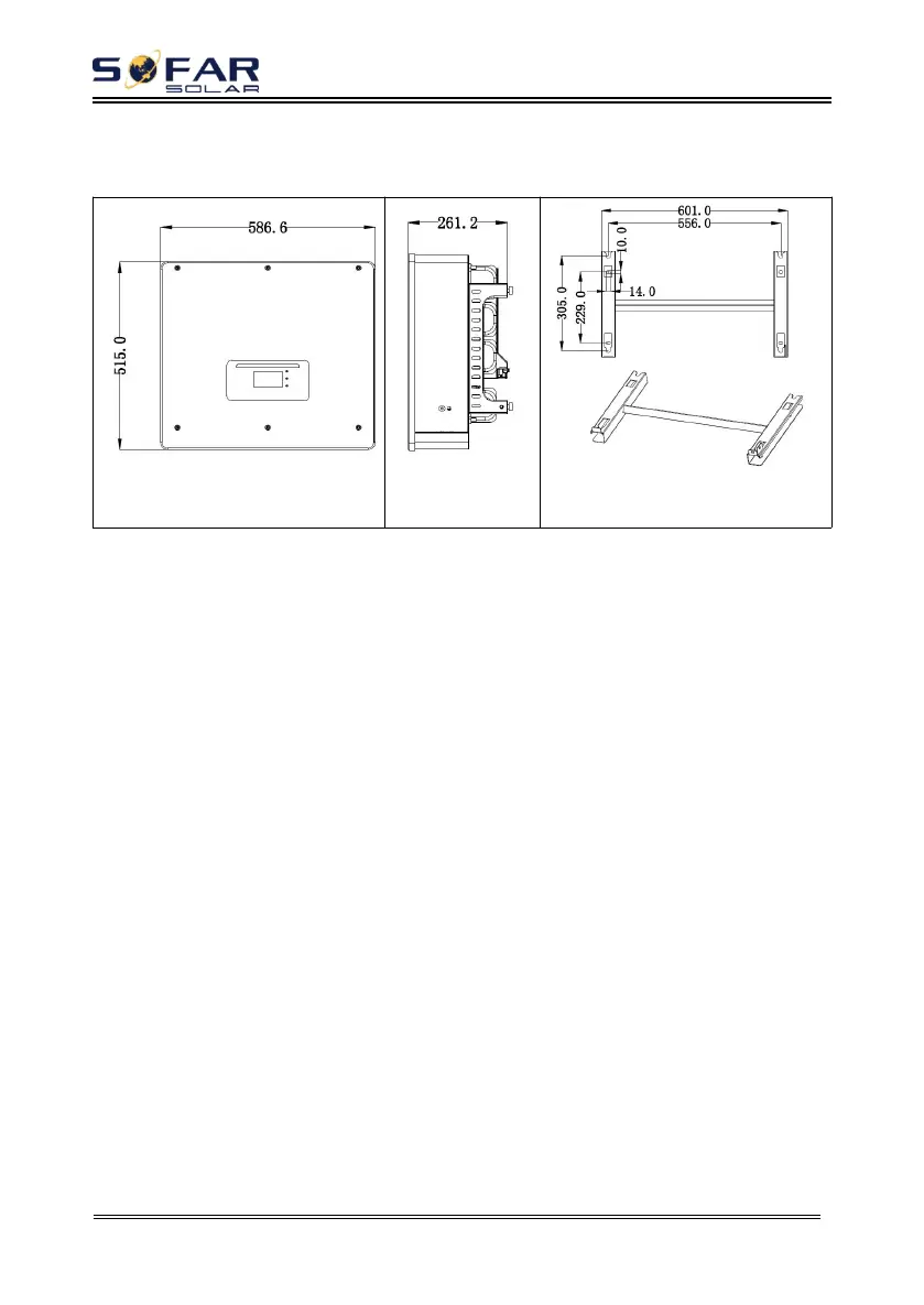
2.2. Size description
Fig. 2-2 Size chart
Front view
left view
Bracket
2.3. Function characteristics
The HYD 5-20KTL-3PH energy storage inverters allow up to 10%
overloading to maximize power output, and the Uninterruptible Power Supply
(UPS) mode can support inductive loads such as air conditioners or refrigerators
with an automatic switchover time of less than 20 milliseconds.
a. Dual MPP trackers with 1.5* DC overload.
b. Flexible switching between grid-tied mode and energy storage mode.
c. Max. battery charge and discharge efficiency 97.7%.
d. 2 strings of battery input with maximum 50A charge and discharge current.
e. Wide battery voltage range(180-800V).
f. Off-grid output can be connected to unbalanced load.
g. AC Multi-parallel function, more flexible system solution.
h.
Smart monitoring, RS485/WiFi/Bluetooth/GPRS(Optional).
2.4. Electrical block diagram
Fig. 2-3 Electrical block diagram

Other manuals for Sofarsolar HYD 10KTL-3PH

Related product manuals