EasyManua.ls Logo

solamagic DS 02007 - Page 13

solamagic DS 02007
Print Icon
To Next Page IconTo Next Page
To Next Page IconTo Next Page
To Previous Page IconTo Previous Page
To Previous Page IconTo Previous Page
Loading...
02/2015
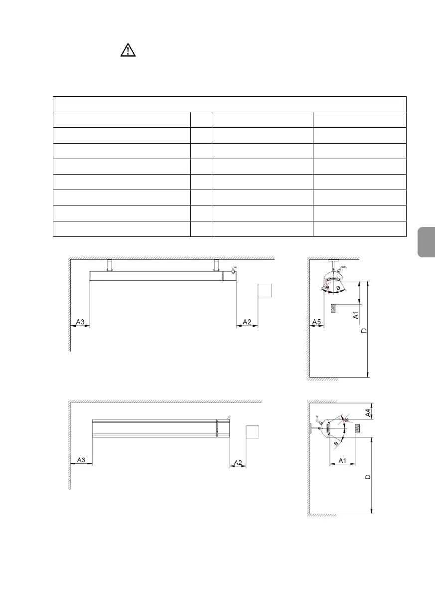
Anlage 2: Sicherheitsabstände
Mindestabstände in mm
Deckenmontage
Wandmontage
Abstand Fußboden/Gerät
D
1800
1800
Abstand angestahlte Fläche
A1
500
500
Abstand Steckdose
A2
100
100
Abstand seitliche Wand
A3
90
90
Abstand darüberliegende Decke
A4
-
170
Abstand dahinterliegende Wand
A5
90
-
Verstellbereich
α
30°
30°
D

Related product manuals