EasyManua.ls Logo

solamagic DS 02007 - Distanze DI Sicurezza

solamagic DS 02007
Print Icon
To Next Page IconTo Next Page
To Next Page IconTo Next Page
To Previous Page IconTo Previous Page
To Previous Page IconTo Previous Page
Loading...
02/2015
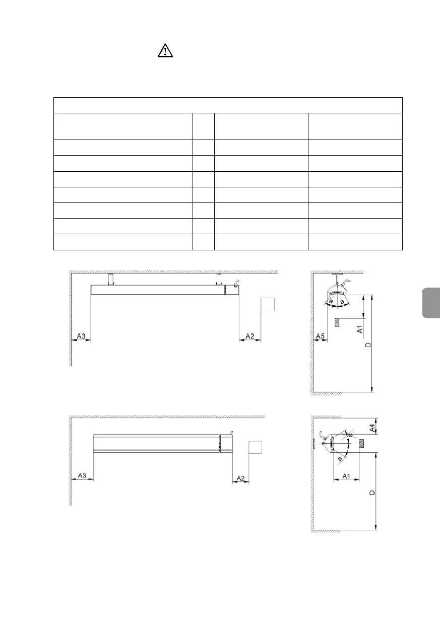
Allegato 2: Distanze di sicurezza
Distanze minime in mm
Montaggio a
soffitto
Montaggio a
parete
Distanza pavimento/apparecchio
D
1800
1800
Distanza superficie irradiata
A1
500
500
Distanza presa di corrente
A2
100
100
Distanza parete laterale
A3
90
90
Distanza soffitto sovrastante
A4
-
170
Distanza parete posteriore
A5
90
-
Campo di regolazione
α
30°
30°
IT

Related product manuals