EasyManua.ls Logo

solamagic DS 02007 - Page 26

solamagic DS 02007
Print Icon
To Next Page IconTo Next Page
To Next Page IconTo Next Page
To Previous Page IconTo Previous Page
To Previous Page IconTo Previous Page
Loading...
02/2015
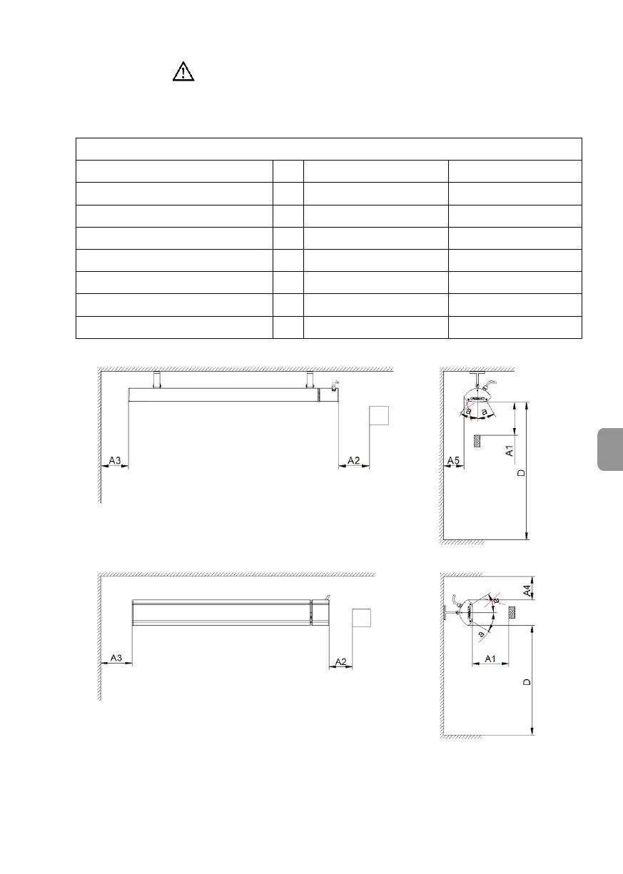
Bijlage 2: Veiligheidsafstanden
Minimale afstanden in mm
Plafondmontage
Wandmontage
Afstand vloer/apparaat
D
1800
1800
Afstand bestraald oppervlak
A1
500
500
Afstand stopcontact
A2
100
100
Afstand zijwand
A3
90
90
Afstand bovenliggend plafond
A4
-
170
Afstand achterliggende wand
A5
90
-
Verstellingsbereik
α
30°
30°
NL

Related product manuals