EasyManua.ls Logo

solamagic DS 02007 - Page 80

solamagic DS 02007
Print Icon
To Previous Page IconTo Previous Page
To Previous Page IconTo Previous Page
Loading...
02/2015
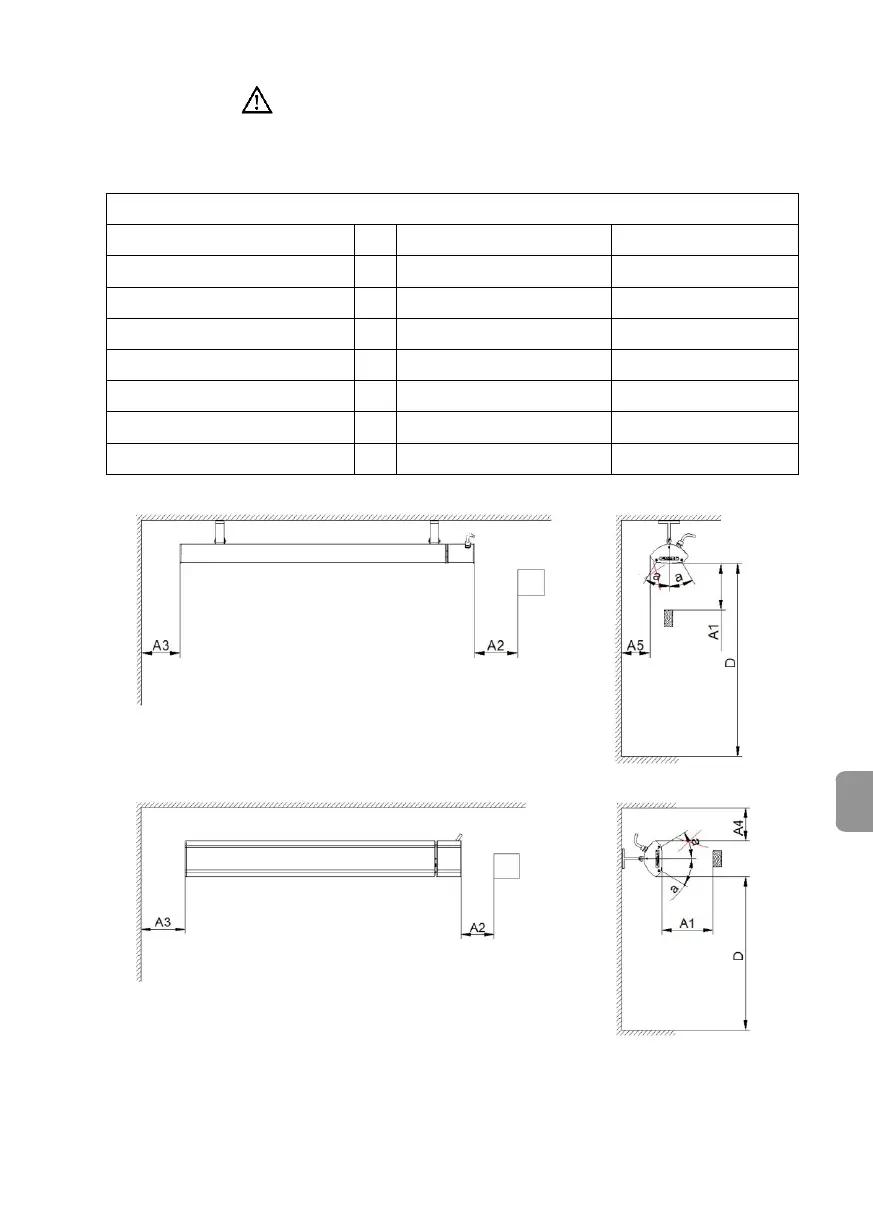
Anexo 2: Distancias de seguridad
Distancias mínimas en mm
Montaje de techo
Montaje mural
Distancia suelo/aparato
D
1800
1800
Distancia área irradiado
A1
500
500
Distancia enchufe
A2
100
100
Distancia pared lateral
A3
90
90
Distancia superior techo
A4
-
170
Distancia pared posterior
A5
90
-
Posibilidad de ajuste
α
30°
30°
ES

Related product manuals