EasyManua.ls Logo

Solwave 180MWAS12T - Page 27

Solwave 180MWAS12T
27 pages
Print Icon
To Previous Page IconTo Previous Page
To Previous Page IconTo Previous Page
Loading...
25
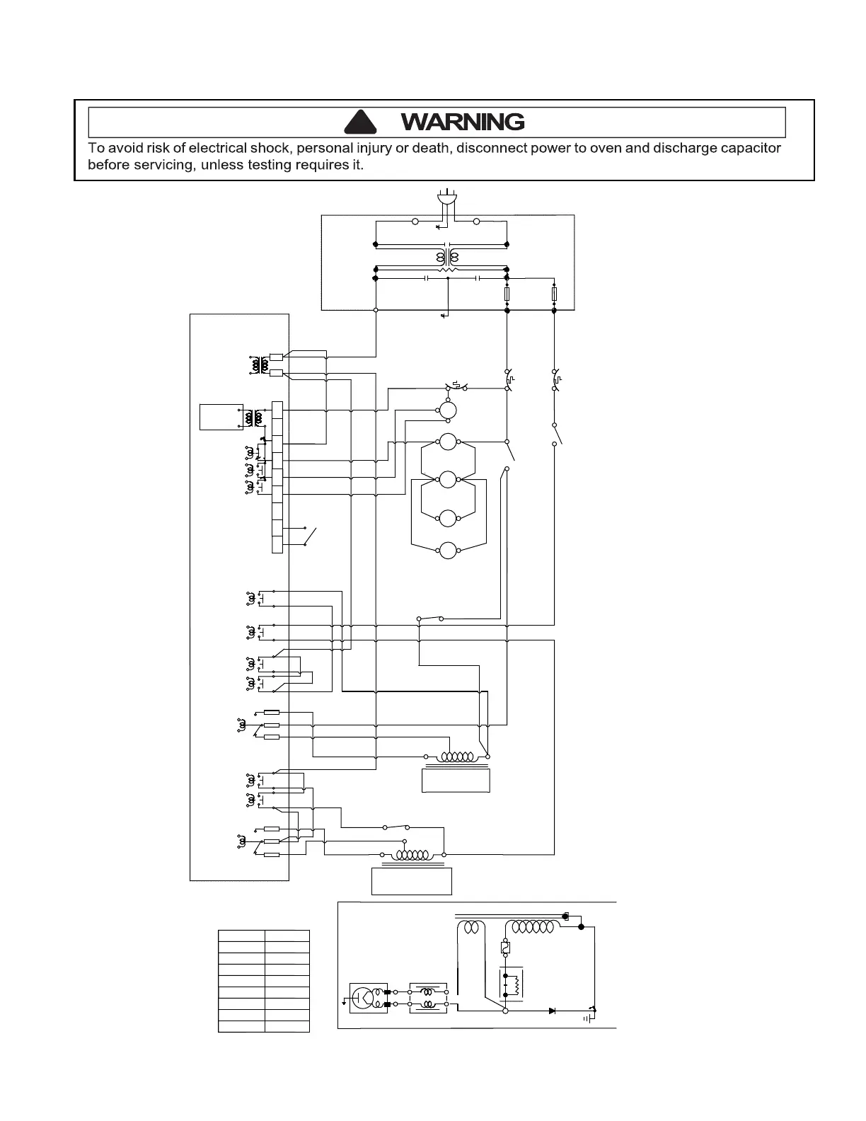
Schematic / Wiring Diagram
L1
L2
BL
GN
1
3
4
5
BN
8
9
WH
PK
BK
BK
BK
(C)
(NC)
AC 208/220-240V/60Hz
SINGLE PHASE ONLY
OVEN LIG H T
SM
TOP STIR RER
MOTOR
OL
SM
NOISE FILTER ASSEMBLY
TOP INTERLOCK
MONITOR SWITCH
TOP P R IMA RY
INTERLOCK
S W ITC H
SECO NDARY
INT ERLO CK
SWITCH
(CN1)
MAIN PCB
CURRENT
TR AN SFOR MER
POWER
TRANSFORMER
RY 7
RY1
230V
NOTE:
1.DOOR IS OPE NED.
2.WIRE COLOR
SY
MB OL
CO
LOR
BLACK
BROW N
BLUE
GREEN
PINK
RED
WHITE
YELLOW
BK
BN
BL
GN
PK
RD
WH
YL
YL
FUSE
BM
OVEN TCO
MOTOR
BLOW ER
BTM STIR R ER
MOTOR
BTM PR IMA RY
INTERLOCK
SW ITC H
BTM INTERLOCK
MONITOR SWITCH
TOP MAGN ETR ON
SEE HV CIRCUIT
BTM MAGNETRON
SEE HV CIRCUIT
MAGNETRON
H.V.
CAPACITOR
H.V.DIO DE
CHOKE FI
LTER
HV CI RCUI T (2 PLACES)
RD
WH
BL
WH
BK
BL
BN
BN
WH
BK
RD
WH
BN
GN
BK
(C)
(NC)
BN
208
230
208
230
OVEN LIG H T
OL
6
COM
208
BK
WH
RY2
208V
TAB1
TAB2
BL
BL
RD
RY4
208V
RY3
230V
RY6
208V
RY5
230V
RD
230
COM
COM
BK
BTM MG T
TCO
TOP MG T
TCO
BK
AUTO
VOLTAGE
D E TE C TIO N
V/S RELAY 1
H.V.
FUSE
WH
WH
WH
WH
BK
BK
RY11
RY10
BK
BL
WH
WH
TAB5
TAB4
TAB3
RD
TAB8
TAB7
TAB6
BN
WH
V/S RELAY 2
20063101
!
180MWAS18T & 180MWAS21T

Related product manuals