EasyManua.ls Logo

Sony HBD-T79 - Schematic Diagram - MB-149 Board (3;11)

Sony HBD-T79
108 pages
Print Icon
To Next Page IconTo Next Page
To Next Page IconTo Next Page
To Previous Page IconTo Previous Page
To Previous Page IconTo Previous Page
Loading...
HBD-N590/N790W/N890W/N990W/N995W/T79
HBD-N590/N790W/N890W/N990W/N995W/T79
4545
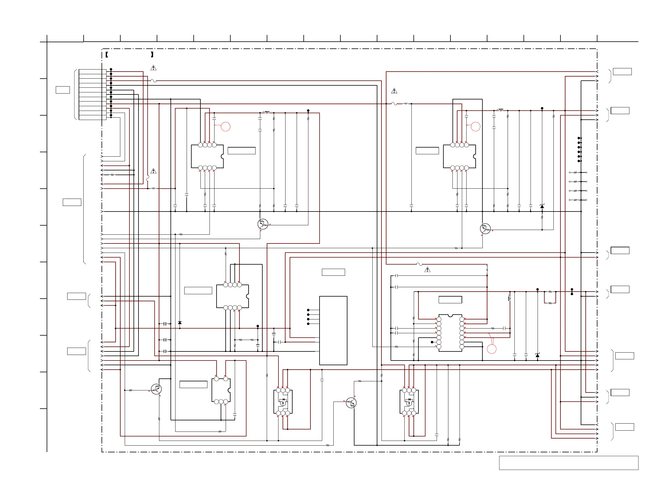
5-8. SCHEMATIC DIAGRAM - MB-149 Board (3/11) -
• See page 56 for Waveforms. • See page 63 for IC Block Diagrams. • See page 71 for IC Pin Function Description.
Note: IC101 on the MB-149 board cannot exchange with single. When
this part is damaged, exchange the complete mounted board.
1.2
6.2
5.9
0
1.8
3.2
3.5
0.6
3.2
6.2
5.3
1.5
1.5
6.2
1.5
0
5.5
3.2
5.5
6
12
12
12
12
12
0
3.2
5.2
5.2
5.2
2.6
5.2
5.2
1.3
6.2
3.2 3.2
6.2
3.2
0
0.7
3.3
0
3.3
0
1.8
3.2
3.5
5.2
12
9.6
21
3
1.5V
3.3V
PCONT3
UNSW6V
JL315
JL316
4700p
C348
JL312
1
C347
0.1
C350
1k
R343
R346
10
22
C351
22
C352
1k
R376
2.2uH
L306
3.3k
R333
3.3k
R334
68
R335
JL5305
JL5304
JL5302
JL5306
JL5303
JL5308
JL5301
3.15A
F5303
32V
3.15A
F5305
32V
10
C341
10
C343
P_FAIL
R378
1k
FE_SW12V
D3.3V
PCONT1
0.1
C5310
10k
R5303
8.2k
R5301
GND
1uH
L5301
1000p
C5307
22
C5314
UNSW12V
1k
R5304
47k
R5302
JL5313
22
C5315
10
C5301
10
C5302
R5317
100k
DRC5114E0L
Q5301
JL5307
JL5309
BZT52H-C4V3
D304
A_GND
EN_POWER
JL5310
FL_6V
22k
R5312
TPS54225PWPR
IC308
1
VO
2
VFB
3
VREG5
4
SS
5
GND
6
PG
7
EN
8
PGND1
9
PGND2
10
SW1
11
SW2
12
VBST
13
VIN
14
VCC
L5302
10uH
RT8293ALZSP
IC5301
1
BOOT
2
VIN
3
SW
4
GND
5
FB
6
COMP
7
EN
8
SS
FL_GND
33k
R391
0.01
C385
2.2k
R393
DRC5114E0L
Q310
2.2k
R392
33k
R390
BD00GC0WEFJ-E2
IC5302
1
VOUT
2
FB
3
GND
4
NC
5
EN
6
NC
7
NC
8
VCC
1
C5312
10k
R5327
R340
1k
1
C5319
R5353
1k
C5325
10
C5317
10
FE_SW5V
0.01
C373
33k
R375
33k
R374
DRC5115E0L
Q312
PCONT2
0.01
C5313
JL5311
PVDD_CONT
0
R306
0
R305
0
R304
0
R303
1
2
3
4
5
6
7
8
9
10
11
11P
CN5301
A+12V
UNSW12V
FEUNSW12V
FE_GND
FL_GND
AGND
DGND
UNSW6V
FL_6V
PVDD_CONT
EN_POWER
0
R5355
0
R302
JL313
1.2V
0.1
C349
22
C318
4.7k
R331
R327
1k
1.5k
R332
22
C353
L303
10uH
3.3k
R330
3.3k
R336
0.01
C346
R371
2.2k
0.01
C307
R370
1.5k
BZT52H-C4V3
D303
2.2uH
L305
10
C340
DRC5114E0L
Q305
RT8293ALZSP
IC301
1
BOOT
2
VIN
3
SW
4
GND
5
FB
6
COMP
7
EN
8
SS
A12V
FAN_GND
JL317
JL318
JL319
JL320
JL321
JL322
DA2J10100L
D5303
S-1170B33UC-OTSTFG
IC5303
1
CONT
2
VSS
3
NC
4
VIN
5
VOUT
PT303
PT304
PT306
PT302
JL5312
JL314
1A
F5306
50V
1A
F5307
50V
R5311
3.3
C5311
1000p
R342
3.3
C362
2200p
R5314
0
E
2.2uH
L304
C5321
1000p
C5322
2200p
654
321
DDG
SD D
PMG85XP
Q311
654
321
DDG
SD D
PMG85XP
Q302
CL1604
C1602
0.1
C1601
0.1
CL1602
CL1603
CL1601
SRXP
B8
SRXN
A8
STXN
B9
STXP
A9
AVDD33_SATA
G12
AVDD12_SATA
G11
AVSS12_SATA
E12
C5320
10
10k
R5325
22k
R5323
FE_SW5V
GND
3.3V
3.3V
3.3V
FE_SW12V
1.2V
1.5V
GND
GND
GND
3.3V
GND
1.2V
GND
UNSW6V
3.3V
GND
FL_6V
FL_GND
UNSW6V
3.3V
3.3V
GND
D3.3V
DCDC5V
GND
IC5301
DC/DC CONVERTER
IC301
IC5302
B+ SWITCH
IC5303
+3.3V REGULATOR
(3/15)IC101
BD DECODER
(Chip Size Package)
CSP
POWER CONTROL
IC308
MB-149 BOARD (3/11)
CXD90011G-BC (EXCEPT SP, TW, TH, CH)
CXD90011G-BB (SP, TW, TH, CH)
IC101
DC/DC CONVERTER
DC/DC CONVERTER
B+ SWITCH B+ SWITCH B+ SWITCH
OVER VOLTAGE DETECT
OVER VOLTAGE DETECT
SWITCHING
>09S
SWR1
REGULATOR
BOARD
>120S
MB-149
(9/11)
BOARD
>121S
MB-149
(10/11)
BOARD
>104S
MB-149
(2/11)
BOARD
>102S
MB-149
(1/11)
BOARD
>105S
MB-149
(4/11)
BOARD
>111S
MB-149
(6/11)
BOARD
>117S
MB-149
(8/11)
BOARD
>122S
MB-149
(11/11)
BOARD
>108S
MB-149
(5/11)
BOARD
>115S
MB-149
(7/11)
168
I
142 1512
A
D
5
K
B
7
C
6113
H
F
13
G
9
E
101
J
4
(Page 62)
(Page 53)
(Page 47)
(Page 49)
(Page 48)
(Page 46)
(Page 50)
(Page 44)
(Page 51)
(Page 43)
(Page 52)
Ver. 1.1

Table of Contents

Related product manuals