EasyManua.ls Logo

Sony HCD-W550 - Page 8

Sony HCD-W550
31 pages
Print Icon
To Next Page IconTo Next Page
To Next Page IconTo Next Page
To Previous Page IconTo Previous Page
To Previous Page IconTo Previous Page
Loading...
— 8 —
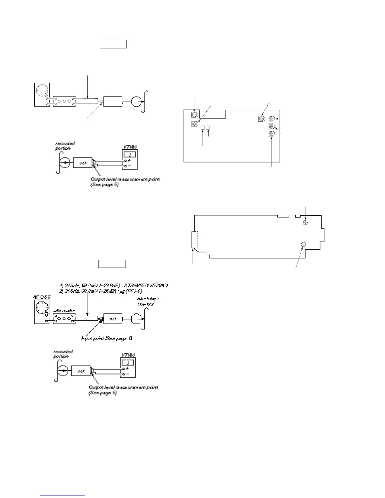
Record Bias Adjustment DECK B
Procedure:
1. Record mode
2. Mode: Playback
3. Confirm playback the signal recorded in step 1 become
adjustment level as follows.
4. If these levels do not adjustment level, adjustment the RV341
(L-CH) and RV441 (R-CH) to repeat steps 1 and 4.
Adjustment level: Playback output of 315 Hz to playback output
of 10 kHz: 0 ± 1.0 dB (0 ± 4.5mV).
Adjustment Location: AUDIO board
Record Level Adjustment DECK B
Procedure:
1. Record mode
2. Playback mode
3. Confirm playback the signal recorded in step 1 become
adjustment level as follows.
4. If these levels do not adjustment level, adjustment the RV401
(L-CH) and RV451 (R-CH) to repeat steps 1 and 4.
Adjustment Level:
OUTPUT level: –23.8 dB ± 1.0 dB (56.1 to 44.6 mV)
Adjustment Location: MAIN board
Adjustment Location :
[AUDIO BOARD] — Component Side —
[MAIN BOARD] — Component Side —
RV301 : Playback Level (Deck B L-CH)
RV401 : Palyback Level
(Deck B R-CH)
RV651 : Tape Speed (Normal)
RV341 : Record Bias (L-CH)
RV441 : Record Bias (R-CH)
RV652 : Tape Speed
(Hight)
RV311 : Playback Level
(Deck A L-CH)
RV411 : Playback Level (Deck A R-CH)
RV451 Record Level (R
)
RV401 Record Level (L)
CNB108
attenuator
set
1) 315 Hz
2) 10 kHz
69.0mV (–23.8dB) : STR-W550/W770AV
38.8mV (–26dB) : jig (PFJ-1)
blank tape
CS-123
AF OSC
Input point (See page 6)

Related product manuals