EasyManua.ls Logo

Sony KLV-32M400A - G2 D Board Schematic Diagram (1 of 2) (KLV-37 M400 A Only)

Sony KLV-32M400A
132 pages
Print Icon
To Next Page IconTo Next Page
To Next Page IconTo Next Page
To Previous Page IconTo Previous Page
To Previous Page IconTo Previous Page
Loading...
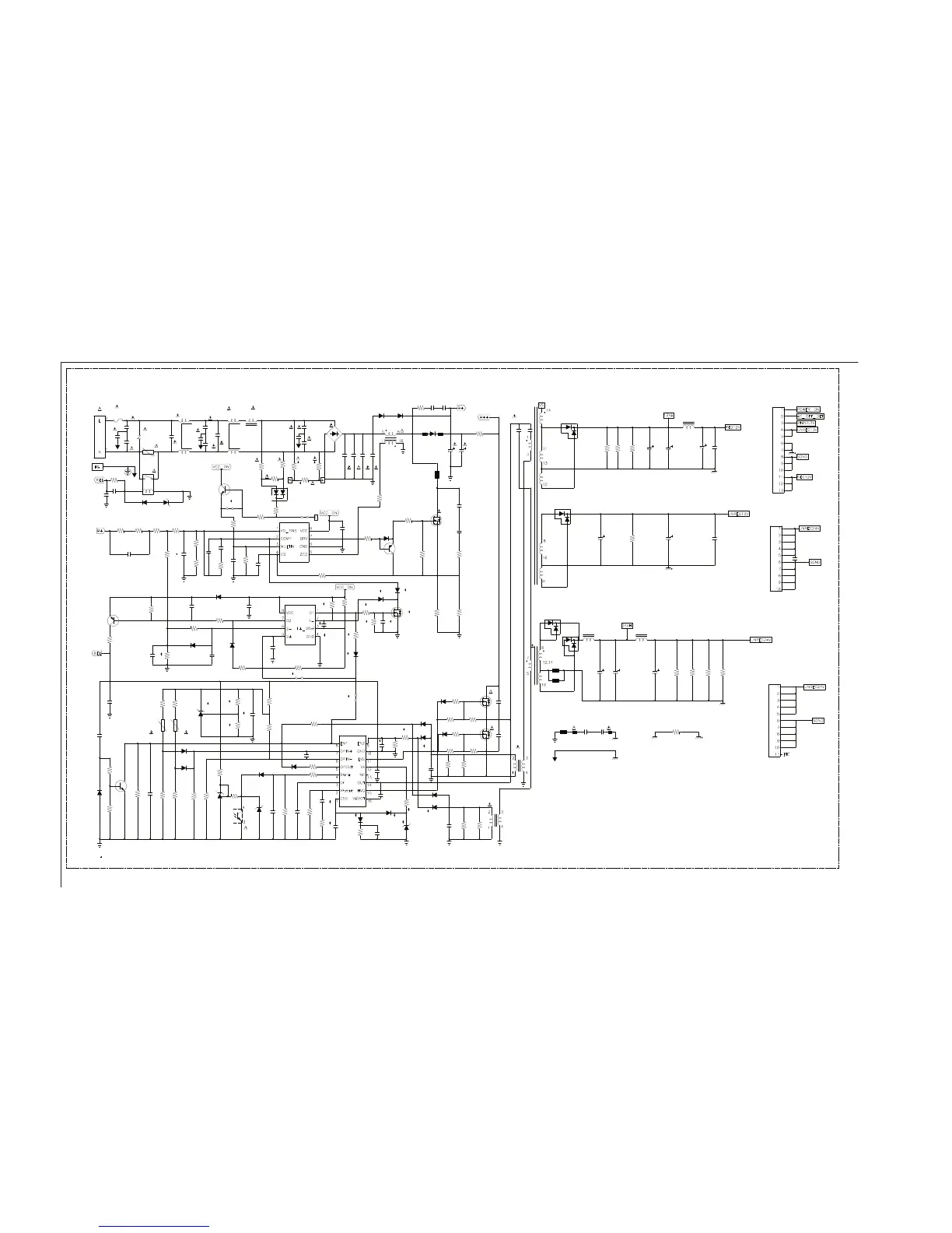
KLV-26M400A/32M400A/37M400A/40M400A
40
KLV-26M400A/32M400A/37M400A/40M400A
G2D BOARD SCHEMATIC DIAGRAM (1 OF 2) (KLV-37M400A ONLY)
1 | 2 | 3 | 4 | 5 | 6 | 7 | 8 | 9 | 10 | 11 | 12 | 13 | 14 |
A
B
C
D
E
F
G
H
I
IC603
R626
3.09K 1/10W F
C611
1uF 25V K
R621
3.09K 1/10W F
D604
BAS316
C612
220nF 50V K
NTC601
10K J
NTC602
10K J
R842
499K
C823
D805
R839
130K 1/10W F
R827
10K 1/8W J
C810
100nF 50V K
R826
2K 1/10W J
C811
100nF 50V K
D803
BAS316
R803
11/4WJ
Q805
KN4403S RTK/P
*
D804
BAS316
C812
100nF 50V K
R830
10K 1/10W F
C814
1nF 50V K
IC802
DAS01A
C815
R831
10K
R832
C617
R627R628
R612
5.11K 1/10W F
R629
6.81K 1/10W F
R630
4.22K
J14
R631
200K 1/10W F
R632
5.11K 1/10W F
R618
40.2K 1/10W F
R619
40.2K 1/10W F
R617
1K 1/10W F
R614
5.76K 1/10W F
R616
5.49K 1/10W F
D611
BAS316
D607
BAS316
Q603
KN4401S RTK/P
C610
1u/25V
IC304
PC123Y82FZ0F
IC602
APL431HBAC-TRL
D606
BAS316
D605
BAS316
R608
30.1K 1/10W F
R610
18.7K 1/10W F
R609
75K 1/10W F
C606
330pF 50V J
C608
220pF 50V J
ZD601
RLZ TE-11 20B
R615
2.55K 1/10W F
R613
5.1K 1/8W J
R611
1K 1/10W F
C609
1uF 25V K
C616R625
1/2
F1
5A T 250V
FL1
HFV-DP7139
C807
C808
47nF 450V K
D2
BAS316
R815B
6.49K 1/10W F
R815A
4.12K 1/10W F
R824
1M 1/8W F
R817B
511K 1/4W F
C3
1uF 25V K
88.7K 1/10W F
R812
RLZ TE-11 12C
ZD1
R817C
432K 1/4W F
R816
82.5K 1/10W F
R817A
511K 1/4W F
C806
100nF 50V K
C5
1uF 25V K
R5
150 2W J
835-1A-B-C 12VDC
RL1
Z1
TVR14621KSQIY
CY2
220pF 250VAC
CY3
220pF 250VAC
CY1
220pF 250VAC
NTC1
2.5 L
CN1
CY4
1nF 250VAC
CY5
1nF 250VAC
CY6
1nF 250VAC
CX1
0.47u
Q803
MMBT4401LT1G
R1
750K 1/4W F
R2
301K 1/4W F
D1
BAV70
L2
CRV-DP7246
FL2
HFV-DP7139
CX2
0.22u
BD1
D15XB60-7000
CY11
1nF 250VAC
CY10
1nF 250VAC
CY9
1nF 250VAC
R3
750K 1/4W F
R6
R8
R7
C803
680p
J46
J3
511K 1/8W F
R843
R811
442K 1/8W F
C805
470nF 25V K
R814
10K 1/10W F
C804
1nF 50V K
R813
20K 1/10W F
R810
1K 1/4W F
IC801
L6562DTR
R808
47
Q802
PMMT591A,215
Q800
SPW20N60C3
D802
BAS316
R805
10K 1/8W J
R807
30 1/4W J
C816
100nF 50V K
C801
180u/450V
D800
STTH8L06FP
FB1
R809
40.2K 1/4W F
C1 1u F 450V K
C2 1u F 450V K
C4 1u F 450V K
L800
DFCV-DP7413
C6 1u F 450V K
R800
0.1 1W J
C614
22nF 1KVH J
C605
22nF 1KVH J
C802
180u/450V
D120
STPS20H100CT
R840
27 2W J
D130
STTH1002CT
C820
330p
C819
330p
1N5406RLG
D905BD905A
1N5406RLG
C822
330p
C821
330p
T1
MH-DP7338
R841
27 2W J
R130D
1K 2W J
L120
CB-4.0-01
C123
220uF 25V M
C122
100nF 50V K
C124
100nF 50V K
R120B
1K 3W J
R120A
1K 3W J
R120C
1K
C131
1500uF 25V M
C130
1500uF 25V M
C120
1000uF 25V M
C121
1000uF 25V M
C601
100pF 50V J
C613
100pF 50V J
IC601
DLA001DTR
C607
1uF 25V K
C603
100nF 50V K
R607
1.96K 1/8W F
C615
220nF 50V K
R623
1M 1/10W J
C604
100nF 50V K
D612
BAS316
D613
D609
D610
ZD602
R624
R633
931
R634
931
T303
SH-DP5004D
T302
SH-DP5004D
R622
1.96K 1/8W F
J15
D603
MMSD103T1G
R636
01/4WJ
R606
01/10WJ
R605
R602
22 1/4W J
R603
22 1/4W J
D601
BAS316
D602
BAS316
D608
BAS316
C602
D615
D614
Q801
C813
R834
R833
D616 R835
R804
0.22 5W J
R828
10K 1/10W J
D240
STTH1002CT
D241
STTH1002CT
R801
0.22 5W J
FB3
C818
100pF 1KV K
Q602
2SK3569(Q)
R604
20K 1/8W J
R601
20K 1/8W J
Q601
2SK3569(Q)
C817
100pF 1KV K
R635
01/4WJ
T2
MH-DP7339
FB2
FB4
CY7
2200p
CY8
2200p
C242
220uF 35V M
C240
1000uF 35V M
C241
1000uF 35V M
R240A
1.5K 3W J
R4
4.7 1/4W J
L241
CR-10-028
L240
CB-4.0-01
R240B
1.5K 3W J
R240C
1.5K 3W J
R240D
1.5K 3W J
CN603
C243
0.1u/50V
CN601
CN602
POWER
G2D 1/2
1-474-095-11 <MA2> G2D-P1

Table of Contents

Related product manuals