EasyManua.ls Logo

Sony Model CMT-CPX1 - Button Locations and Reference; Main Unit Control Identification

Sony Model CMT-CPX1
28 pages
Print Icon
To Next Page IconTo Next Page
To Next Page IconTo Next Page
To Previous Page IconTo Previous Page
To Previous Page IconTo Previous Page
Loading...
Additional Information
25
GB
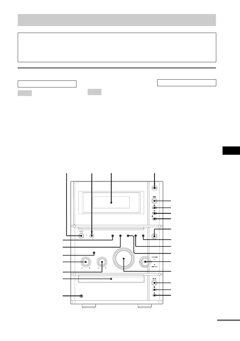
Main unit
BASS +/– wa (13)
CD SYNCHRO qa (12)
Disc tray ql (6)
DISPLAY wf (10, 16)
Display window 3
DSG ws (13)
FM MODE qs (10)
FUNCTION 0 (6, 11, 12, 18)
PHONES jack qk
PLAY MODE/DIRECTION wd
(6, 11, 12)
Remote sensor 2
REPEAT qs (7)
TREBLE +/– w; (13)
TUNER/BAND 9 (8)
TUNING MODE wd (8)
TUNING +/qd (8)
VOLUME +/– qf (14)
?/1 (power) 1 (5, 14, 20)
TAPE Z (eject) 4 (11)
TAPE nN (play) 5 (11, 12)
TAPE x (stop) 6 (11, 12, 20)
TAPE X (pause) 7 (11, 12)
TAPE z REC (record) 8 (12)
lm/ML (rewind/fast
forward, go back/go forward)
qd (5, 6, 11, 14)
CD NX (play pause) qg (6)
CD x (stop) qh (6, 20)
CD Z (eject) qj (6)
List of button locations and reference pages
How to use this page
Use this page to find the location of buttons and other
parts of the system that are mentioned in the text.
Ill
us
t
ra
ti
on num
b
er
r
PLAY MODE wd (6, 11, 12)
RR
Name of button/part Reference page
ALPHABETICAL ORDER
A – Q
R – Z
BUTTON DESCRIPTIONS
1
qa
qs
0
5
6
7
8
9
qg
qd
qh
qj
2
3
4
qf
w;
ql
qk
wa
ws
wd
wf
continued

Related product manuals