EasyManua.ls Logo

Sony SLV-SE810 - Servo;System Control Block Diagram

Sony SLV-SE810
86 pages
Print Icon
To Next Page IconTo Next Page
To Next Page IconTo Next Page
To Previous Page IconTo Previous Page
To Previous Page IconTo Previous Page
Loading...
SLV-SE610/SE710/SE810/SX710/SX717/SX810/X9
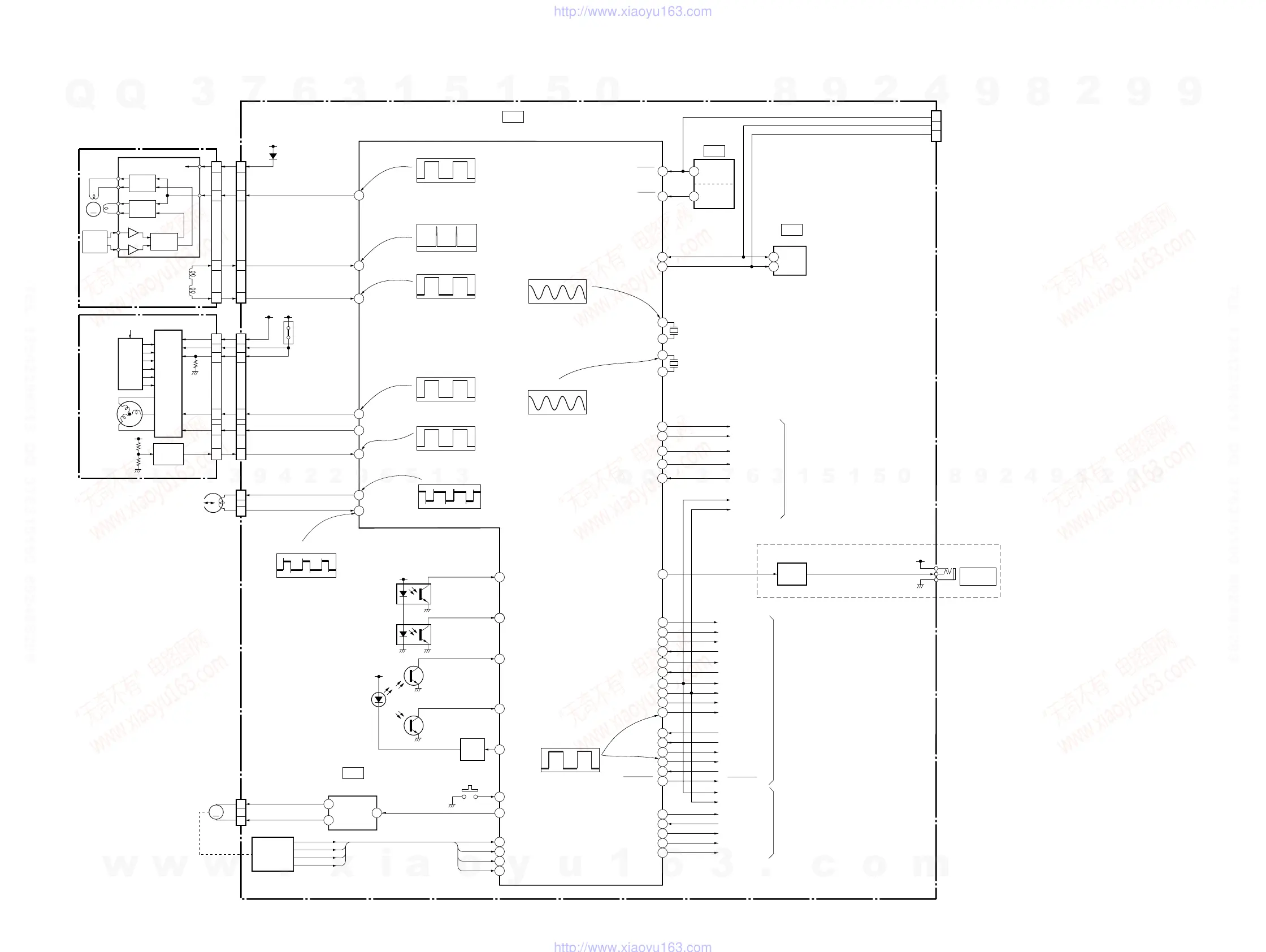
3-3. SERVO/SYSTEM CONTROL BLOCK DIAGRAM
3-5 3-6
5
4
3
2
7
1
6
5
2
3
MM
OUTPUT
OUTPUT
MATRIX
HALL
DEVICE
CAPSTAN
FG
5
4
3
2
CN101
M901
DRUM MOTOR
PG
FG
VCC
MA-400 BOARD (2/5)
(SEE PAGE 4-15)
MTR12V
D110
D VS
D PG
D FG
7
1
6
5
2
3
SW5V
M902
CAPSTAN
MOTOR
HALL
DEVICE
U+
U-
V+
V-
W+
W-
U
V
W
VM
VCC
TL
CN102
CAP VCC SW5V
PS120
LIMITER
CAP VS
CAP RVS
CAP FG
7
6
1
3
CTL
HEAD
CN350 (1/2)
CN104
M
M903
CAM
MOTOR
05
S100
(CAM ENCODER)
MODE
SWITCH
MECHA
POSITION
MODE1
MODE2
MODE3
MODE4
42
41
40
39
27
83
76
111
112
104
37
80
106
107
79
46
114
43
4
2
10
IN2
CAM-
CAM+
CAM
MOTOR DRIVE
IC130
SERVO/SYSTEM
CONTROL
IC162
IC161
IC160
(2/3)
DRUM FG
DRUM PG
DRUM ERR
CTL IN
CTL IN +
CAP FG
CAP RVS
CAP ERR
S101
(REC PROOF)
32
34
35
X161
17.734475MHz
X160
32.768kHz
31
26
9
10
LED
DRIVE
Q102
Q100
S SENS
Q101
T SENS
D5V
D100
(T/S LED)
93
94
SW12V
PH100
T REEL
PH101
S REEL
78
52
8
6
44
RESET
PULSE
GEN.
POWER
FAIL
DET.
100
99
19
11
23
22
24
103
89
74
12
25
28
29
38
71
AV CONT
CTL CHECK
TO AV LINK
FROM AV LINK
IIC DATA
IIC CLK
Q VD
RF ENV
COMP OUT
HA SWP
RF SWP
SECAM DET
SECAM ON
A MUTE
AF ENV
IIC DATA
IIC CLK
AF SWP
AF REC P
FULL ERS
I CONT
C+ DET
MODE1
MODE2
MODE3
MODE4
AV CONT
TO AV LINK
FROM AV LINK
CAM
CTL AMP OUT
81SAT CONT
REC PRF
17.734475MHz OUT
32kHz IN
32kHz OUT
17.734475MHz IN
SDA (VI/HF/TU/ARC/MOD/VPS)
SCL (VI/HF/TU/ARC/MOD/VPS)
Q VD
RF ENV
21 C ROTC ROT
ENV S
HA SWP
RF SWP
SECAM DET
SECAM ON
A MUTE
AF ENV
AF SWP
AF REC P
FULL ERS
I CONT
AV CONT IN/C+DET
END LED
S SENS
T SENS
T REEL
S REEL
P FAIL
RESET
45
6
5
97
98
92
67
8
EEPROM
DATA
CLK
IIC CLK (EEP)
IIC DATA (EEP)
NICAM CLK
NICAM DATA
TU SW2
TU SW1
TU AFT
NICAM CLK
NICAM DATA
SW2
SW1
TU AFT
SCL
SDA
TUNER
(SEE PAGE 3-9)
VIDEO
(SEE PAGE 3-3, 4)
AUDIO
(SEE PAGE 3-8)
4
2
3
CHECK
CN161
RESET
DATA
CLOCK
IC162 wa, wf REC/PB
5.3 Vp-p (2 V)
IC162 <z/n REC/PB
IC162 <z/m REC/PB
IC162 <zzz REC
4.2 Vp-p (360 Hz)
4.8 Vp-p (2 V)
5 Vp-p (2 V)
IC162 <zzx REC
5 Vp-p (2 V)
IC162 i; REC/PB
IC162 ef REC/PB
5.4 Vp-p (56 kHz)
1.8 Vp-p (32.768 kHz)
IC162 ul REC/PB
5.4 Vp-p (56 kHz)
IC162 <z/v REC/PB
4.6 Vp-p (1 kHz)
IC162 ea REC/PB
2.7 Vp-p (17.734475 MHz)
X9 : B, D, E, G
D5V
SAT
CIRCUIT
Q871 Q873
STB Control
(mini jack)
J871
w
w
w
.
x
i
a
o
y
u
1
6
3
.
c
o
m
Q
Q
3
7
6
3
1
5
1
5
0
9
9
2
8
9
4
2
9
8
T
E
L
1
3
9
4
2
2
9
6
5
1
3
9
9
2
8
9
4
2
9
8
0
5
1
5
1
3
6
7
3
Q
Q
TEL 13942296513 QQ 376315150 892498299
TEL 13942296513 QQ 376315150 892498299
http://www.xiaoyu163.com
http://www.xiaoyu163.com

Table of Contents

Related product manuals