EasyManua.ls Logo

Sony STR-K990 - Schematic Diagrams - Digital Board

Sony STR-K990
62 pages
Print Icon
To Next Page IconTo Next Page
To Next Page IconTo Next Page
To Previous Page IconTo Previous Page
To Previous Page IconTo Previous Page
Loading...
1919
STR-K990
STR-K990
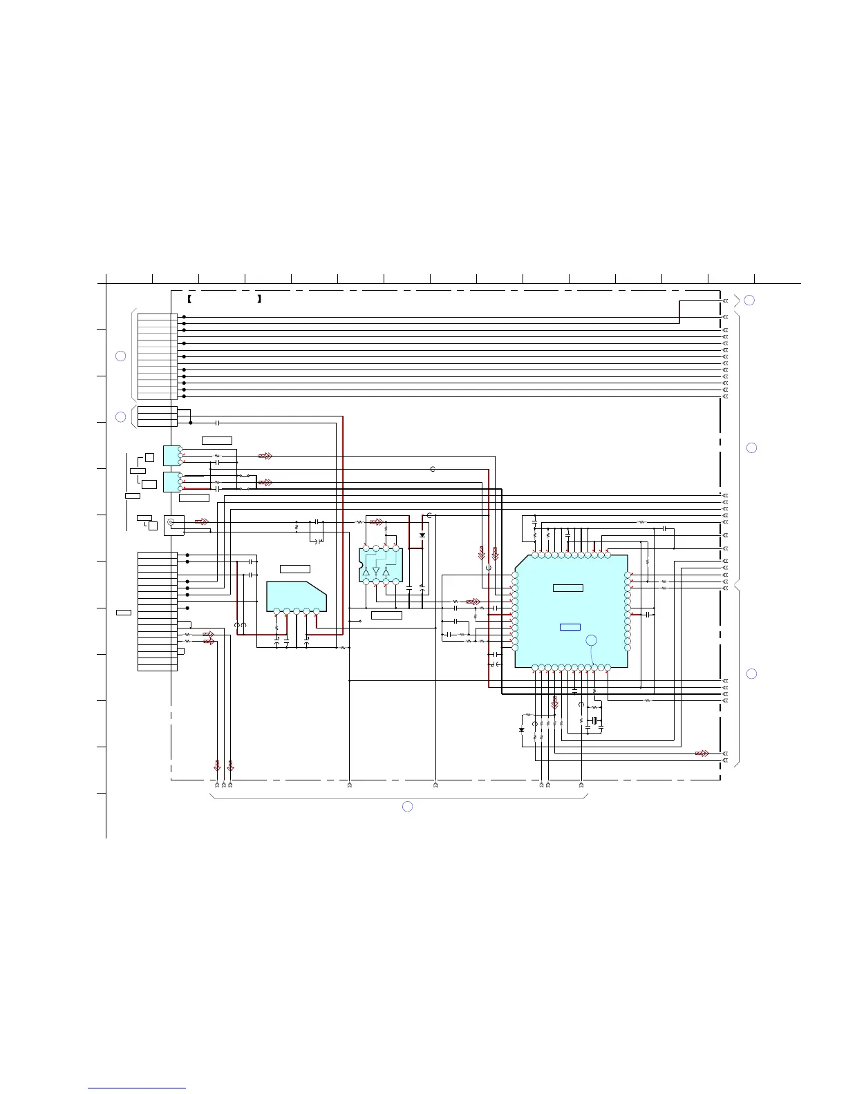
4-5. SCHEMATIC DIAGRAM – DIGITAL BOARD (1/5) –
• See page 39 for Waveform. • See page 39 for IC Block Diagram.
A
VIDEO
BOARD
CNS207
(Page 36)
E
DCDC
BOARD
CN4103
(Page 32)
3
8
DIGITAL
BOARD
(2/5)
(Page 20)
7
DIGITAL
BOARD
(5/5)
(Page 23)
9
DIGITAL BOARD
(3/5)
(Page 21)
6
DIGITAL
BOARD
(4/5)
(Page 22)
No mark:FM
0
5
5
6.5
2.6
2.5
1.2
1.2
1.4
3.3
0.1
3.3
0.1
3.2
0.1
1.6
0
0.1
2.5
3.3
2.9
2.9
2.9
3.3
1.6
1.6
1.6
1.6
3.3
1.6
1.6
1.6
3.3
3.3
3.3
0
0
3.3
3.3
0
00
VCC
OUT
GND
TORX147L
IC1351
TORX147L
IC1354
0.1
C1351
0.1
C1354
100
R1351
100
R1354
12345678910 11 12
13
14
15
16
17
18
19
20
21
22
23
24
252627282930313233343536
37
38
39
40
41
42
43
44
45
46
47
48
IC1301
LC89056W-E
DISEL
DOUT
DINO
DIN1
DIN2
DGND
DVDD
R_SDIN
VIN_AGND
LPF
AVDD
AGND
CKOUT
BCK
LRCK
DATAO
XSTATE
DGND
DVDD
XMCK
XOUT
XIN
EMPHA
AUDIO
CSFLAG
F0/P0/C0_F0/FSB0
F1/P1/C1_F1/FSB1
F2/P2/C2_F2/DLMP
F3/P3/C3_VF/DATA02
DVDD
DGND
AUTO_VREF
BPSYNC
ERROR
DOUT
DI
CE
CLK
XSEL
MODE0
MODEL1
DGND
DVDD
DOSEL0
DOSEL1
CKSEL0
CKSEL1
XMODE
75
R1355
0.1
C1361
25V
22
C1355
0.1
C1358
6.3V
1000
C1359
100
R1359
0.1
C1301
0.01
C1302
0.1
C1303
0.1
C1305
0
JR1005
5.6k
R1301
4.7k
R1302
16V
47
C1306
10k
R1318
R1321 0
10kR1323
0.1
C1314
0.1
C1315
1M
R1310
100
R1311
100
R1312
100
R1313
10kR1314
0.1
C1312
100pC1313
12.288MHz
X1301
18p
C1309
18p
C1310
0uH
FB1305
0
R1319
0.1
C1308
680
R1305
22R1306
100R1307
100
R1308
100R1309
100R1360
0JR1020
0uH
FB1302
J1301
1
2
3
4
5
6
7
8
9
10
11
12
13
13P
CNS509
COMP MUTE
HDMI 6.8V
S2(HDMI)
S1(HDMI)
OED(HDMI)
PRE(HDMI)
CTL(HDMI)
COMP_S2
COMP_S1
V_SW1
V_SW2
V_SW3
V_SW4
R1352 1k
100
R1304
0.01
C1304
33k
R1303
0uH
FB1350
0
R1325
0uH
FB1310
470
R1356
47k
R1357
12345
IC SI-3050KM-TL
IC1906
VC
VIN
GND
VOUT
SENSE
0.1
C1911
35V
22
C1919
0
R1637
CL001
CL002
CL003
CL004
CL005
CL007
CL009
CL011
CL012
CL013
CL024
0uH
JR1511
1kR1353
8765
4321
TC7WU04FU(TE12R)
IC1303
JL007
JL008
JL009
JL010
JL011
MA111-TX
D1301
MA111-TX
D1302
1
2
3
3P
CNP512
GND
+6.5V
GND
0uH
FB1504
0.1
C1639
R1940
0
1
2
3
4
5
6
7
8
9
10
11
12
13
14
15
16
17
18
18P
J1311
P GND
VBUS +5V
NC
VIDEO 5V
C LINK_RX
C LINK_TX
DET
DGND
WM DET
WM AD
AGND_L
AGND_R
L
R
WM RxD
WM TxD
VIDEO(NC)
VGND(NC)
10V
100
C1910
0uH
FB1505
0.1
C1921
JL014
W1001
0.1
C1920
DIR_DI
CLINK_RX
C_LINK_L
DIR_CKSEL
XMODE
CLINK_TX
1
2
3
4
5
6
7
8
9
10
11
12
13
14
15
16
17
18
19
20
21
22
23
24
25
26
27
28
29
8583 87
43
80 8481 82 86
38
DIGITAL BOARD
(1/5)
IC1906
IC B/D
IC1303
IC1301
IC1351
IC1354
OPTICAL IN
OPTICAL IN
DIGITAL AUDIO
I/F RECEIVER
INVERTER
+5V REG
DM PORT
DVD
IN
COAXIAL
DIGITAL
OPTICAL
SAT
IN
VIDEO 2 /
BD IN
2
1
3
VCC
OUT
GND
2
1
3
JR1010
JR1009
1 2 3 4 5 6 7 8 9 10 11 12 13 14 15
A
B
C
D
E
F
G
H
I
J
K
L

Related product manuals