EasyManua.ls Logo

Sony STR-N500 - 3 Diagrams

Sony STR-N500
22 pages
Print Icon
To Next Page IconTo Next Page
To Next Page IconTo Next Page
To Previous Page IconTo Previous Page
To Previous Page IconTo Previous Page
Loading...
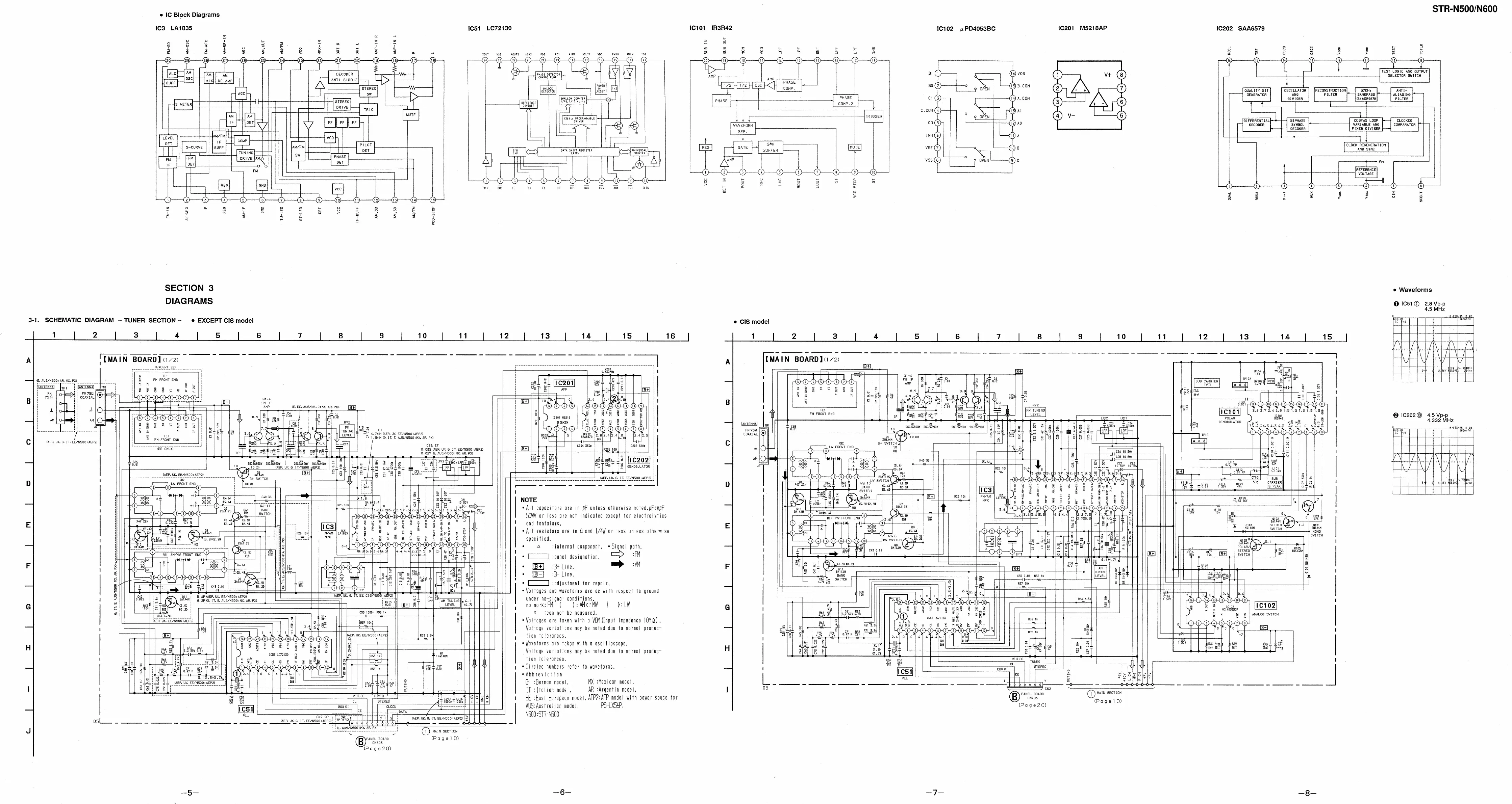
3-1.
SCHEMATIC
DIAGRAM
TUNER
SECTION—
EXCEPT
CIS
model
e
CIS
model
STR-N500/N600
e
IC
Block
Diagrams
IC3
LA1835
IC51
LC72130
IC101
IR3R42
IC102
«PD4053BC
IC201
M5218AP
IC202
SAAG579
z
3
Q
2
8
|
55
3
3
g
g
a
5
xOUT
VSS
AQUT2
AIN2
PO2
PDI
AINt
AOUTS
vod
FMIN
AMIN
102
wn
na
Fa
Ee
a
a
>
>
fag
pie
('3)
0s)
(ti)
(10)
C26
PD
TEST
LOGIC
AN®
OUTPUT
SELECTOR
SWITCH
QUALITY
BIT
GENERATOR
UNLOCK
DETECTOR
OSCILLATOR
AND
DIVIDER
RECONSTRUCT
LON
S7KHz
ANTI-
FILTER
BAN®PASS
ALT
ASING
;
(8tnORDER)
FILTER
COSTAS
LOOP
_
CLOCKES
/
OIFFERENT
IAL
BIPHASE
SECO@ER
|
|
SYMBOL
VARIABLE
AND
||
COMPARATOR
|
_
DECOBER
FIXES
BIVIDER
CLOCK
REGENERATION
ANB
SYNC
BUFFER
COUNTER
©
b
AI
C2)
C)-—)
O—--{D)—
@)}—9)
i)
AVOLTAGE
VOLTAGE
oO
z
be
Y
ra)
io
K
bE oa
oa
SF
38
€@
5
38
8
®
8
&
XIN
BOS.
CEE
01.
cl
00
801
B02 B03
B04
103
1FIN
7
a.
a
a
n
(4)
(5) (7)
(8)
a
oO
x
~
x<
<
z
z
be
g
=
a
°
2
é
8
G
3
3
«
>
>
>
Q
=z
x
u
i)
th
a
Qa
a
-
oO
a
(=)
a
=
o.
7;
&
~
&€
gF
8&8
8
§
&B8
8
FF
B
B&B
8B
4
£
i i
a
= =
>
7)
u
+
<
>
-
{
<<
<
<
1
<
ro)
ive
o
~
oO
>
SECTION
3
e
Waveforms
DIAGRAMS
@
1c51@
ta
Ac
OP
1
2
3
4
5
6
7
8
9
10
11
12
13
14
15
16
1
2 3
4
5
6 7
8
9
10
11
12 13
14
15
-———
Se
ee
OO
OO
OO
OO
TEMAIN
BOARD]
(2)
A
[MAIN
BOARD]«1/2)
|
(EXCEPT
EE)
ee
eee
oon
1B
+]
r
it
E>
or
‘|
3
FE!
i
~
i
]
we
e
E
AUS/NSOOZAR,
MK
PO
|
i]
&
|
FM
FRONT
ENA
x.
el
e201
®
ST
0-01
°
[ANTENNA
mH
|
i]
Sot
8
=
z
ee
oe
3
3
=!
i]
3
=\
8
AMP
BF]
i
|
2
3
-
4
=
2
H
FM
FM
75Q
iN
'
!
H
z
eth
°
zs
2
32
|
759
o>
Pot
1
=
an
IIL
88
~
|
3
5
:
3
ee
:
B
:
|
\
RV2
x
a
CO
i
3s
eM
EROGT
ENB
=
|
=
3.63.7
2.4
2.9
1.51.5
1.51.5
1.58
xin
Cb
s
i
LEVEL
.
AM
AM
al
QT
0-01
Ts
1C201
M5218
‘Tt
1WaH2
.
bg
@
1c202®
48
VPP
:
|
>
=
RV2
=
5
(8X5)
ANTENNA
ot
,
-
04
;
>
%
BEMOBULATOR
,
0
0
I
.
Z
_—
2
_|3
a
ais
|
=
i
TMI
2sczes90Y
2SC24690Y
2sc2éeaoy
zsczeegcy
|
S|
S
s
BR
2/3/38
¥1
8%
es
anes
crs
(ene
|
z
2
oth
TUNING
|
£1001
ul
i
i
|
FM
750
a=
=
Noob
5
s
ma
c
*
oF
ka
i
LEVEL
me
ZaH
(AEP,
UK,
EE/N500:
AEPZ
,
R203
coaxial
|
@7i
G8)
ee
STE
(SS)
eT
BY
*hoTs
21s
Zz
Sis
S
1.5mH
(G,
IT.
&,
AUS/NSOO:MX,
AR,
PX
22k
Cpe
|
PN)
SG
8
8/818
S519
=
(AEP,
UK,
G
IT,
EE/NSO0:
AEP2)
-_
\
C
RB?
B+
SWITCH
3
°
B
|
|
Le?
9
|
3
ooo
neeeecenenvanrensonaneseeeeneneeeee
i
C26,
27
LW
FRONT
END
——
[|
:
S
i
0.039
(AEP,
UK,
G
17,
EE/N5S00:
AEP2)
|
[B+]
|
miO©
|
a
;
to
0.027
(E,
AUS/NSO0:MX,
AR,
PX)
mals
1
|
&
B
S
~
Pam
3
C25
C24
B73
AM
-
FS
aectessoy
280264907
els
5
a
&
&|
3
is]
8
ca
LPEVT
35008
3
UC202
it
=
g
1
10
(0)
ois
ecstjieo
evsisl
S&S
wth
ir
LPF
s
8
.
.
err
Ee
ata®ailay|
Pe
ofela)
Taecr-e|
CLO
!
|
.
:
3
PR
|
ann
B+
SWITCH
Sa
|_|
TT
(AEP,
UK,
G17,
EE/NSO0:AEP2)
|
6)
=
;
att
0)
"
+
r
_
_
_
ee
D
47
i
ps
Sit
Hi
:
2
ole
R26
10k
Lt
cizs
|
Wl)
fl
as
~T
|
|
|sa
S86
J
Ba
wT
05
10K
3.613.4
ft
no
tes
Tt
10B0v
NOTE
F.85
TeV
:
“—
;
it
pvt}
tt
ode
ol.
oft
“sl2-als.sls.sisealsesls.ole
*All
copacifors
are
in
#F
unless
otherwise
noted,
pF:
pur
S
Yok
ey,
i
tH
or
z
if
ODO)
i
(19)
SOW
or
less
are
not
indicated
except
for
electralytics
a
~
am,
SD
RY
Hijet
ee
|
|
pt
cE
1
and
tantolums,
E
re
2%
oreReD
rn
i
+
||
is
woe
|
|
Faw
[ult
'
*All
resistors
are
in
Q
ond
1/4W
or
less
unless
otherwise
3
_
ONO
,
il
yo.
|)
iilep
iS
u,
specified,
MW
SWITCH
ica
és
g103
0
1
i
2SA1175
-
a
.
a8
_
on
i
BATA4H
Ht
e
=
°
A
tinternal
component.
*
Signa!
path,
BAIASH
5
=
POLAR
Aen
ii
V¥e.9)
&
i
a
>
FM
r
rm
£48
0.01
|
Seiten
.
i
Gy
=
z
°
[|]
:pone!
designation,
|
3
j
=
|
—_
.
a
|
|
z
I
z
3
|
°
‘Bt
Line,
‘AM
F
6.01
.
;
:
s
|=
s
e
:B-
Line,
;
C55
0.01
SB
1k
J
Sars
*
or
.
;
;
&
.
=
2
[5
°
*
[J
:odjustment
for
repair,
2
€43
0.01
ae
~
2
—_
Baan
*
Voltages
and
waveforms
are
dc
with
respect
to
ground
$
.
dP
(AEP,
UK,
EE/NS00:
AEP2)
;
iti
]
=
-2P
(G,
IT,
&,
AUS/NSO0:MX,
AR,
PX)
Ty]
under
no-signal
conditions,
I
2
;
fo
mork:FM
{
=}:
AMorMY
(
):
LW
G
c1
10102
g
*
‘can
not
be
measured,
ANALOG
SWITCH
.
*Voltages
are
taken
with
a
VOM
(Input
impedance
1(MQ).
I
Voltage
variations
may
be
noted
due
to
normal
produc-
gS]
8
[B=l
I
;
tion
tolerances,
;
a)
2
*
Waveforms
are
taken
with
a
oscilloscope,
H
es
8
S
e248
Voltage
variations
may
be
noted
due
to
normal
produc-
2/3)
18
8
8
i
tion
tolerances,
SD80
wea
i
FT
1
nl
Ge
h
1
*Circled
numbers
refer
to
waveforms,
|
STEREO
'|-f
0.47
M
22k
rer
*
Abbreviation
L
-|si!
S
x
3.104.5041.
79
!
.
3
iis
Gt
__(AEP.
UK
EE/NSOO:AEP2)
2
G
:German
model.
MX
:Mexican
model,
eee
oe
ee
_
S[Bti
fe
ge
5
.
.
ce
cNnz2
|
Cee
=
IT
:[talion
model,
AR
:Argentin
model.
|
PANEL.
BOARD
(a)
“ain
SECTION
——
1
EE
:Fost
European
mode!,
AEP2:AEP
mode!
with
power
souce
for
CN708
(Page10)
|
AUS:
Australian
model,
PS-LXSEP,
(Page20)
=)
wn
EP
UK
Gs
TT
EEZNSOO:
AEP
2)
|
eee
ee
eh
b
_
|
L(G,
AUS/NSOOTMX
AR,
PX)
|
t
be
oe
TI
ee
4
G)
MAIN
SECTION
PANEL
BOARD
(Page1Q)
CN703
(Page2Q)

Related product manuals