EasyManua.ls Logo

Sony VPL-EX246 - Page 77

Sony VPL-EX246
81 pages
Print Icon
To Next Page IconTo Next Page
To Next Page IconTo Next Page
To Previous Page IconTo Previous Page
To Previous Page IconTo Previous Page
Loading...
77
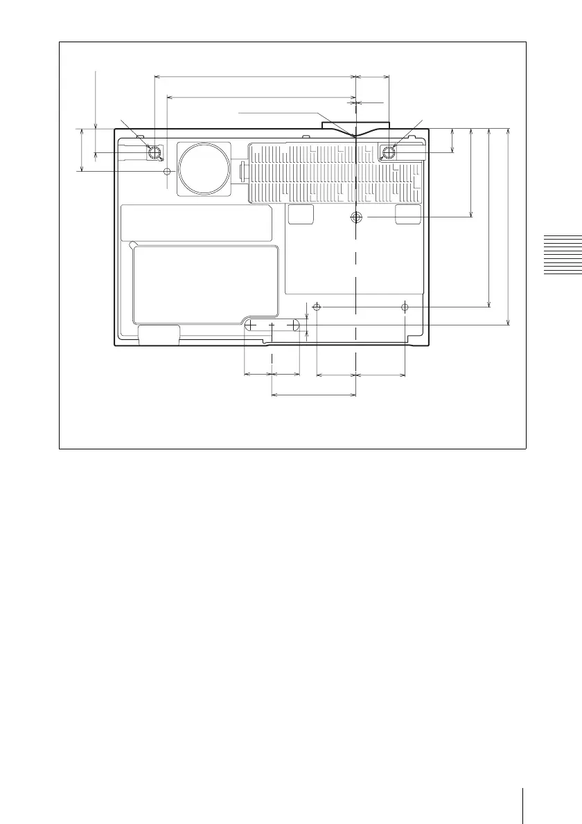
Dimensions
Others
Bottom (VPL-EW246/EX276/EX272/EX246)
Unit: mm (inches)
233.5 (9
3
/16)
38.5 (1
17
/32)
97.5 (3
27
/32)
14 (
9
/16)
13.5 (
17
/32)
31.8
(1
1
/4)
31.8
(1
1
/4)
57.4
(2
1
/4)
45.3
(1
25
/32)
Center of Lens
14 (
9
/16)
228 (8
31
/32)
207 (8
5
/32)
102.5 (4
1
/32)
27.5 (1
3
/32)
27.5 (1
3
/32)
221.6 (8
23
/32)
46.3 (1
13
/16)
0.8
(
1
/32)

Table of Contents

Other manuals for Sony VPL-EX246

Related product manuals