EasyManua.ls Logo

Speck pumpen V 95 - Page 9

Default Icon
10 pages
Print Icon
To Next Page IconTo Next Page
To Next Page IconTo Next Page
To Previous Page IconTo Previous Page
To Previous Page IconTo Previous Page
Loading...
Assembly Instructions V 30 - 430
Speck Pumpen Vakuumtechnik GmbH
zertifiziert: DIN EN ISO 9001
9
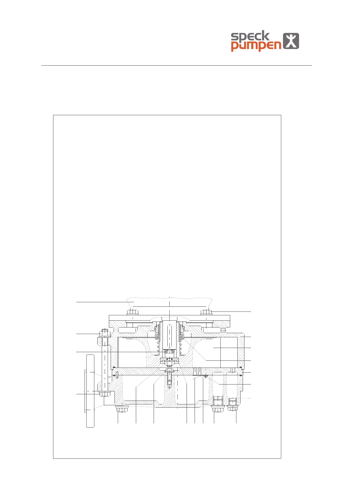
3)
2)
412
561.1
746
598
901.3
550.1
901
047 Gleitringdichtung mechanical seal
101 Pumpengehuse pump casing
137 Steuerscheibe inter casing
230 Laufrad impeller
411 Dichtring joint ring
411.1 Dichtring joint ring
412 O-Ring o-ring
441 Gehuse f¤r Wellendichtung shaft seal housing
524 Wellenschutzh¤lse shaft protection sleeve
550 Scheibe disk
550.1 Scheibe disk
550.2 Scheibe disk
550.3 Scheibe disk
561 Kerbstift grooved pin
561.1 Kerbstift grooved pin
598 Blech sheet
746 Klappe flap
800 Motor motor
900 Schraube screw
901 6kt Schraube hexagon head cap screw
901.1 6kt Schraube hexagon head cap screw
901.2 6kt Schraube hexagon head cap screw
901.3 6kt Schraube hexagon head cap screw
903 Verschlussschraube screwed plug
903.1 Verschlussschraube screwed plug
903.2 Verschlussschraube screwed plug
906 Laufradschraube impeller screw
920 6kt Mutter hexagon nut
920.1 6kt Mutter hexagon nut
940 Passfeder key
950 Feder spring
970 Schild shield
800
940
441
970
561
230
524
137101
411
903
411.1
903.1
550.2
901.2
550
906
920
047
550.3
950
550.1
920.1
550.1
901.1
411.1
903.2
900
1)
2)
1) 35/55/65
2) 14/30/50/60
3) nur bei V 155-14/50/55 / for V 155-14/50/55 only

Other manuals for Speck pumpen V 95

Related product manuals