EasyManua.ls Logo

STA-RITE MPRA6G-155L - Installation; Pump Mount Requirements; Important Safety Instructions

STA-RITE MPRA6G-155L
16 pages
Print Icon
To Next Page IconTo Next Page
To Next Page IconTo Next Page
To Previous Page IconTo Previous Page
To Previous Page IconTo Previous Page
Loading...
3
1. Do not connect system to a high pressure or city
water system.
2. Use equipment only in a pool or spa installation.
3. Trapped air in system can cause explosion. BE SURE
all air is out of system before operating or testing
equipment.
Before pressure testing, make the following safety
checks:
Check all clamps, bolts, lids, and system accessories
before testing.
Release all air in system before testing.
Tighten Sta-Rite trap lids to 30 ft. lbs. (4.1 kg-m)
torque for testing.
Water pressure for test must be less than 25 PSI (7.5
kg/cm
2
).
Water Temperature for test must be less than 100
o
F.
(38
o
C).
Limit test to 24 hours. After test, visually check
system to be sure it is ready for operation. Remove
trap lid and retighten hand tight only.
NOTICE: These parameters apply to Sta-Rite
equipment only. For non-Sta-Rite equipment, consult
manufacturer.
INSTALLATION
Only qualified, licensed personnel should install pump
and wiring.
Pump mount must:
Be located away from corrosive or flammable liquids.
Have enough ventilation to maintain air temperature at
less than the maximum ambient temperature rating (Max.
Amb.) listed on the motor model plate. If this pump is
installed in an enclosure/pump house, the enclosure must
have adequate ventilation and air circulation to keep the
temperature in the enclosure at or below the motor’s rated
ambient temperature whenever the pump is running.
Be solid - Level - Rigid - Vibration free. (To reduce
vibration and pipe stress, bolt pump to mount.)
Allow pump suction inlet height to be as close to water
level as possible. Pump will not lift water more than
10'(3m).
Allow use of short, direct suction pipe (To reduce friction
losses).
Allow for gate valves in suction and discharge piping.
Have adequate floor drainage to prevent flooding.
Be protected from excess moisture.
Allow adequate access for servicing pump and piping.
Fire and burn hazard. Modern motors run
at high temperatures. To reduce the risk of fire, do not
allow leaves, debris, or foreign matter to collect around
the pump motor. To avoid burns when handling the
motor, let it cool for 20 minutes before trying to work on
it.
NOTICE: When connecting threaded pipe directly to
IMPORTANT SAFETY
INSTRUCTIONS
Always follow basic safety precautions with this
equipment, including the following.
To reduce the risk of injury, do not
permit children to use this product unless they are
closely supervised at all times.
This pump is for use with permanently
installed pools and may also be used with hot tubs
and spas if so marked. Do not use with storable
pools. A permanently installed pool is constructed in
or on the ground or in a building such that it cannot
be readily disassembled for storage. A storable pool
is constructed so that it may be readily disassembled
for storage and reassembled to its original integrity.
SAVE THESE
INSTRUCTIONS
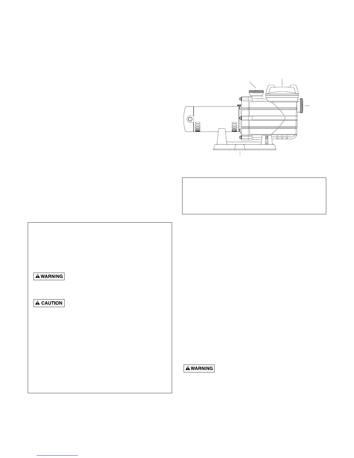
STRAINER BASKET
COVER
DISCHARGE PORT
TO FILTER OR POOL
SUCTION
PORT
FROM
POOL
OR
VACUUM
FILTERS
PUMP MAY BE BOLTED TO LEVEL
FOUNDATION OR MOUNTING BRACKET
037 0893
NOTICE: Port threads are: Internal - 2" NPT for direct
connection to pipe. External - 3-1/4" Buttress. Fits Sta-Rite
U11-200P Union Collar for quick disconnect pipe
connection.
Figure 1

Related product manuals