EasyManua.ls Logo

Sterilight SC-320 - Disinfection Procedure

Default Icon
24 pages
Print Icon
To Next Page IconTo Next Page
To Next Page IconTo Next Page
To Previous Page IconTo Previous Page
To Previous Page IconTo Previous Page
Loading...
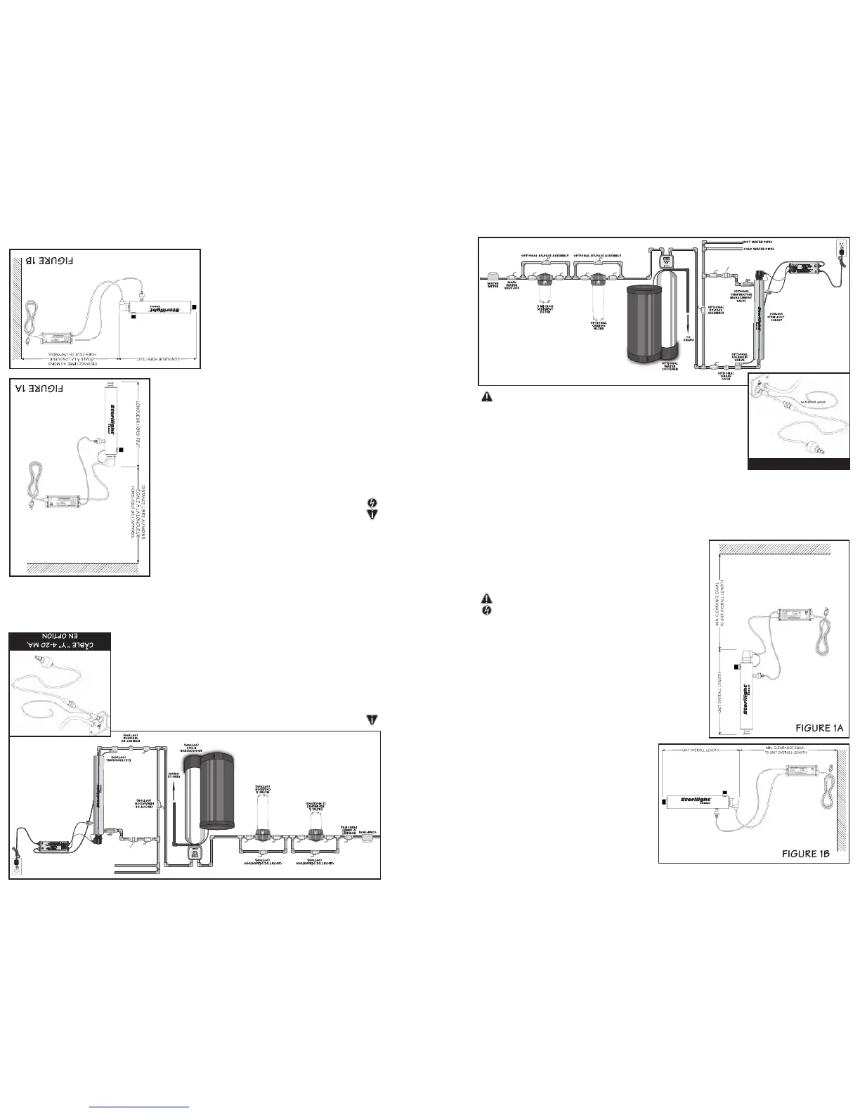
1. The above picture shows the installation of a typical
disinfection system and the related components
that may be used for the installation. The use of
a by-pass assembly is recommended in case the
system requires off-line” maintenance. If this is the
case, it must be noted that the system will require
supplementary disinfection of the distribution
system if any water is used during this by-pass
condition. In addition, during by-pass, the water will NOT be disinfected and
the attached “DO NOT CONSUME THE WATER” tag (included with the
system), should be physically installed on the by-pass assembly until such
time as the system is sanitized and returned to service. Please refer to the
complete disinfection procedure as outlined
on page 6 of this document. If the water is
to be consumed while the system is off-line,
the water must be boiled for twenty minutes
prior to consumption.
2. Select a suitable location for the disinfection
system and its related components. As it
is recommended to install a ground fault
protected circuit (GFCI), make sure that
this is taken into consideration prior to
any installation. The system can either be
installed vertically (inlet port at the bottom)
(Figure 1A), or horizontally (Figure 1B),
however the vertical installation is the
most preferred method. When selecting
a mounting location, you must also leave
enough space to allow for the removal of
the UV lamp and/or quartz sleeve
(typically leave a space equal to
the size of the reactor chamber
itself). (Note: Installation
drawings show Cobalt “PLUS”
system with UV sensor for
representation purpose only)
OPTIMAL FLOW RESTRICTOR
NOTE: MANDATORY FOR
NSF CERTIFIED SYSTEMS
CUTOMER SUPPLIED
GFCI CIRCUIT
TO MATCH VOLTAGE
OPTIONAL 4-20MA “Y” CABLE
5
1. L’illustration ci-dessus présente une configuration
typique d’installation du système de désinfection et des
composants connexes. On recommande l’installation
d’un circuit de dérivation, ce qui permettra l’exécution
d’interventions d’entretien sans interruption de la
distribution d’eau. Dans un tel cas, on doit noter qu’une
opération de désinfection additionnelle du circuit de
distribution sera nécessaire si de l’eau non désinfectée
y a circulé. De plus, l’eau qui circulerait dans le système
à travers le circuit de dérivation NE SERAIT PAS désinfectée – on doit donc
installer bien en vue l’étiquette fournie “NE PAS CONSOMMER L’EAU” sur
le circuit de dérivation jusqu’à ce que le traitement de désinfection complet
du système ait été effectué et qu’il ait été remis en service. Voir la description
complète du processus de désinfection à la
page 6 de ce document. Si de l’eau qui n’a
pas été traitée par le système (à l’occasion
d’une intervention d’entretien) doit être
consommée, on doit la faire bouillir vingt
minutes avant de la consommer.
2. Choisir un emplacement approprié pour
l’installation du système de désinfection et
des composants connexes. Tenir compte de
la recommandation d’installer un disjoncteur
de fuite à la terre (recommandé). Le système
peut être installé verticalement (l’orifice
d’entrée d’eau en bas – Figure 1A) ou
horizontalement (Figure 1B); cependant, il est
préférable de l’installer verticalement. Lors
du choix de l’emplacement d’installation,
veiller à laisser un espace libre suffisant
pour les opérations de remplacement de la
lampe UV et/ou du manchon de
quartz (typiquement, on laisse un
espace correspondant à la taille
du réacteur lui-même). (Note:
pour fins de démonstration
seulement, ces diagrammes
représentent une installation
comprenant le système Cobalt
“PLUS” avec un capteur UV)
SCM-600
STERILIGHT
COBALT
ROBINET DE
GESTION DE LA
TEMPÉRATURE
EN OPTION
LIMITEUR DE DÉBIT OPTIMAL
NOTA : OBLIGATOIRE POUR SYSTÈMES
HOMOLOGUÉS NSF
DISJONCTEUR DE FUITE
À LA TERRE
FOURNI PAR LE CLIENT
POUR ADAPTER LA TENSION
TUYAU D’EAU CHAUDE
TUYAU D’EAU FROIDE
5
NOTE: UV System should
be installed last
NOTE : Monter le système
UV en dernier