EasyManua.ls Logo

Storm 2200 - Page 13

Storm 2200
23 pages
Print Icon
To Next Page IconTo Next Page
To Next Page IconTo Next Page
To Previous Page IconTo Previous Page
To Previous Page IconTo Previous Page
Loading...
2200 Keyboard for Public Environments
Technical Manual
The content of this communication and/or document, including but not limited to images, specifications, designs, concepts and information is
confidential and is not to be used for any purpose or disclosed to a third party without the express and written consent of Keymat Technology Ltd.,
Copyright 2017. All rights reserved.
2200 Series Technical Manual Rev 2 May 2017.docx www.storm-interface.com
Page 13 of 23
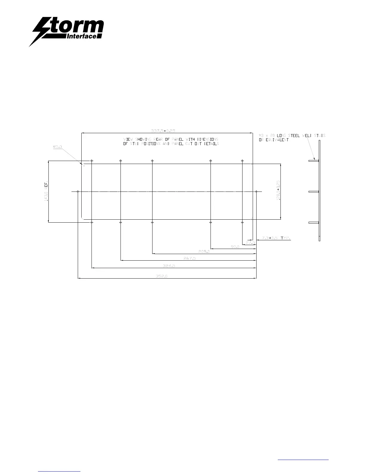
2230 Panel Cut-out
The 2230 keyboard is designed to be secured with brackets and lock nuts. Torque to 25N.cm.
Gasket to be positioned between keyboard and fixing panel prior to installation.
Please ensure a suitable panel material is used to support the keyboard. e.g. 1.6mm 2.0mm steel.
This must provide sufficient rigidity for sealing keyboard to panel. The underside of the panel should be flat,
clean, and free of debris.

Other manuals for Storm 2200

Related product manuals