EasyManua.ls Logo

Strebel Ca 7s - Page 19

Strebel Ca 7s
22 pages
Print Icon
To Next Page IconTo Next Page
To Next Page IconTo Next Page
To Previous Page IconTo Previous Page
To Previous Page IconTo Previous Page
Loading...
Page 19
23/03/01
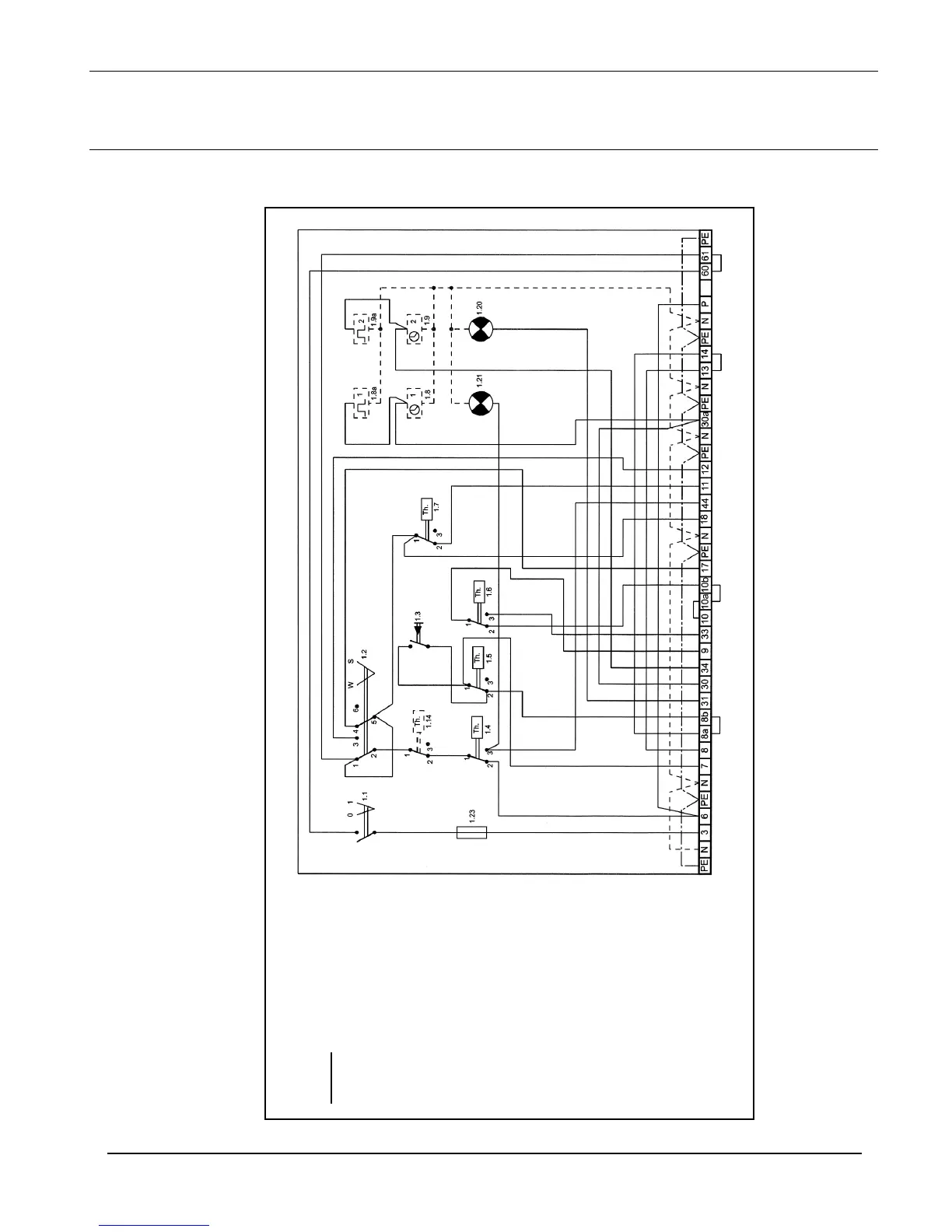
ASSEMBLY INSTRUCTIONS FOR: Ca 7s / BCa 7s
Legend:
1.1 Power Switch.
1.2 Summer / Winter Switch.
1.3 High Limit STB Test
Switch.
1.4 Boiler Limit Thermostat.
1.5 Boiler Thermostat Stage 1.
1.6 Boiler Thermostat Stage 2.
1.7 Calorifier Thermostat.
1.8 Hours Run Meter Stage 1.
1.8a
1.9 Hours Run Meter Stage 2.
1.9a
1.14
1.20 Burner Lock-out Lamp
1.21 High Limit Lamp.
1.23 Fuse 6.3A.
Legend:
1.1 Power Switch ON/OFF.
1.2 Summer / Winter Switch.
1.3 High Limit STB Test
Switch.
1.4 Boiler Limit Thermostat.
1.5 Boiler Thermostat Stage 1.
1.6 Boiler Thermostat Stage 2.
1.7 Calorifier Thermostat.
1.8 Hours Run Meter Stage 1.
1.8a Frequency of Switching
Stage 1 (optional).
1.9 Hours Run Meter Stage 2.
1.9a Frequency of Switching
Stage 2 (optional).
1.14 Boiler Limit Thermostat
(for operation at 110ºC (optional
extra).
1.20 Burner Lock-out Lamp
1.21 High Limit Lamp.
1.23 Fuse 6.3A.
B2B Instrument Control Panel - Internal Wiring Diagram

Related product manuals