EasyManua.ls Logo

Stulz CRS 211 A - Page 13

Stulz CRS 211 A
86 pages
Print Icon
To Next Page IconTo Next Page
To Next Page IconTo Next Page
To Previous Page IconTo Previous Page
To Previous Page IconTo Previous Page
Loading...
13
/04.2016/G35EN
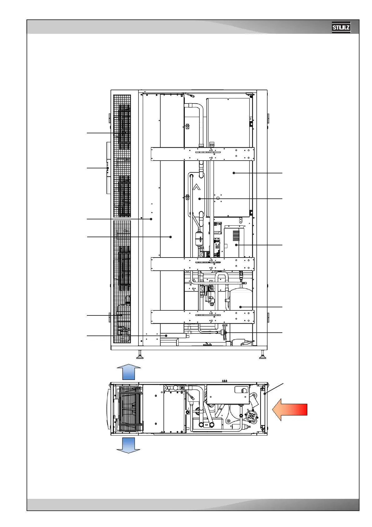
Air filter
E-box
Inverter
Electronic
expansion valve
Compressor
Fan
Controller
Evaporator
Steam humidifier
(Option)
Condensate drip
tray
Internal layout of GES unit, size 1
Condenser
GE-coil

Related product manuals