EasyManua.ls Logo

Stulz CRS 211 A - Page 39

Stulz CRS 211 A
86 pages
Print Icon
To Next Page IconTo Next Page
To Next Page IconTo Next Page
To Previous Page IconTo Previous Page
To Previous Page IconTo Previous Page
Loading...
39
/04.2016/G35
CRL 361 A/AS
EN
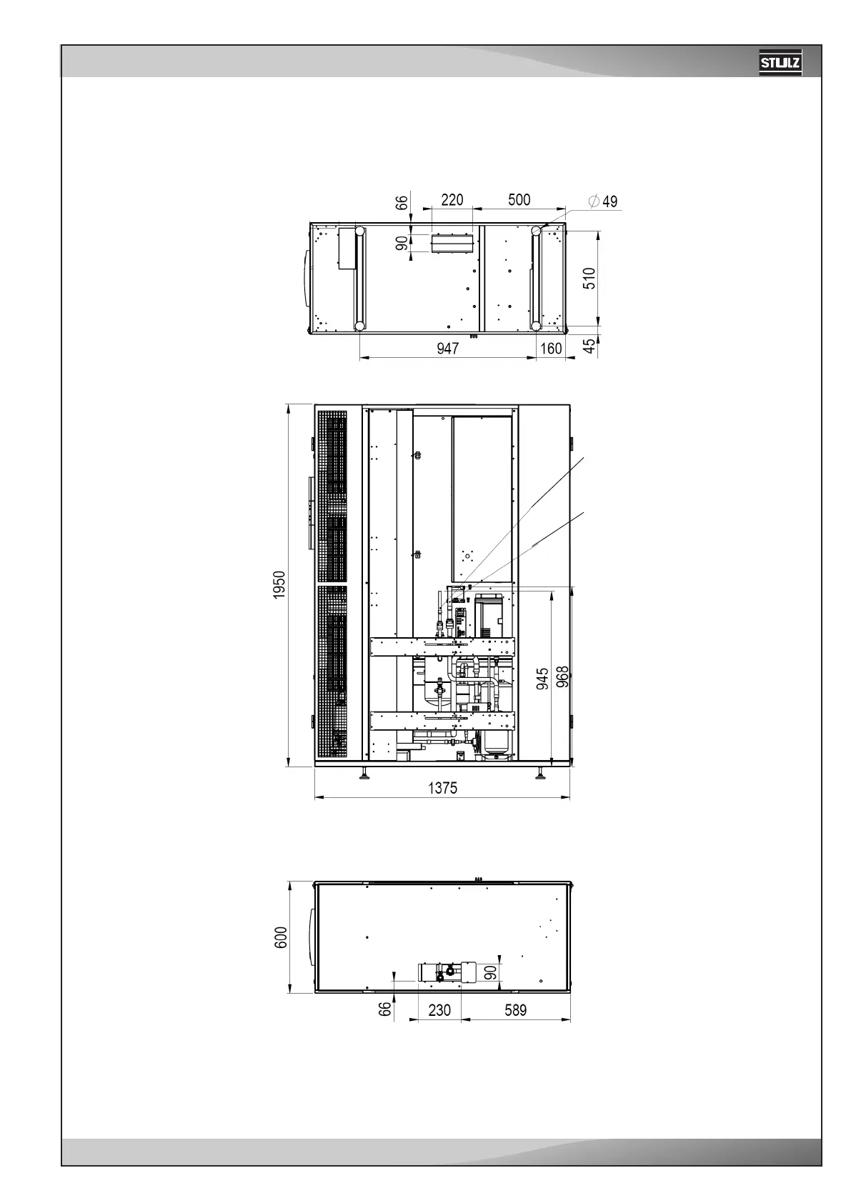
bottom view
side view
top view
4 supports
liquid line
pressure line
Size 2

Related product manuals