EasyManua.ls Logo

Sub-Zero 685 - Page 38

Sub-Zero 685
76 pages
Print Icon
To Next Page IconTo Next Page
To Next Page IconTo Next Page
To Previous Page IconTo Previous Page
To Previous Page IconTo Previous Page
Loading...
38
DOOR MOUNTING
DETAIL
DRAWER MOUNTING
DETAIL
TOP OF
ROUGH
OPENING
77
13
/16"*
(1976)
34
1
/
2
"*
(876)
3
/8"
(10)
13
1
/4"
(337)
1
/2"
(13)
10
1
/4"
(260)
20
3
/8"
(518)
14"(356)
1
5
/16"
(33)
9
3
/4"
(248)
4"
(102)
80"*
(2032)
36"
(914)
24"
(610)
FRONT VIEW SIDE VIEW
(UNIT DIMENSION) (UNIT DIMENSION)
*
1
/2" (13)
+
_
ADJUSTMENT IN LEVELING LEGS
105˚
90˚
90˚ DOOR OPENING
DOOR/DRAWER
CLOSED
MAXIMUM DOOR OPENING
DOOR/DRAWER
CLOSED
19
1
/2"*
(495)34
1
/2"*
(876)
24"
(610)
34
7
/8" (886)
7"*
(178)
*
DOOR/DRAWER PANEL THICKNESS NOT INCLUDED – DIMENSION WILL VARY WITH INSTALLATION
TOP VIEW
25"
(635)
36"
(914)
80"
(2032)
27"
(686)
25"
(635)
C
L
ANTI-TIP
BRACKET
WATER LINE
BOTTOM ENTRY
LOCATION
WATER LINE
SIDE ENTRY
LOCATIONS
1
1
/2"
(38)
1
1
/2"
(38)
27"
(686)
1
1
/2"
(38)
20" (508) 13
1
/2"
(343)
18" (457)
C
L
ANTI-TIP
BRACKET
18" (457)
6"
(152)
TOP VIEW TOP VIEW
SIDE VIEWFRONT VIEW
WATER LINE
SIDE ENTRY
LOCATION
ANTI-TIP
BRACKET
2
1
/2" (64)
20" (508)
3
/4"
(19)
3"
(76)
17
1
/2" (445) 13
1
/2"
(343)
ANTI-TIP
BRACKET
NOTE: ANTI-TIP BRACKET MUST BE INSTALLED TO
PREVENT UNIT FROM TIPPING FORWARD
4
1
/2"
(114)
1
/4"
(6)
LOCATE WATER LINE
(REAR ENTRY) WITHIN
SHADED AREA
LOCATE ELECTRICAL WITHIN
SHADED AREA – ORIENT GROUND
PRONG TO RIGHT AS SHOWN
INSTALLATION
SPECIFICATIONS
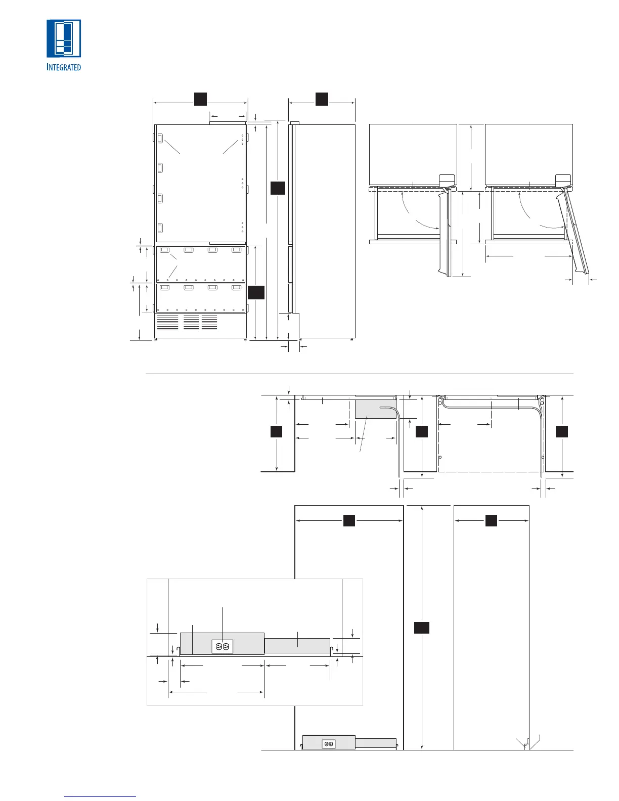
Model 736TC(I)
Model 736TC will not require
the water line connection.
OVERALL DIMENSIONS
Model 736TC(I)
OVER-AND-UNDER
Model 736TC
Model 736TCI
with Ice Maker
MODEL 736TC(I)
Overall Dimensions
Width 36" (914)
Height 80" (2032)
Depth 24" (610)
Finished Opening
Width 36" (914)
Height 80" (2032)
Depth 25" (635)*
*The depth of the unit
is 24" (610) from the
front of the unit to its
back. Your design may
necessitate moving the
unit back or cabinets
forward to achieve a
flush fit. This will
require a minimum
rough opening depth
of 25" (635).

Other manuals for Sub-Zero 685

Related product manuals