EasyManua.ls Logo

Sub-Zero 700-2 Series - Page 153

Sub-Zero 700-2 Series
166 pages
Print Icon
To Next Page IconTo Next Page
To Next Page IconTo Next Page
To Previous Page IconTo Previous Page
To Previous Page IconTo Previous Page
Loading...
Page 153
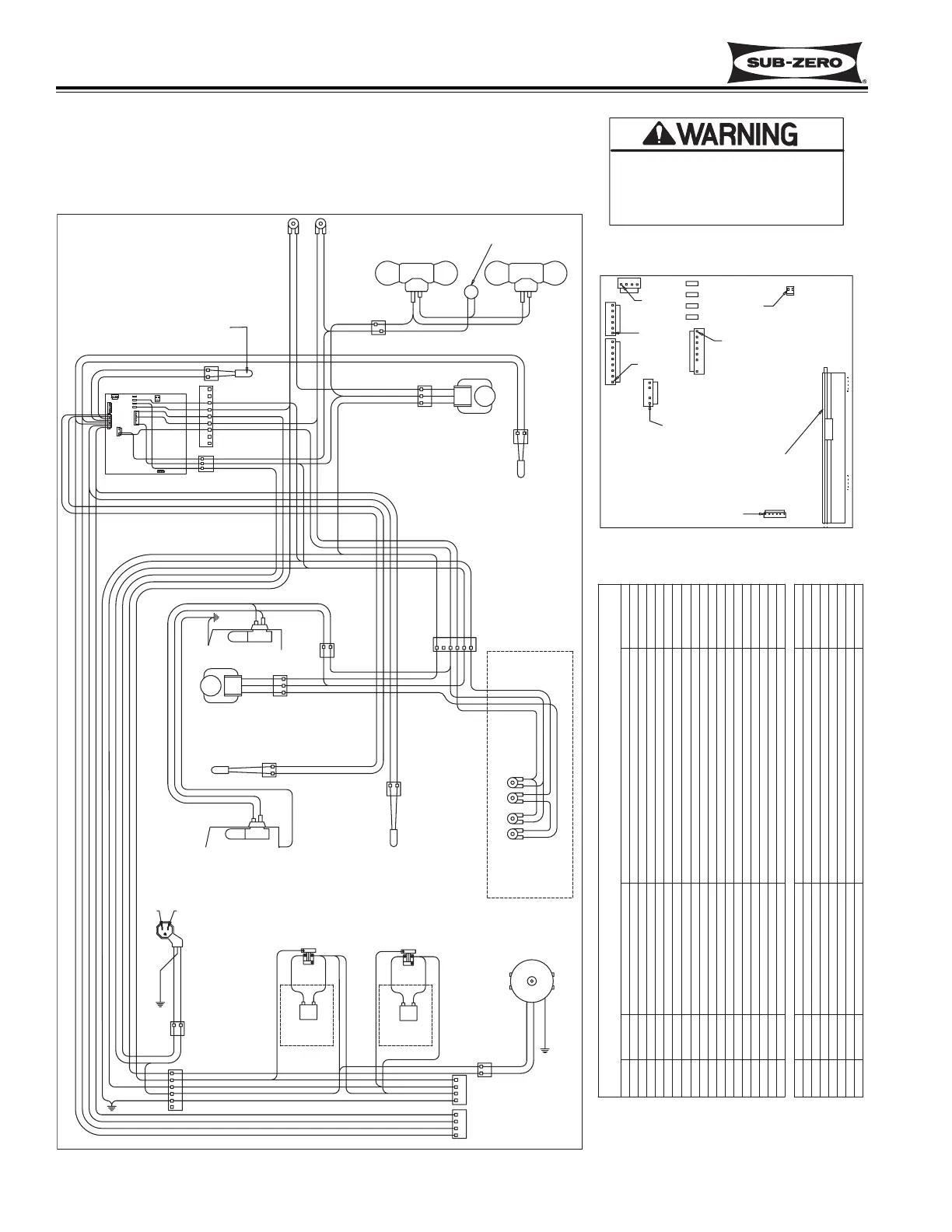
General Information
Integrated (
Integrated (
700-
700-
2) Series
2) Series
10-6
#3756780 - Revision D - July, 2005
2 PURPLE
9 GRAY
DRAWER REF COMPRESSOR
120 VOLT CIRCUITS
CONTROL BOARD SUMMARY
FCOMP
CIRCUIT
NEU
LITES
E10
E7
J7-4
J7-8
L1 POWER IN
DESCRIPTION
NEUTRAL
LIGHTS
NEUTRAL INTO BOARD
POWER INTO BOARD
POWERS REF COMP FOR 2 DRAWER SECTION
FUNCTION
POWERS LIGHTS
BLACK
COLOR
PURPLE
WHITE
YELLOW
-This wiring information is provided for use by qualified
service personnel only.
-Disconnect appliance from electrical supply before
beginning service.
-Be sure all grounding devices are connected when
service is complete.
-Failure to observe the above warnings may result in
severe electrical shock.
GRAYRCOMPE6 UPPER REF COMPRESSOR POWERS UPPER REF COMP
CONDENSER FANC FANJ7-1
POWERS CONDENSER FAN
WHITE/RED
E6E10E2 E7
E2 NOT USED
J7-2 NOT USED
J7-3 NOT USED
J7-5
NOT USED
J7-6
NOT USED
J7-7
NOT USED (NO PIN)
J4-1
DRAWER LIGHTS SENSE
SENSES IF EITHER DRAWER OPEN
ORANGE
J4-2
DOOR LIGHTS SENSE
SENSES IF DOOR OPEN
ORANGE
J4-3
NOT USED(NO PIN)
NOT USED
NOT USED
J4-4
J4-5
J1-1
DRAWER EVAP
J1-2
ORANGE/RED
DRAWER EVAP
BLUE/RED
SENSES DRAWER EVAP TEMP
SENSES DRAWER EVAP TEMP
J1-3
UPPER REF EVAP
J1-5
J1-6
J1-7
J1-8
UPPER REF COMPARTMENT
UPPER REF COMPARTMENT
DRAWER COMPARTMENT
DRAWER COMPARTMENT
BLUE/WHITE
BLUE/WHITE
UPPER REF EVAP
J1-4
ORANGE/YEL
BLUE/YELLOW
BLUE/BLACK
BLUE/BLACK
SENSES UPPER REF EVAP TEMP
SENSES UPPER REF EVAP TEMP
SENSES UPPER REF CABINET TEMP
SENSES UPPER REF CABINET TEMP
SENSES DRAWER CABINET TEMP
SENSES DRAWER CABINET TEMP
LOW VOLTAGE THERMISTOR CIRCUITS
F DR
R DR
EVAP FRZ
EVAP FRZ
EVAP REF
EVAP REF
REF
REF
FRZ
FRZ
PART NUMBER 3756660 REV C
WHITE
PURPLE
TAN
WHITE
GREEN
BLACK
BLACK
CONDENSER
FAN MOTOR
1
6
4
2
L2L1
GREEN
PLAIN
RIBBED
POWER
SUPPLY
CORD
12
PURPLE
WHITE
BLACK
4 ORANGE
GRAY
WHITE W/ RED STRIPE
RED
PURPLE
YELLOW
ORANGE
SWITCH BOX
4 PURPLE
6 YELLOW
2 WHITE
5 ORANGE
3 GREEN
ORANGE
ORANGE
WHITE
UPPER DRAWER LIGHT
FAN MOTOR
UPPER REF EVAP
2 WHITE
1 ORANGE
LOWER DRAWER LIGHT
WHITE
ORANGE
3 GREEN
2 WHITE
1 RED
RED 1
2
3
WHITE
GREEN
ORANGE
WHITE
LIGHT
TERMINATOR
GRAY
RED
YELLOW
ORANGE
5 YELLOW
8 WHITE W/ RED STRIPE
1 ORANGE
2 WHITE
BLUE W/ WHITE STRIPE
BLUE W/ WHITE STRIPE
BLUE W/ YELLOW STRIPE
ORANGE W/ YELLOW STRIPE
BLUE W/ BLACK STRIPE
BLUE W/ BLACK STRIPE
BLACK
PURPLE
GREEN
WHITE W/ RED STRIPE
GRAY
GREEN
CONTROL BOARD DETAIL
WHITE 2
WHITE
3 BLACK
J1
J2
J3
J7
E10
E7
E2
E6
J5
J4
J6
ORANGE 1
J6
J5
J7
J4
J1
J3
J2
PURPLE
GREEN
WHITE
TAN
WHITE 2
PURPLE 1
GREEN 3
REF COMPRESSOR,
DRAWERS
(FRONT)
DRAWER EVAP
FAN MOTOR
WHITE
BLACK
FAN SW
PIN 1
PIN 1
PIN 1
PIN 1
PIN 1
PIN 1
PIN 1
DISPLAY
SENSOR (UPPER
REF CAB)
SENSOR (UPPER
REF EVAP)
UPPER REF
FAN SWITCH
UPPER REF
LIGHT SWITCH
LIGHT SW
SENSOR
(DRAWER CAB)
MFG TEST
TERMINALS
GREEN
3
SENSOR
(DRAWER EVAP)
BLUE W/ RED STRIPE
ORANGE W/ RED STRIPE
BLUE W/ YELLOW STRIPE
ORANGE W/ YELLOW STRIPE
ORANGE W/ YELLOW STRIPE
BLUE W/ YELLOW STRIPE
ORANGE W/ RED STRIPE
BLUE W/ RED STRIPE
4
3
2
1
GRAY
PURPLE
GRAY 4
WHITE W/ RED STRIPE 1
GRAY
UPPER REF
LIGHTS
GREEN
PURPLE
ORANGE
RED
YELLOW
ORANGE W/ RED STRIPE
BLUE W/ RED STRIPE
BLUE W/ BLACK STRIPE
BLUE W/ BLACK STRIPE
ORANGE W/ RED STRIPE
BLUE W/ RED STRIPE
WHITE
WHITE W/ RED STRIPE
REF COMPRESSOR,
UPPER
(REAR)
WHITE
WHITE 2
WHITE
LIGHT SW
FAN SW
CONTROL BOARD
RUNNING
(WHEN USED)
CAPACITOR
RUNNING
(WHEN USED)
CAPACITOR
0
0
0
0
0
0
WIRING DIAGRAM
MODEL: 700TR-2
(Prior to Serial #1755266)

Related product manuals