EasyManua.ls Logo

Sub-Zero 700-2 Series - Page 161

Sub-Zero 700-2 Series
166 pages
Print Icon
To Next Page IconTo Next Page
To Next Page IconTo Next Page
To Previous Page IconTo Previous Page
To Previous Page IconTo Previous Page
Loading...
Page 161
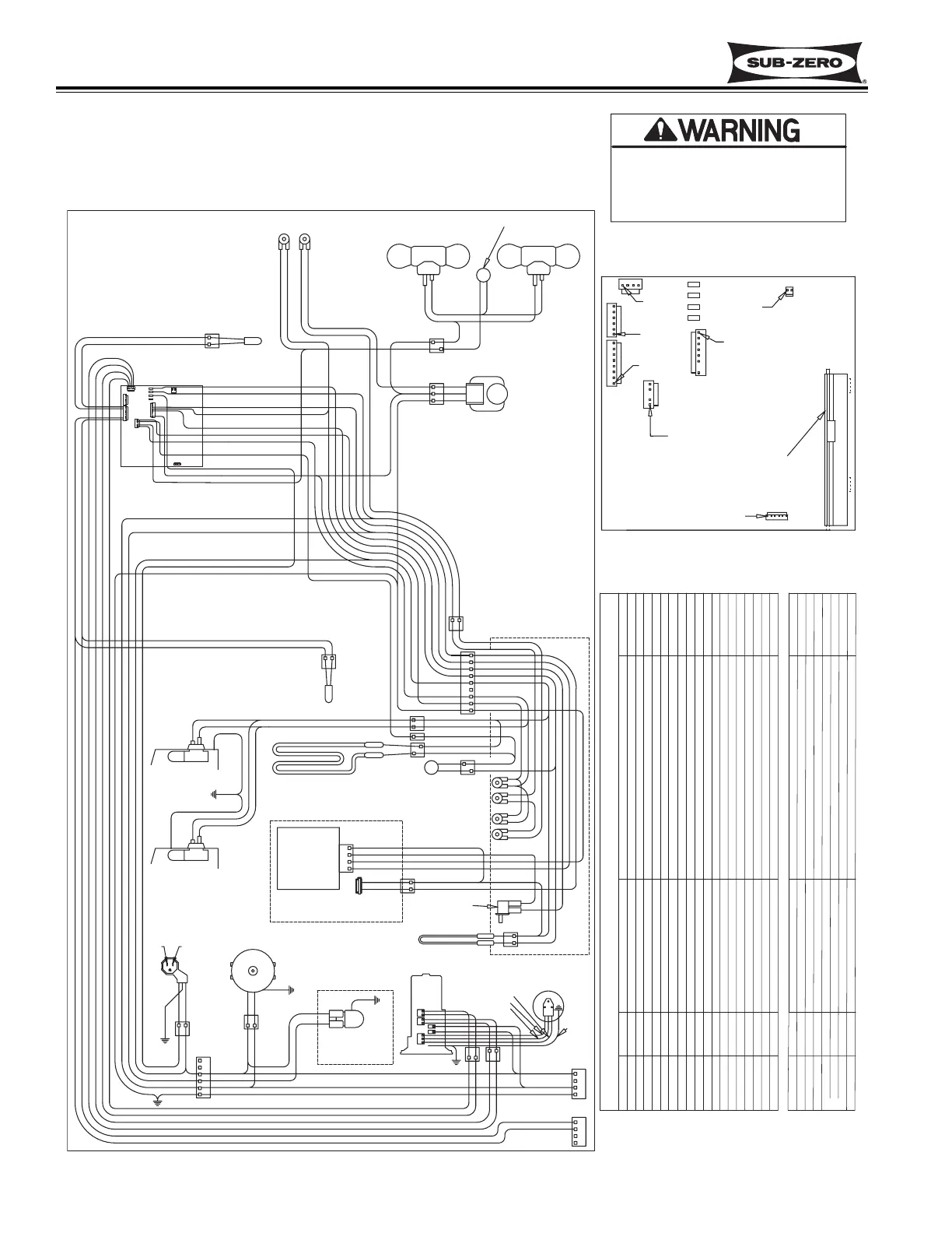
General Information
Integrated (
Integrated (
700-
700-
2) Series
2) Series
10-14
#3756780 - Revision D - July, 2005
ICE MAKER
SWITCH
DEFROST
TERMINATOR
DRAIN TROUGH
HEATER
FRZ VAR SPEED
COMPRESSOR
WHITE W/BLUE STRIPE
PURPLE
TAN
PINK
BLUE
ORANGE
YELLOW
GRAY W/WHITE STRIPE
BLACK
WHITE
ORANGE
UPPER LIGHT
SWITCH
FAN
SWITCH
UPPER DRAWER
LIGHT
LOWER DRAWER
LIGHT
CONTROL
BOARD
DEFROST HEATER
ICE MAKER VALVE SENSOR
DEFROST HEATER SENSOR
ICE MAKER ACC (FILL TUBE)
ICE MAKER POWERS ICE MAKER
SENSES IF WATER VALVE IS ON OR OFF
SENSES IF DEFROST HEATER IS ON OR OFF
POWERS FILL TUBE HEATER AND ACCESSORIES
POWERS DEFROST CIRCUIT
WHITE/BLUE
GRAY/WHITE
TAN
BLUE
PINK
-This wiring information is provided for use by qualified
service personnel only.
-Disconnect appliance from electrical supply before
beginning service.
-Be sure all grounding devices are connected when
service is complete.
-Failure to observe the above warnings may result in
severe electrical shock.
J6
J5
J4
J1
J2
E10
E6
J7
J3
E7
E2
PINK W/BLACK
PINK W/RED
BLUE/RED
ORANGE/RED
WHITE/RED
LOW VOLTAGE CIRCUITS
SERIAL IN
SERIAL IN
NOT USED
EVAP SENSOR
EVAP SENSOR
NOT USED(NO PIN)
DOOR LIGHTS SENSE
DRAWER LIGHTS SENSE
NOT USED(NO PIN)
NOT USED
NOT USED
NOT USED
LIGHTS
NEUTRAL
DESCRIPTION
POWER IN
120 VOLT CIRCUITS
COMPRESSOR
J7-1
DEF HTRE2
E6
E7
E10
CIRCUIT
FCOMP
L1
J7-5
J7-3
J7-2
J7-4
J4-1
J7-7
J7-6
J7-8
LITES
NEU
J4-5
J4-4
J4-3
J4-2
J1-2
J1-1
J3-4
J3-3
J3-2
J3-1
CONTROL BOARD SUMMARY
STATUS DATA FROM V SPEED CONTROL BOX
SENSES FRZ EVAP TEMP
SENSES FRZ EVAP TEMP
SENSES IF DOOR OPEN
SENSES IF EITHER DRAWER OPEN
POWERS LIGHTS
POWERS COMPRESSOR
POWER INTO BOARD
NEUTRAL INTO BOARD
FUNCTION COLOR
GRAY
PURPLE
BLACK
YELLOW
ORANGE
WHITE
ORANGE
J6
J1
J4
J7
J2
J3
E6
E10
E7
E2
J5
NOT USED
IACC
ICE
F DR
R DR
EVAP FRZ
EVAP FRZ
IN(+)
IN(-)
J1-3 THRU 6
YLW W/RED
YLW W/BLACK
SPEED DATA TO V SPEED CONTROL BOX
SERIAL OUT
SERIAL OUT
OUT(-)
OUT(+)
SPEED DATA TO V SPEED CONTROL BOX
STATUS DATA FROM V SPEED CONTROL BOX
BLUE/BLACK
CABINET SENSOR
SENSES FRZ CABINET TEMP
FRZ
J1-7 & 8
PART NUMBER 3757271 REV B
1 WHITE W/BLUE
UPPER
LIGHTS
ICEMAKER
(OPTIONAL)
FILL TUBE
HEATER
WHITE
BLUE1
2
BLACK
BLACK
4 PINK
3 WHITE
1 GREEN
2 TAN
WHITE W/ BLUE
WHITE2
1
WHITE W/ BLUE STRIPE
TAN
PINK
BLUE
WHITE
PURPLE
YELLOW
ORANGE
LIGHT SW
SWITCH BOX
9 TAN
7 PINK
5 BLUE
8 YELLOW
2 WHITE
4 ORANGE
3 GREEN
GRAY W/ WHITE STRIPE
2 WHITE
FAN MOTOR
EVAP
1 GRAY W/WHITE
2 WHITE
ORANGE W/ RED STRIPE
BLUE W/ RED STRIPE
BLACK
BLACK
GREEN
WHITE
RED 1
2
3
WHITE
GREEN
ORANGE
WHITE
LIGHT
TERMINATOR
PURPLE
RED
YELLOW
ORANGE
BLACK
PURPLE
TAN
GREEN
WHITE
DEFROST HEATER
PURPLE
ORANGE W/ RED STRIPE
BLUE W/ RED STRIPE
PURPLE
BLUE W/ RED STRIPE
ORANGE W/ RED STRIPE
GREEN
WHITE
BLACK
WHITE 2
PURPLE
3 GREEN
4
WHITE
BLACK
1 2
L2L1
GREEN
PLAIN
RIBBED
SUPPLY
CORD
POWER
MFG TEST
TERMINALS
2
1
WHITE 2
PURPLE 1
GREEN 3
BLACK
BLACK
GREEN
CONDENSER
FAN MOTOR
WHITE
(OPTIONAL)
SOLENOID
ICEMAKER
5 TAN
TAN
BLUE W/ RED STRIPE
ORANGE W/ RED STRIPE
CONTROL BOARD DETAIL
DISPLAY
PURPLE
1 PURPLE
2 PURPLE
1 BLUE
2 GRAY/WHITE
GREEN
ORANGE 1
WHITE 2
GRAY W/WHITE
1 ORANGE
SENSOR
(EVAP)
FAN SW
PURPLE
GREEN
WHITE
BLACK
TAN
GREEN
TAN
2 WHITE
PURPLE 1
WHITE
BLUE W/ BLACK STRIPE
BLUE W/ BLACK STRIPE
SENSOR
(CABINET)
WHITE W/BLUE
TAN
PINK
BLUE
YELLOW
WHITE
ORANGE
GREEN
ORANGE
ORANGE
LIGHT SW
FAN SW
WHITE
ORANGE
WHITE
ORANGE
GREEN
GREEN
3 PINK W/RED
4 PINK W/BLACK
1 YELLOW W/BLACK
2 YELLOW W/RED
PINK W/RED
PINK W/BLACK
YELLOW W/BLACK
YELLOW W/RED
PINK W/RED
PINK W/BLACK
YELLOW W/BLACK
YELLOW W/RED
PINK W/BLACK
PINK W/RED
YLW W/BLACK
YLW W/RED
1
1
2
2
BROWN
LT. BLUE
BLACK
GREEN
W/YELLOW
V SPEED
CONTROL BOX
CNO8CNO2CNO5
N
C
6
3
1
2
1
2
1
PIN 1
0
0
0
PIN 1
PIN 1
PIN 1
PIN 1
0
PIN 1
PIN 1
0
0
WIRING DIAGRAM
MODEL: 700 TF/I-2V
(Starting with Serial #1898164)

Related product manuals