EasyManua.ls Logo

Sub-Zero 700-2 Series - Page 22

Sub-Zero 700-2 Series
166 pages
Print Icon
To Next Page IconTo Next Page
To Next Page IconTo Next Page
To Previous Page IconTo Previous Page
To Previous Page IconTo Previous Page
Loading...
Page 22
Electronic Control
Integrated (
Integrated (
700-
700-
2) Series
2) Series
3-12
#3756780 - Revision D - July, 2005
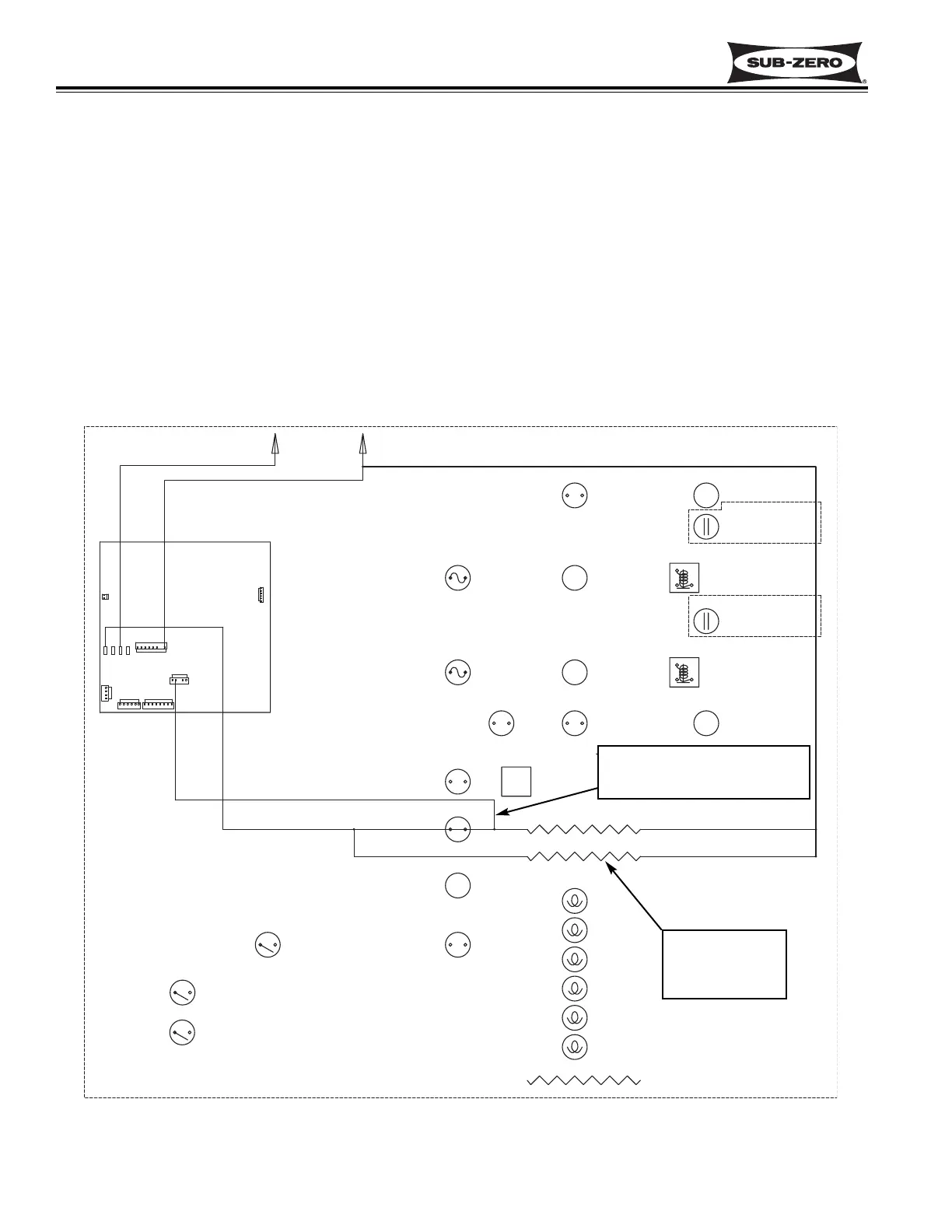
Monitor and Control “Adaptive Defrost” of Freezer Evaporator
Initially the freezer compressor will cycle-run for twelve hours (twenty-four hours in model 700TF/I-2V), after which
the microprocessor sends the signal to the defrost relay on the control board to close. This supplies power to the
defrost heater, and the compressor is switched off (See Figure 3-15). With the “Adaptive Defrost” technique, the
length of time that the heater actually stays on to defrost the evaporator and satisfy the defrost terminator is
observed by the microprocessor. The microprocessor then determines the number of hours before the next defrost.
If the heater stays on for a shorter time than specified, the microprocessor increases the next defrost interval. If the
heater stays on longer than specified, the electronic control decreases the next defrost interval. This is an ongoing
process whereby the defrost time and the defrost interval will vary by unit use.
NOTE: A five minute time delay/dwell follows all defrosts, except in the model 700TF/I-2V where the delay/dwell is
ten minutes. The drain trough heater is energized during defrost and the delay/dwell period.
NOTE: The minimum defrost interval is six hours; The maximum defrost interval is eighty hours; the maximum
defrost duration is twenty-five minutes.
Figure 3-15. 700TC/I-2 Signal Trace Schematic (High Voltage) of Freezer Adaptive Defrost
DRAIN TROUGH
HEATER
J6
J5
J3
E2 E7 E10 E6
J2
J1
J7
J4
HIGH VOLTAGE
DEFROST
TERMINATOR
DEFROST
HEATER
NEUT
115 VOLTS
60 CYCLES
L1
WHITE
BLACK
GRAY/WHITE
BLUE
30-38 OHMS
WHITE
155-175 OHMS
M
M
M
M
M
Length of defrost time monitored
by microprocessor via defrost
sense line
Drain trough
heater energized
during defrost and
delay/dwell period

Related product manuals