EasyManua.ls Logo

Sub-Zero 700BC - Integrated Features Overview; Key Integrated Features

Sub-Zero 700BC
20 pages
Print Icon
To Next Page IconTo Next Page
To Next Page IconTo Next Page
To Previous Page IconTo Previous Page
To Previous Page IconTo Previous Page
Loading...
4
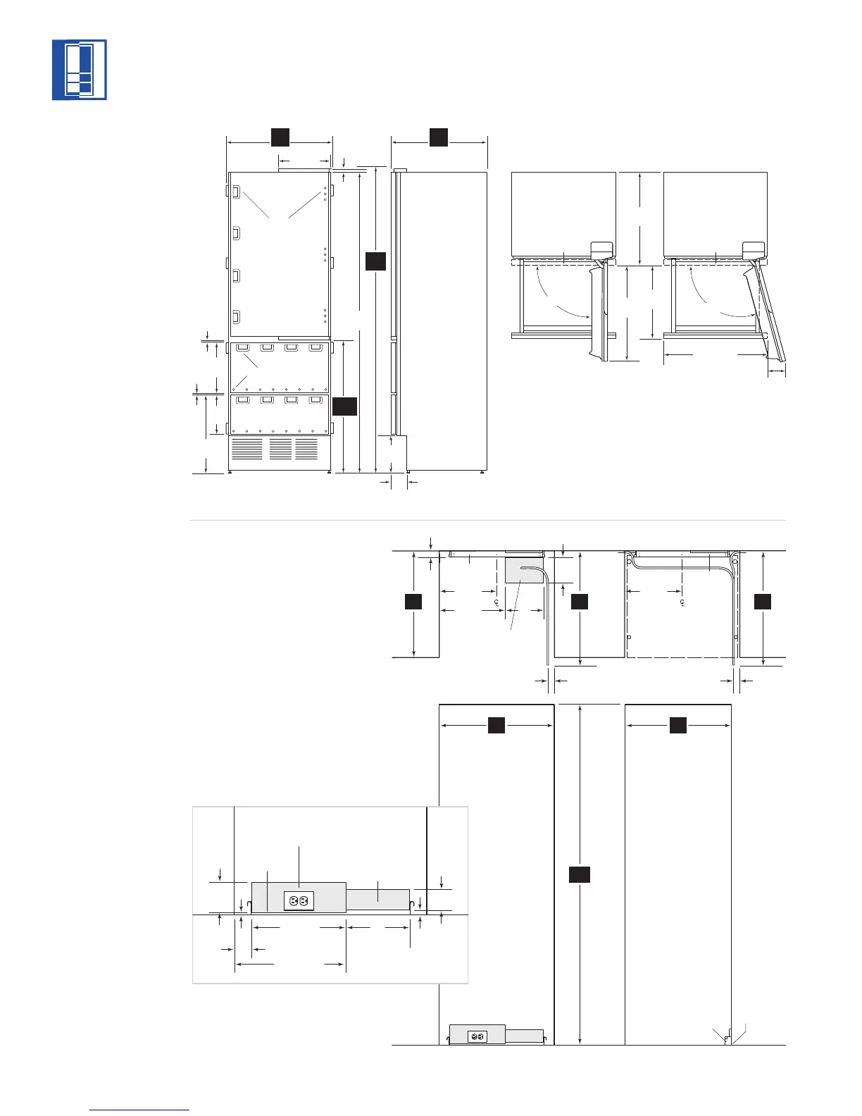
INTEGRATED INSTALLATION SPECIFICATIONS
TOP OF
ROUGH
OPENING
78
9
/1
6
"*
(
1995)
34
1
/2"*
(
876)
1
4"
(
356)
13
/16"
(21)
9
3
/4"
(248)
4"
(102)
8
0"*
(2032)
2
7"
(686)
2
4"
(610)
*
1
/2" (13)
+
_
ADJUSTMENT IN LEVELING LEGS
FRONT VIEW
SIDE VIEW
(UNIT DIMENSION) (UNIT DIMENSION)
3
/8"
(10)
1
3
1
/4"
(
337)
1
/2"
(13)
10
1
/4"
(260)
20
3
/8"
(518)
DOOR
MOUNTING
D
ETAIL
DRAWER
MOUNTING DETAIL
1
05˚
9
9
0˚ DOOR OPENING
D
OOR/ DRAWER
CLOSED
M
AXIMUM DOOR OPENING
*
DOOR/DRAWER PANEL THICKNESS NOT INCLUDED – DIMENSION WILL VARY WITH INSTALLATION
D
OOR/ DRAWER
CLOSED
19
1
/2"*
(495)2
5
1
/2"
*
(
648)
2
4"
(610)
25
7
/8" (657)
4
5
/8"*(117)
TOP VIEW
25"
(635)
27"
(686)
80"
(2032)
27"
(686)
25"
(635)
ANTI-TIP
BRACKET*
WATER LINE
BOTTOM ENTRY
LOCATION
W
ATER LINE
SIDE ENTRY
LOCATIONS
1
1
/2"
(
38)
1
1
/2"
(38)
27"
(686)
1
1
/2"
(38)
15
1
/2"
(
394)
9"
(
229)
13
1
/2"
(343)
13
1
/2"
(343)
A
NTI-TIP
BRACKET
6"
(152)
TOP VIEW TOP VIEW
SIDE VIEWFRONT VIEW
WATER LINE
SIDE ENTRY
LOCATION
ANTI-TIP
BRACKET
NOTE: ANTI-TIP BRACKET MUST BE INSTALLED TO
PREVENT UNIT FROM TIPPING FORWARD
4
1
/2"
(114)
2
1
/2" (64)
15
1
/2" (394)
3
/4"
(19)
3"
(76)
1
/4"
(6)
13" (330) 9"
(229)
ANTI-TIP
BRACKET
LOCATE WATER LINE
(REAR ENTRY) WITHIN
SHADED AREA
LOCATE ELECTRICAL WITHIN
SHADED AREA – ORIENT GROUND
PRONG TO RIGHT AS SHOWN
*PLACEMENT OF THE
ANTI-TIP BRACKET
SHOULD BE 24" (610)
FROM THE FRONT OF THE
UNIT WITHOUT PANELS
TO THE BACK OF THE
ANTI-TIP BRACKET.
INSTALLATION
Models 700TR, 700TF(I) and 700TC(I)
Models without an ice mak
er will not
require the water line connection.
OVERALL DIMENSIONS
Models 700TR, 700TF(I) and 700TC(I)
TALL UNITS
2
7" (686) Wide Units
M
odel 700TR
A
ll Refrigerator
Model 700TF
All Freezer
M
odel 700TFI
A
ll Freezer
w
ith Ice Maker
M
odel 700TC
R
efrigerator | Freezer
M
odel 700TCI
R
efrigerator | Freezer
w
ith Ice Maker
SPECIFICATIONS
Overall Dimensions
Width 27" (686)
Height 80" (2032)
Depth 24" (610)
Finished Opening
Width 27" (686)
Height 80"
(2032)
Depth 25" (635)*
*
The depth of the unit
is 24" (610) from the
front of the unit to its
back. Your design may
necessitate moving the
unit bac
k or ca
binets
forward to achieve a
flush fit. This will
require a minimum
rough opening depth
of 25" (635).

Other manuals for Sub-Zero 700BC

Related product manuals