EasyManua.ls Logo

Sub-Zero 700BC - Model 700 TR All Refrigerator; Model 736 TR All Refrigerator; Warranty Information

Sub-Zero 700BC
20 pages
Print Icon
To Next Page IconTo Next Page
To Next Page IconTo Next Page
To Previous Page IconTo Previous Page
To Previous Page IconTo Previous Page
Loading...
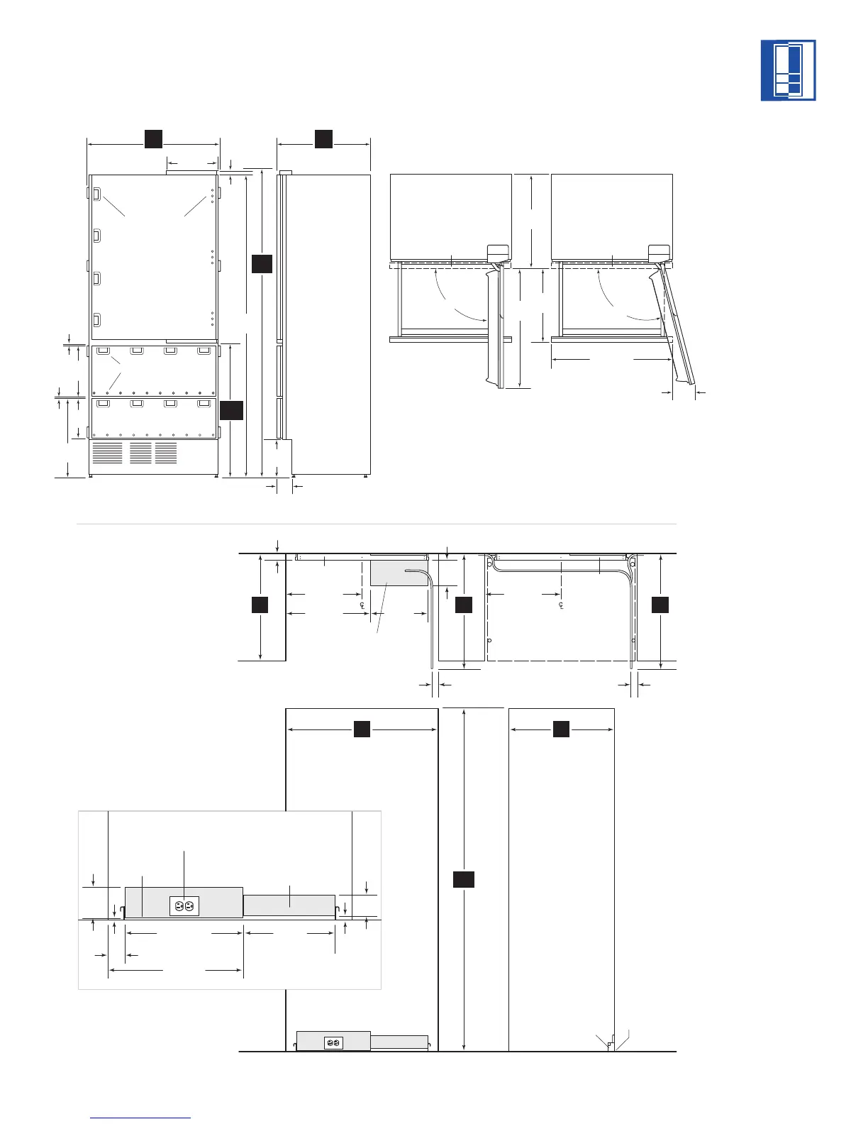
5Dimensions in parentheses are in
millimeters unless otherwise specified.
INTEGRATED INSTALLATION SPECIFICATIONS
DOOR MOUNTING
DETAIL
DRAWER MOUNTING
DETAIL
TOP OF
ROUGH
OPENING
7
7
13
/16"
*
(1976)
34
1
/2"*
(876)
3
/8"
(
10)
1
3
1
/4"
(337)
1
/2"
(
13)
10
1
/4"
(260)
20
3
/8"
(518)
14"(356)
1
5
/16"
(
33)
9
3
/4"
(248)
4"
(102)
8
0"*
(2032)
3
6"
(914)
2
4"
(610)
F
RONT VIEW
SIDE VIEW
(UNIT DIMENSION) (UNIT DIMENSION)
*
1
/2" (
13)
+
_
A
DJUSTMENT IN LEVELING LEGS
105˚
90˚
90˚ DOOR OPENING
DOOR/ DRAWER
CLOSED
MAXIMUM DOOR OPENING
DOOR/ DRAWER
CLOSED
1
9
1
/2"
*
(495)3
4
1
/2"
*
(876)
24"
(610)
34
7
/8" (
886)
7"*
(178)
*
D
OOR/DRAWER PANEL THICKNESS NOT INCLUDED – DIMENSION WILL VARY WITH INSTALLATION
TOP VIEW
ANTI-TIP
B
RACKET*
*PLACEMENT OF THE
ANTI-TIP BRACKET
SHOULD BE 24" (610)
FROM THE FRONT OF THE
UNIT WITHOUT PANELS
TO THE BACK OF THE
ANTI-TIP BRACKET.
25"
(635)
36"
(914)
80"
(2032)
27"
(686)
25"
(635)
WATER LINE
BOTTOM ENTRY
LOCATION
W
ATER LINE
SIDE ENTRY
LOCATIONS
1
1
/2"
(
38)
1
1
/2"
(38)
27"
(686)
1
1
/2"
(38)
20" (508) 13
1
/2"
(
343)
18" (457)
ANTI-TIP
BRACKET
18" (457)
6"
(152)
TOP VIEW TOP VIEW
SIDE VIEW FRONT VIEW
WATER LINE
SIDE ENTRY
LOCATION
ANTI-TIP
BRACKET
2
1
/2" (64)
20" (508)
3
/4"
(19)
3"
(76)
17
1
/2" (445) 13
1
/2"
(343)
ANTI-TIP
BRACKET
NOTE: ANTI-TIP BRACKET MUST BE INSTALLED TO
PREVENT UNIT FROM TIPPING FORWARD
4
1
/2"
(114)
1
/4"
(6)
LOCATE WATER LINE
(REAR ENTRY) WITHIN
SHADED AREA
LOCATE ELECTRICAL WITHIN
SHADED AREA – ORIENT GROUND
PRONG TO RIGHT AS SHOWN
INSTALLATION
Models 736TR and 736TC(I)
Models without an ice mak
er
will not require the water line
connection.
OVERALL DIMENSIONS
Models 736TR and 736TC(I)
TALL UNITS
3
6" (914) Wide Units
M
odel 736TR
A
ll Refrigerator
Model 736TC
Refrigerator | Freezer
M
odel 736TCI
R
efrigerator | Freezer
w
ith Ice Maker
SPECIFICATIONS
Overall Dimensions
Width 36" (914)
Height 80" (2032)
Depth 24" (610)
Finished Opening
Width 36" (914)
Height 80"
(2032)
Depth 25"
(635
)*
*The depth of the unit
is 24" (610) from the
front of the unit to its
back. Your design may
necessitate moving the
unit bac
k or cabinets
forward to achieve a
flush fit. This will
require a minimum
r
ough opening depth
of 25" (635).

Other manuals for Sub-Zero 700BC

Related product manuals