EasyManua.ls Logo

Sub-Zero 700BC - Model 700 TF(I) All Freezer

Sub-Zero 700BC
20 pages
Print Icon
To Next Page IconTo Next Page
To Next Page IconTo Next Page
To Previous Page IconTo Previous Page
To Previous Page IconTo Previous Page
Loading...
6
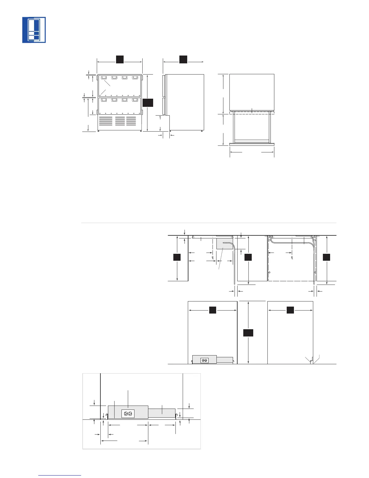
INTEGRATED INSTALLATION SPECIFICATIONS
DRAWER
MOUNTING DETAIL
34
1
/2"*
(876)
9
3
/4"
(248)
4"
(102)
FRONT VIEW
S
IDE VIEW
3
/8"
(10)
13
1
/4"
(337)
1
/2"
(
13)
10
1
/4"
(260)
2
0
3
/8"
(518)
2
7"
(686)
2
4"
(610)
(UNIT DIMENSION) (UNIT DIMENSION)
*
1
/2" (13)
+
_
ADJUSTMENT IN LEVELING LEGS
*
D
RAWER PANEL THICKNESS NOT INCLUDED
DRAWER CLOSED
19
1
/2"*
(495)
2
4"
(
610)
2
5
7
/8" (657)
T
OP VIEW
A
NTI-TIP
BRACKET*
*PLACEMENT OF THE
ANTI-TIP BRACKET
SHOULD BE 24" (610)
FROM THE FRONT OF THE
UNIT WITHOUT PANELS
TO THE BACK OF THE
ANTI-TIP BRACKET.
25"
(635)
27"
(686)
34
1
/2"
(876)
27"
(686)
25"
(635)
WATER LINE
BOTTOM ENTRY
LOCATION
WATER LINE
SIDE ENTRY
LOCATIONS
1
1
/2"
(38)
1
1
/2"
(38)
27"
(686)
1
1
/2"
(38)
15
1
/2"
(394)
9"
(229)
13
1
/2"
(343)
13
1
/2"
(343)
ANTI-TIP
BRACKET
6"
(
152)
TOP VIEW TOP VIEW
SIDE VIEW FRONT VIEW
WATER LINE
SIDE ENTRY
LOCATION
ANTI-TIP
BRACKET
NOTE: ANTI-TIP BRACKET MUST BE INSTALLED TO
PREVENT UNIT FROM TIPPING FORWARD
4
1
/2"
(114)
2
1
/2" (64)
15
1
/2" (394)
3
/4"
(19)
3"
(76)
1
/4"
(6)
13" (330) 9"
(229)
ANTI-TIP
BRACKET
LOCATE WATER LINE
(REAR ENTRY) WITHIN
SHADED AREA
LOCATE ELECTRICAL WITHIN
SHADED AREA – ORIENT GROUND
PRONG TO RIGHT AS SHOWN
INSTALLATION
Models 700BR, 700BF(I) and 700BC(I)
Models without an ice mak
er
will not require the water line
connection.
OVERALL DIMENSIONS
Models 700BR, 700BF(I) and 700BC(I)
BASE UNITS
M
odel 700BR
A
ll Refrigerator
Model 700BF
All Freezer
M
odel 700BFI
A
ll Freezer
with Ice Maker
M
odel 700BC
R
efrigerator | Freezer
Model 700BCI
R
efrigerator | Freezer
with Ice Maker
SPECIFICATIONS
Overall Dimensions
Width 27" (686)
Height 34
1
/2" (876)
Depth 24" (610)
Finished Opening
Width 27" (686)
Height 34
1
/2" (876)
Depth 25" (635)*
*The depth of the unit
is 24" (610) fr
om the
front of the unit to its
back. Your design may
necessitate moving the
unit bac
k or ca
binets
forw
ard to achieve a
flush fit. This will
require a minimum
rough opening depth
of 25" (635).

Other manuals for Sub-Zero 700BC

Related product manuals