EasyManua.ls Logo

Sub-Zero 700BCI - Page 18

Sub-Zero 700BCI
24 pages
Print Icon
To Next Page IconTo Next Page
To Next Page IconTo Next Page
To Previous Page IconTo Previous Page
To Previous Page IconTo Previous Page
Loading...
Integ rated Installation 18
Panel Insta llation
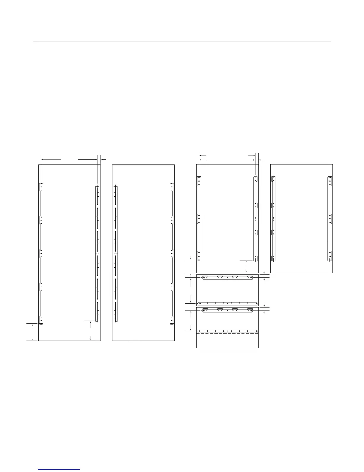
PANEL BRACKET POSITIONING
The illustrations below show placement of pane l mounting
brackets. Dimensions are based on a 4"
(102) toe kick and
a
1
/8" (3) reveal. A reveal of up to
1
/4" (6) is possible, but
panel dimensions need to be adjusted accordingly.
5
3
/16" (132)
5
5
/16"
(135)
8
7
/16"
(214)
11
5
/16"
(287)
1
1
/4"
(32)
1
1
/4"
(32)
23
7
/8" (606) FOR 27" UNITS
3
2
7
/8" (835) FOR 36" UNITS
LH DOOR SWING
BACK OF PANEL
RH DOOR SWING
BACK OF PANEL
BACK OF PANEL
BACK OF PANEL
1
7
/16" (37)
8
11
/16"*
(221)
7
3
/16"*
(183)
24" (610)
1
13
/16" (46)
LH DOOR SWING
BACK OF PANEL
RH DOOR SWING
BACK OF PANEL
*Dimensions are based on a 4" (102) toe kick.
COLUMN MODELS TALL AND DRAWER MODELS

Other manuals for Sub-Zero 700BCI

Related product manuals