EasyManua.ls Logo

Sub-Zero UC-15I - Initial Start-up; Start-up after Automatic Shut-off; Refrigeration System Start-up

Sub-Zero UC-15I
72 pages
Print Icon
To Next Page IconTo Next Page
To Next Page IconTo Next Page
To Previous Page IconTo Previous Page
To Previous Page IconTo Previous Page
Loading...
3-6
#7012423 - Revision A - August, 2009
Theory of Operation
Model UC-15I (Undercounter Ice Machine)
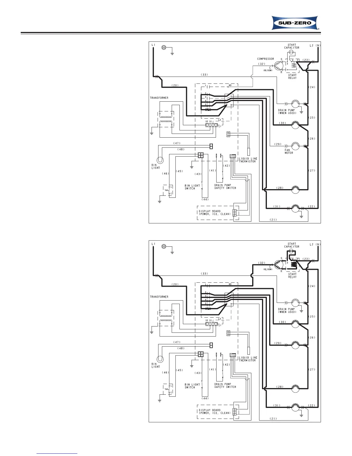
Figure 3-5. Wire Diagram - Initial Start-up
HOT-GAS
HARVEST VALVE
CONTROL BOARD
BIN
THERMOSTAT
(CLOSED)
WATER VALVE
WATER
PUMP
FUSE
Figure 3-6. Wire Diagram - Refrigeration System Start-up
COMPRESSOR
HOT-GAS
HARVEST VALVE
CONDENSER
FAN MOTOR
CONTROL BOARD
BIN
THERMOSTAT
(CLOSED)
WATER VALVE
WATER
PUMP
FUSE
Initial Start-up /
Start-up after Automatic Shut-off
For 175 seconds (2.9 minutes) the water
pump, water inlet valve, and hot-gas (har-
vest) valve are energized (See Figure 3-5).
This is done for the following reasons:
1. The water pump will start to spray
water indicating the ice machine is on
and this also helps to clear the evapo-
rator/cubes.
2. The water inlet valve opens, filling and
overflowing the water trough.
3. The harvest valve opens, helping to
equalize the refrigeration system before
ice production begin.
Refrigeration System Start-up
For 5 seconds the compressor, condenser
fan motor, water pump, water inlet valve,
and hot-gas (harvest) valve are energized
(See Figure 3-6). The main reason for
leaving the harvest valve open at this time
is to start and run the compressor for 5 sec-
onds unloaded. This lengthens the life of
the compressor.

Table of Contents

Other manuals for Sub-Zero UC-15I

Related product manuals