EasyManua.ls Logo

Subaru 2016 Outback - Fuse Panel Located in the Engine Compartment

Subaru 2016 Outback
566 pages
Print Icon
To Next Page IconTo Next Page
To Next Page IconTo Next Page
To Previous Page IconTo Previous Page
To Previous Page IconTo Previous Page
Loading...
Black plate (546,1)
Model "A2520BE-A" EDITED: 2015/ 5/ 25
Specifications/Fuses and circuits
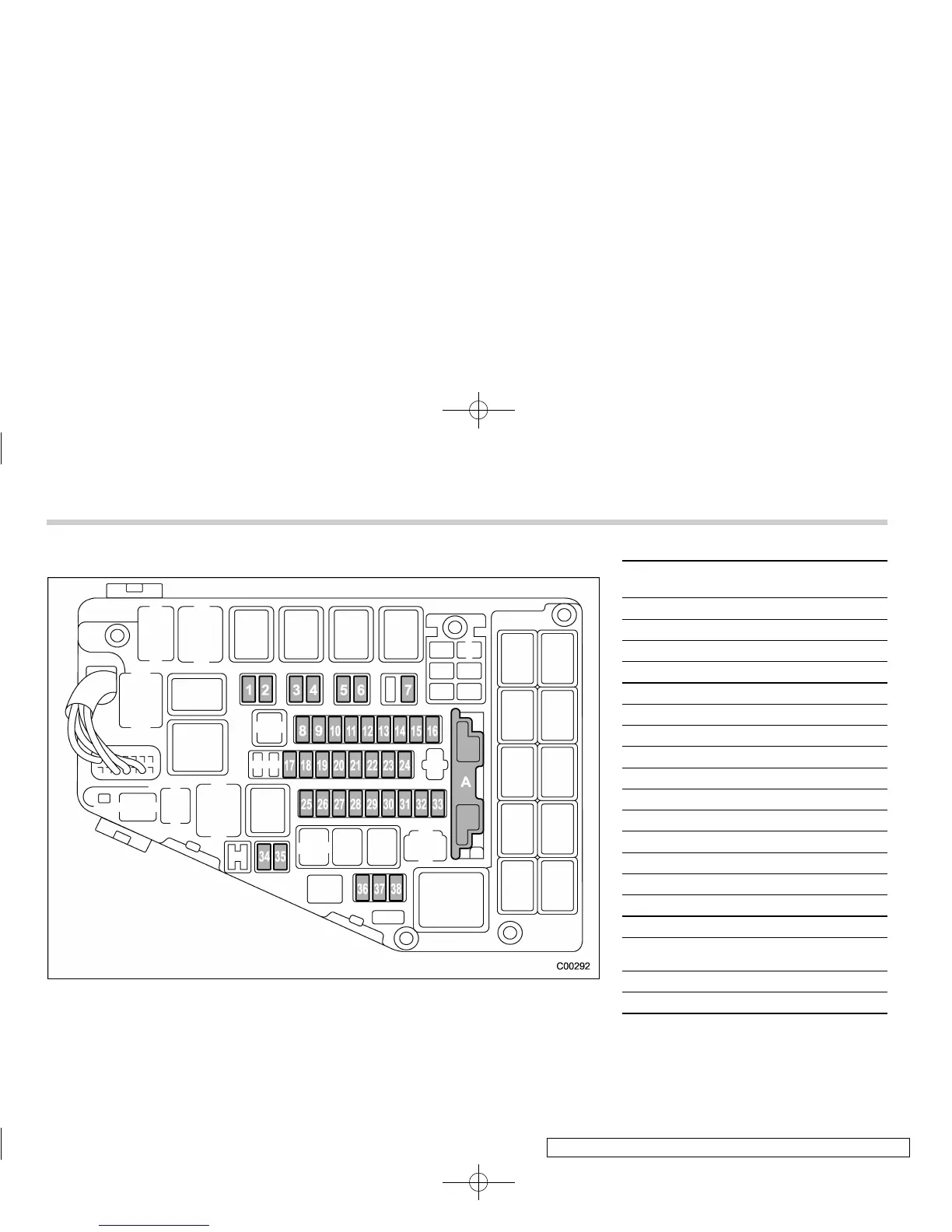
& Fuse panel located in the engine compartment
A) Main fuse
Fuse
panel
Fuse
rating
Circuit
1 7.5A HORN RH
2 7.5A
HORN LH
3 10A
ILLUMI
4 10A TAIL
5 15A H/L LO RH
6 15A H/L LO LH
7 10A H/L HI LH
8 7.5A DCM
9 15A D/L
10 10A H/L HI RH
11 7.5A ALT-S
12 20A FUEL
13 15A HAZARD
14 30A IG2
15 7.5A PU B/UP
16 7.5A OBD
17 20A
*1
25A
*2
O2 HTR
18 15A E/G2
19 15A ETC
*1: 2.5 L models
*2: 3.6 L models
12-12

Table of Contents

Related product manuals