EasyManua.ls Logo

Subaru IMPREZA 1995 - Rear Window Defogger System

Subaru IMPREZA 1995
95 pages
Print Icon
To Next Page IconTo Next Page
To Next Page IconTo Next Page
To Previous Page IconTo Previous Page
To Previous Page IconTo Previous Page
Loading...
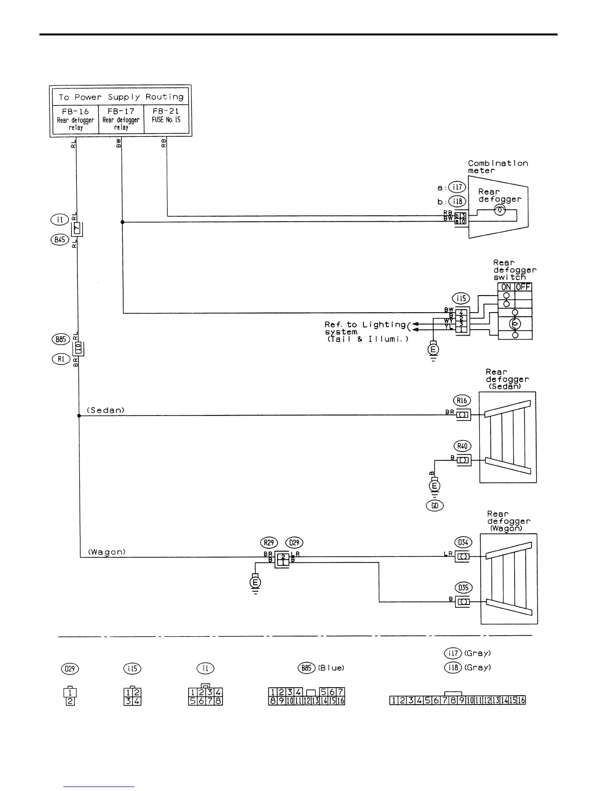
23. REAR WINDOW DEFOGGER SYSTEM
GU52-02
62
6-3 WIRING DIAGRAM
5. Wiring Diagram