EasyManua.ls Logo

Subaru RGX6500/E - Generator Wiring Diagrams; Wiring Diagram (RGX2900, RGX3600)

Subaru RGX6500/E
41 pages
Print Icon
To Next Page IconTo Next Page
To Next Page IconTo Next Page
To Previous Page IconTo Previous Page
To Previous Page IconTo Previous Page
Loading...
ENGLISHFRANÇAISEESPAÑOL
-
31
-
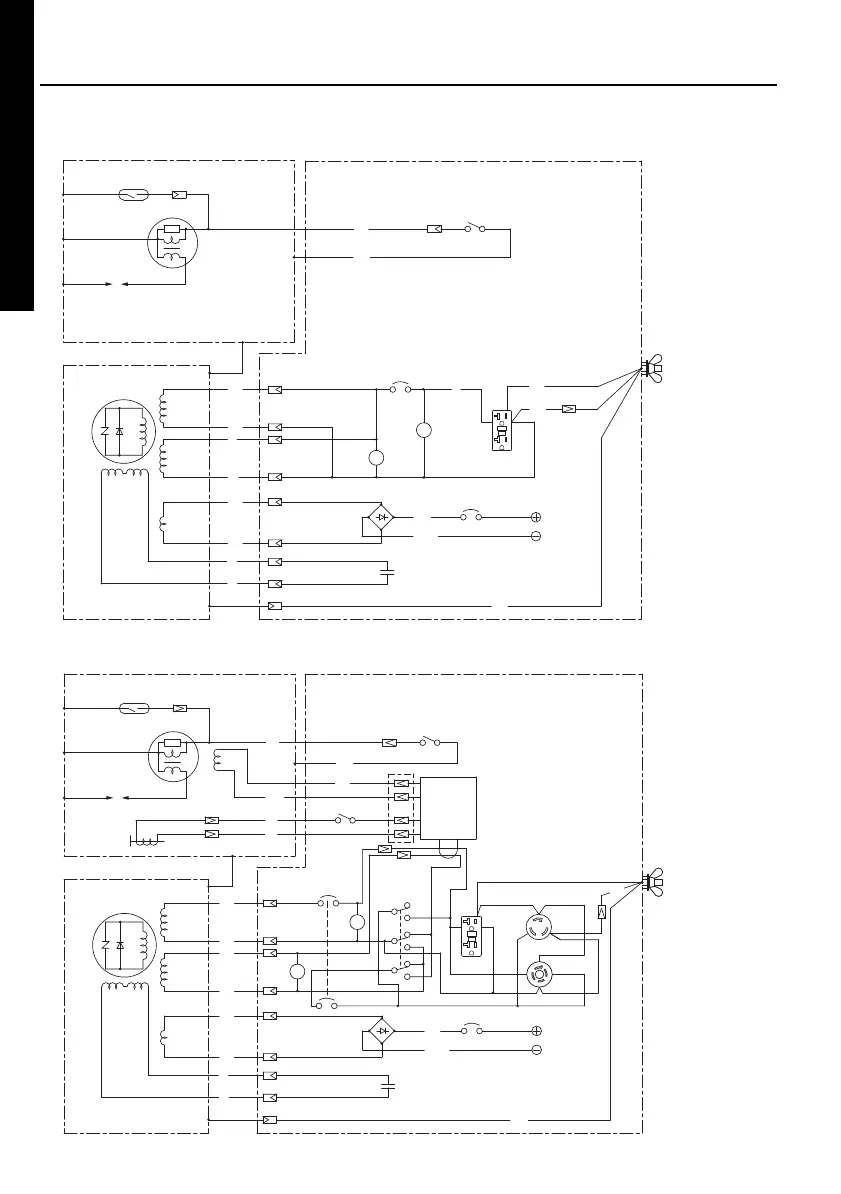
12. WIRING DIAGRAM
Oil sensor
Ignition coil
Spark plug
PL
Hr
WH
Gry
R
Grn
Grn
ENGINE
GENERATOR
CONT.BOX
Blk
Grn
AC circuit
breaker
Circuit breaker
Pilot
lamp
Hour
meter
Diode stack
Assy
Rotor
Field
Winding
AC
Winding 2
AC
Winding 1
DC
Winding
Condenser
Winding
Engine switch
DC output
terminal
Org
Brn/W
Earth
(Ground)
terminal
Condenser
Blk
Blu
R
W
Brn
Brn
Y
Y
REC1
20A
Oil sensor
Ignition coil
Solenoid
Charge coil
Blu
LBlu
W
W
3
2
1
5
1
2
3
4
5
6
7
8
9
PL
Hr
G
WH
G
W
X
G
X
W
Y
Blk
Gry
Spark plug
Grn
AC circuit
breaker
Pilot
lamp
Hour
meter
Circuit breaker
Full power
switch
Idle control switch
ENGINE
GENERATOR
Rotor
CONT.BOX
Field
Winding
AC
Winding 2
AC
Winding 1
DC
Winding
Condenser
Winding
Grn
Idle
control
unit
Engine switch
DC output
terminal
Org
Diode stack
Assy
Brn/W
Earth
(Ground)
terminal
Condenser
Blk
Blu
R
W
Brn
Brn
Y
Y
REC1
20A
REC3
30A
REC2
20A
RGX2900 (60Hz-120V)
RGX3600 (60Hz-120/240V)
Blk : Black
Wiring color code
Blk/W : Black/White
Blu : Blue
LBlu : Light blue
Brn : Brown
Brn/W : Brown/White
Grn : Green
Grn/W : Green/White
Org : Orange
Gry : Gray
R : Red
W : White
Y : Yellow
Grn/Y : Green/Yellow
W/Blk : White/Black
Pur : Purple
RGX7500usGU7220.indd31 2011/06/1521:49:02

Related product manuals