EasyManua.ls Logo

Subzero WOLF ICB WS Series - REFRIGERANT FLOW DIAGRAMS

Subzero WOLF ICB WS Series
73 pages
Print Icon
To Next Page IconTo Next Page
To Next Page IconTo Next Page
To Previous Page IconTo Previous Page
To Previous Page IconTo Previous Page
Loading...
Page 38
4-6
#7013455 - Revision A - April, 2009
Sealed System Information
International W
International W
ine Storage
ine Storage
(ICBWS)
(ICBWS)
Series
Series
REFRIGERANT FLOW DIAGRAMS
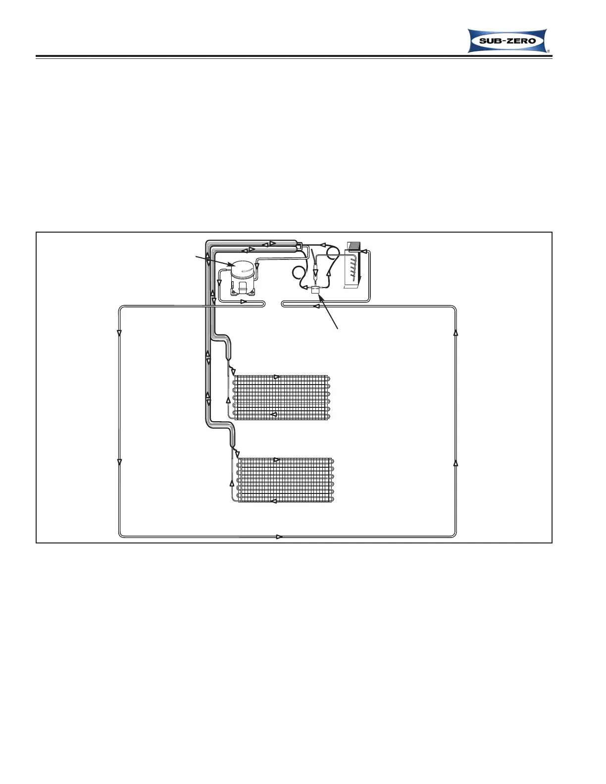
Figure 4-16. Model ICBWS-30 Refrigerant Flow
Frame Heater (Hot Gas)
Upper
Compartment
Evaporator
Lower
Compartment
Evaporator
Upper Heat
Exchanger
Lower Heat
Exchanger
Dual Refrigerant
Valve with Filter-Drier
Condenser
Compressor

Related product manuals