EasyManua.ls Logo

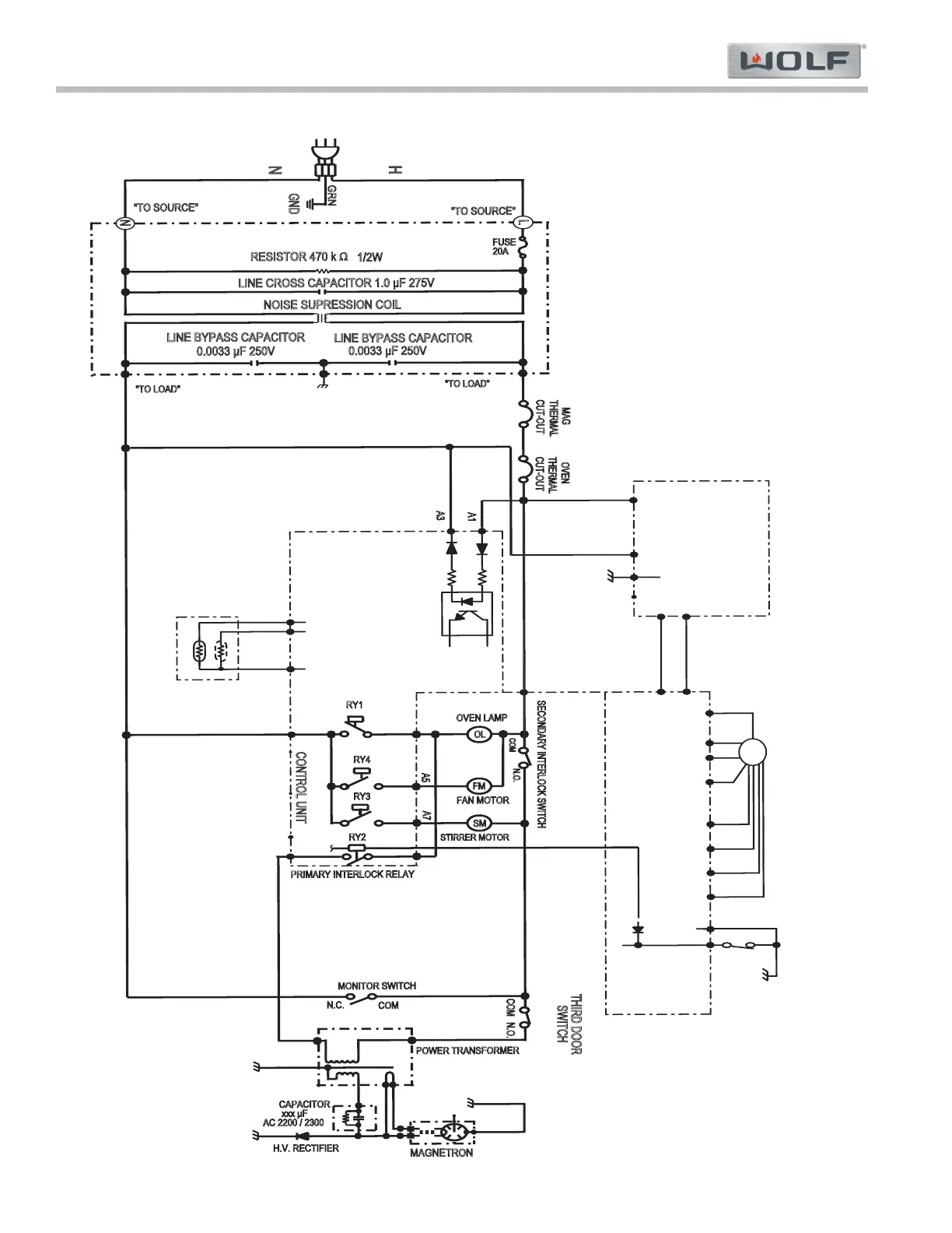
Subzero Wolf MD24 - Wiring Diagrams; Section 6 - Wiring Diagrams; MD Wiring Schematic (off Condition)

Subzero Wolf MD24
42 pages
Print Icon
To Next Page IconTo Next Page
To Next Page IconTo Next Page
To Previous Page IconTo Previous Page
To Previous Page IconTo Previous Page
Loading...
Page 41
MD24 and MD30
Wiring Diagrams
6-2
#824820 - Revision A - December, 2013
㻴㼁㻹㻵㻰㻵㼀㼅㻌
㻌㻌㻿㻱㻺㻿㻻㻾
&
&
ࠉ
ࠉࠉ
ࠉࠉ
ࠉࠉ
㻯㻻㻺㼀㻾㻻㻸㻌㼁㻺㻵㼀
㹌㸯
㹌㸰
㹌㸱
㹌㸲
㹌㸳
㹌㸴
㹌㸵
㹌㸶
㻿㼃㻵㼀㻯㻴㻵㻺㻳㻌㻾㻱㻳㼁㻸㻭㼀㻻㻾㻌
㹼㹼
㹂㹋
㻹㻵㻯㻾㻻㼃㻭㼂㻱㻌㻰㻾㻭㼃㻱㻾
㻰㻻㻻㻾㻌㻻㻼㻱㻺㻙㻯㻸㻻㻿㻱㻌
㻹㻻㼀㻻㻾
㻰㻻㻻㻾
㻿㻱㻺㻿㻵㻺㻳
㻿㼃㻵㼀㻯㻴
C
C
㹄㸯
㹄㸰
㹄㸱
MAGNETRON
N
L
RESISTOR 470 k
Ω
1/2W
LINE CROSS CAPACITOR 1.0 µF 275V
NOISE SUPRESSION COIL
0.0033 µF 250V
LINE BYPASS CAPACITOR
0.0033 µF 250V
LINE BYPASS CAPACITOR
FUSE
20A
CUT-OUT
THERMAL
THERMAL
OVEN
MAG
CUT-OUT
H
N
GRN
NOISE FILTER
GND
"TO SOURCE"
"TO LOAD"
"TO LOAD"
"TO SOURCE"
FAN MOTOR
SM
FM
OL
A5
STIRRER MOTOR
OVEN LAMP
SECONDARY INTERLOCK SWITCH
RY1
RY2
CAPACITOR
xxx µF
AC 2200 / 2300
H.V. RECTIFIER
POWER TRANSFORMER
PRIMARY INTERLOCK RELAY
A7
4
YR
MONITOR SWITCH
N.C.
COM
N.O.
COM
N.O.
COM
THIRD DOOR
SWITCH
CONTROL UNIT
3YR
A1
A3
㹄㸯㹄㸯
CN201
CN201
CN10
1
CN101
MD WIRING SCHEMATIC (OFF CONDITION)

Table of Contents