EasyManua.ls Logo

Sunbeam MA-6400W2 - Technical Schematics and Circuit Description; Schematic Diagram of Microwave Oven

Sunbeam MA-6400W2
31 pages
Print Icon
To Next Page IconTo Next Page
To Next Page IconTo Next Page
To Previous Page IconTo Previous Page
To Previous Page IconTo Previous Page
Loading...
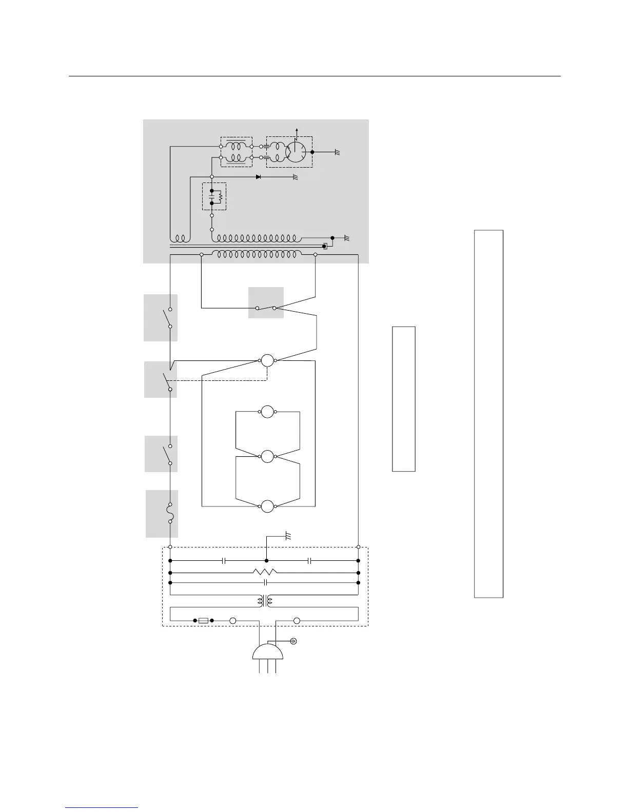
SCHEMATIC DIAGRAM
4-2
** NOTE : DOOR IS OPENED.
BK : BLACK  BL : BLUE BN : BROWN
RD : RED WH : WHITE GN: GREEN
L
L
N
GN
BN
BL
BL
BL
WH
WH
OVEN
THERMOSTAT
SECONDARY
SWITCH
WH
MONITOR
SWITCH
OVEN
LAMP
FAN
MOTOR
TURN
TABLE
MOTOR
TIMER
MOTOR
BK BK
BK
BK
4
3
RDRD
RD
RD
RD
WH
T.MF.M T.T.MO.L
H.V DIODE
MAGNETRON
CHOKE FILTER(optional)
1
2
FUSE
15A
PRIMARY
SWITCH
TIMER
SWITCH
H.V
TRANSFORMER
H.V
CAPACITOR
N
AC 120V
60Hz
IMPORTANT SAFETY NOTE: THE COMPONENTS IN SHADED AREAS ON THIS SCHEMATIC DIAGRAM INCORPORATE SPECIAL FEATURES
IMPORTANT FOR PROTECTION FROM MICROWAVE RADIATION, FIRE, ELECTRICAL SHOCK, AND OTHER
HAZARDS. WHEN SERVICING IT IS ESSENTIAL THAT ONLY MANUFACTURER'S SPECIFIED PARTS
BE USED FOR THE CRITICAL COMPONENTS IN THE SHADED AREAS OF THE SCHEMATIC DIAGRAM.
NOTICE: SINCE THIS IS A BASIC SCHEMATIC DIAGRAM, THE VALUES OF COMPONENTS AND
SOME PARTIAL CONNECTIONS ARE SUBJECT TO CHANGE FOR IMPROVEMENT.

Related product manuals