EasyManua.ls Logo

Superior BRF-3875 - COLD CLIMATE INSULATION; FIREPLACE FINISHES; Mantels and Trim; Hearth Extensions and Wall Shields

Superior BRF-3875
20 pages
Print Icon
To Next Page IconTo Next Page
To Next Page IconTo Next Page
To Previous Page IconTo Previous Page
To Previous Page IconTo Previous Page
Loading...
NOTE: DIAGRAMS & ILLUSTRATIONS NOT TO SCALE.
17
COLD CLIMATE INSULATION
If you live in a cold climate, it is especially
important to seal all cracks around the fire-
place opening with noncombustible material
and wherever cold air could enter the room.
Surrounding materials must be caulked where
it meets the black metal facing of the fireplace
to avoid cold air intrusion. Use noncombus-
tible caulking material only on fireplace facing
to seal. Also, the outside air inlet duct should
be wrapped with noncombustible insulation to
minimize the formation of condensation. Do
not place insulation materials on top of fire-
place or against chimney sections.
Note: A 2" air space must be preserved for
all combustible materials extending for any
continuous length adjacent to the chimney
(See **Note).
It is especially important to insulate between
the studs of an outside chase cavity and under
the floor if the floor is above ground level. Do
not place insulation directly against the fire-
place or chimney system.
FIREPLACE FINISHES
Mantels and Trim
It is sometimes best to frame your fireplace
after it is positioned and the chimney is in-
stalled. Frame enclosure for chimney and fire-
place with 2 x 4’s (or heavier) lumber.
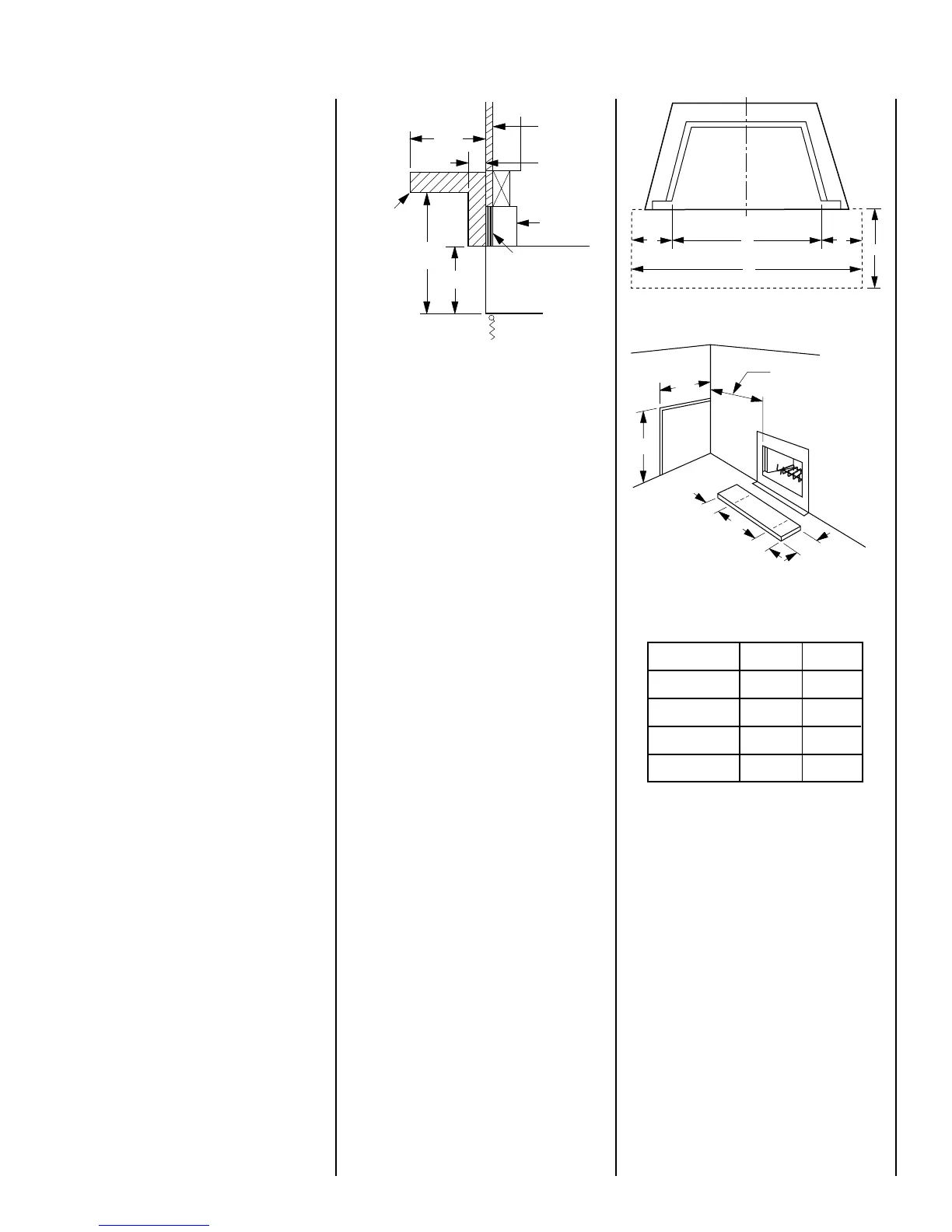
Note: The header may rest on the two (2) metal
top spacers on top of the unit but the header
must not be notched to fit around the spacers.
These fireplaces may sit directly on a combus-
tible surface. A 2" air space is required be-
tween combustible framing and the chimney
(
See **Note
). Combustible mantels and trim
may be installed 12" above the fireplace open-
ing as per NFPA 211, Section 7-3.3.3. and
Figure 42
.
If a mantel is of a non-combustible
material, it is exempt from these requirements
as long as it does not interfere with the instal-
lation or operation of glass doors or block the
inlets and outlets on the BCF Series fireplaces.
**Note: 1" clearance when installing FTF8 on
38" models or FTF10 on 43" models.
12"
Min.
6 1/2"
Fireplace
Opening
Non-Combustible
Wall Covering
Spacer
Combustible
Mantel
and Trim
12"
Max.
1 1/2"
Finished
Wall
Typical Installation
Figure 42
Figure 43
A
B
D
C
C
Hearth Extensions and Wall Shields
A hearth extension must be installed with
all fireplaces. It is to protect the combustible
floor in front of the fireplace from both radiant
heat and sparks.
The hearth extension must extend 8" beyond
both sides of the fireplace opening and 16"
beyond the front (
see Figure 43
). Use a
hearth extension constructed of a durable
noncombustible material having an equal or
greater insulating value of k = .84BTU/In Hr
Ft
2
°F or a thermal resistance that equals or
exceeds r = 1.19 In Ft
2
Hr °F /BTU. With
these values, determine the minimum thick-
ness/material required using the formula
and the Table on page 17.
Note: Any noncombustible material whose k
value is less than .84 or whose r value is more
than 1.19 is acceptable.
If the fireplace is installed on a combustible
floor, use the metal safety strips (provided)
on the floor extending half under the fireplace
and half under the hearth extension (refer to
Figures 6 and 7
).
A wall shield is required where a continuous
perpendicular side wall is within 12" of the
fireplace opening, (
see Figure 44
). Use a 24"
W x 30" H wall shield constructed of millboard
or a durable, noncombustible material having
an equal or greater insulating value than K =
.54BTU/IN FT
2
HR °F. At no time may a
perpendicular side wall be closer than 7".
Hearth Extension Dimensions
Opening 38" 43"
A 16" 16"
B 30 ¹⁄₄" 35"
C 8" 8"
D 46 ¹⁄₄" 51"
If a continuous perpendicular side wall is closer
than 15" (18" on 43" models) to the fireplace
opening, a wall shield is required. Use a 40" x
40" x ¹⁄₂" wall shield constructed of millboard or
a durable non-combustible material with equal
or greater insulating value than:
K = .84BTU-IN./SQ.FT.-HR.-°F
In no case shall a continuous perpendicular side
wall be closer to the fireplace opening than 8".
If fireplace is installed diagonally across a 90°
corner no wall shields are required.
Figure 44
Wall Shield Required
If Less Than 15"
For 38" Units And
18" For 43" Units.
In No Case Closer
Than 8" From Opening.
A
B
C
C
40"
40"

Related product manuals