EasyManua.ls Logo

Tappan TGF657BFW2 - Page 23

Tappan TGF657BFW2
24 pages
Print Icon
To Next Page IconTo Next Page
To Next Page IconTo Next Page
To Previous Page IconTo Previous Page
To Previous Page IconTo Previous Page
Loading...
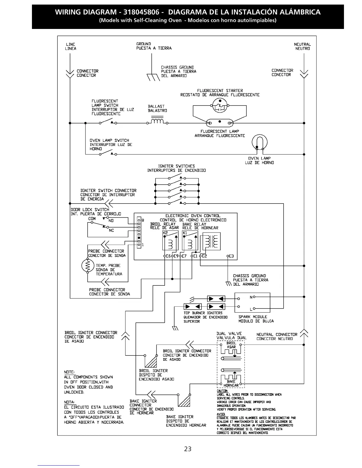
LINE
LINEA
CONNECTORCDNECTDR
FLUORESCENT
LAMP SWITCH
INTERRUPTDR DE LUZ
FLUORESCENTE
_ _._
T OVEN LAMP SWITCH
I INTERRUPTOR LUZ DE
IGNITER SWITCH CONNECTOR
CONECTOR DE INTERRUPTOR
DE ENERGIA
, <(
DOOR LOCK SWITCH
INT. PUERTA DE CERRDJO
PRD_BE C<ONNECTOR
/_NECTOR DE SONDA
I _ }TEMP. PROBE
SONDA DE
T TEMPERATURA
, <<
PROBE CONNECTOR
CONECTDR DE SDNDA
BROIL IGNITER CONNECTOR
CDNECTDR DE ENCENDIDD
DE ASADB
NOTE:
ALL COMPONENTS SHOWN
IN OFF POSITION,WITH
OVEN DOOR CLOSED AND
UNLOCKED.
NOTA:
EL CIRCUITO ESTA ILUSTRADO
CON TODOS LOS CONTROLES
A "OFF'(APAGADO).PUERTA DE
HDRNO ABIERTA Y NDCERRADA.
GROUND
PUESTA A TIERRA
CHASSIS GROUND
PUESTA A TIERRA
DEL ARMARID
CONNECTOR
CONECTOR
BALLAST
BALASTRO
o_rn'T
FLUORESCENT STARTER
REOSTATO DE ARRANQUE FLUORESCENTE
FLUORESCENT LAMP
ARRANQUE FLUDRESCENTE
IGNITER SWITCHES
INTERRUPTDRS DE ENCENDIDD
OVEN LAMP
LUZ DE HORNO
ELECTRONIC OVEN CONTROL
CONTROL DE HORNO ELECTRONICO
BROIL RELAY BAKE RELAY
RELE DE ASAR RELE DE HORNEAR
I QUEMADOR DE ENCENDIDO SPARKL_DDULE
SUPERIOR MODULO DE BUJIA
DUAL VALVE
VALVULA DUAL
<(
,, ,,
BROIL IGNITER CONNECTOR ', ',
CDNECTDR DE ENCENI)IDD
DE ASADD , ,
i i
i i
i i
i i
i i
i i
i i
i i
i
CAUTION,
LABEL ALL V[RES PRIOR TO DISCONNEET_N WHEN
S@VICINO CONTROLS.
W_INGS ERROR CAN CAUSE [MPRnp[ AND
D_GERDUS OP[ATmN.
VERIFY PROP[ OPERATION AFT[] SERVIC_G.
AVIS{)
BAKE IGNITER ETIQUETE TODDS LOS AL_BRES ANTES DE DESCONECTAR PAR
DISPOTO DE REALIZ.AR ET MANTENIM[[TO DE LOS CDNTROLES.[ROR DE
ENCENDIDO HORNEAR ALAMBRAJE PUlE CAUSAR UN FUNCIONANI[TO INCORRECTO
Y PELIOROSO.VERIQUE S[ EL FUNCIONAM[ENTOESTA
CORRELTD DESPUES DEL NANTENINIENTO.
BROIL IGNITER
DISPOTO DE
ENCENDIDD ASADO
--<<
BAKE IGNITER
CONNECTOR
CONECTDR DE ENCENI)IDO
DE HORNEAR
NEUTRAL CONNECTOR
CONECTDR NEUTRD
NEUTRAL
NEUTRO
/
x,
23

Related product manuals