EasyManua.ls Logo

TCL TAC-09CSA/M - Page 19

TCL TAC-09CSA/M
36 pages
Print Icon
To Next Page IconTo Next Page
To Next Page IconTo Next Page
To Previous Page IconTo Previous Page
To Previous Page IconTo Previous Page
Loading...
TCL Air Conditioner Service Manual
19
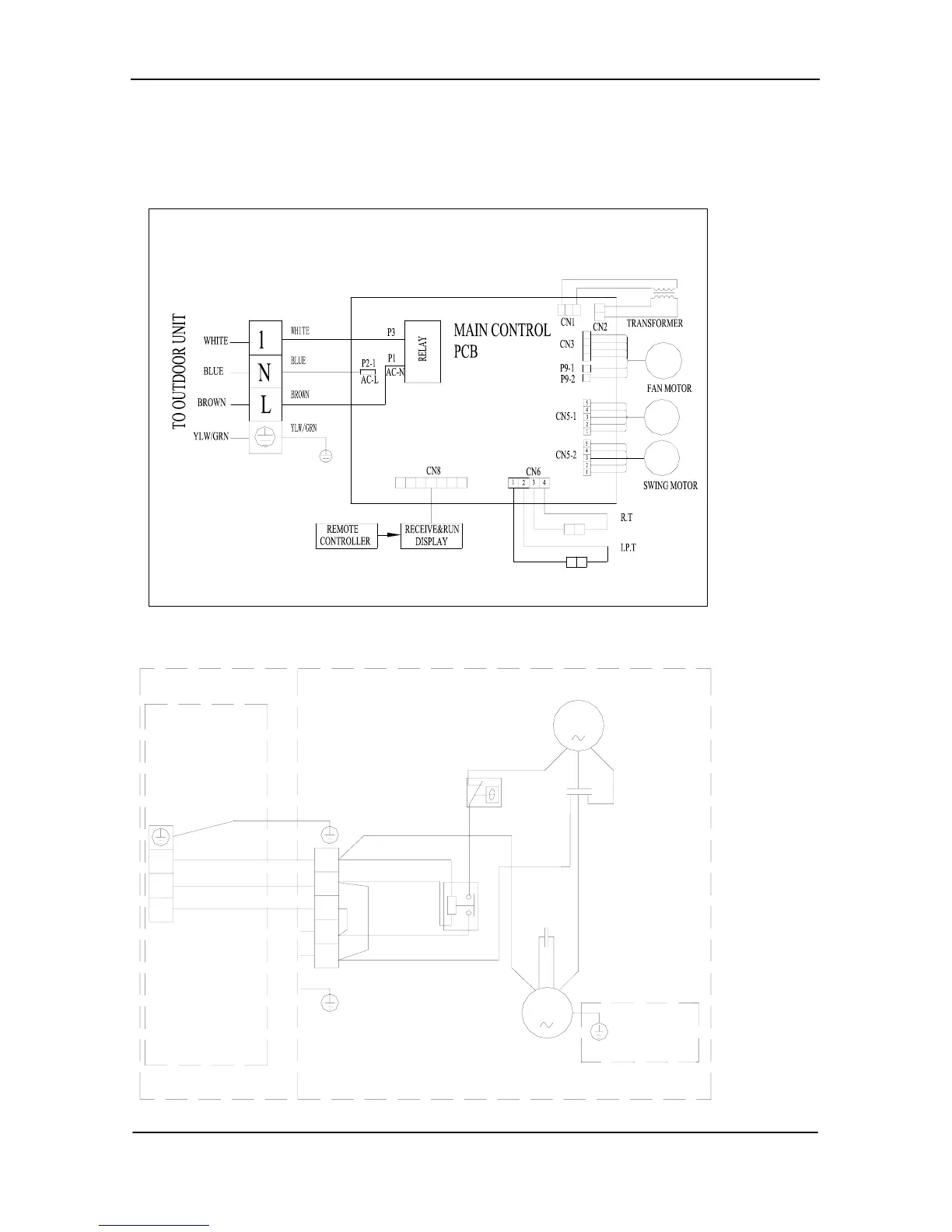
WIRING DIAGRAM
MODEL:TAC-24CSA/M
INDOOR UNIT:
FM
SM
SM
OUTDOOR UNIT
Compressor
White(Black)
CM
R(M)
S
Red
Blue
Compressor
Capacitor
Protector
C
White
Brown
YLW/GRN
Yellow
Fan Capacitor
FM
Optional Part
Fan Motor
Outdoor Unit
Indoor Unit
Red
Red
Blue
Blue
YLW/GRN
White
White
Blue
White
Blue
YLW/GRN
Brown
Power Supply
Contactor
L
1
N
1
N
L
L
N

Related product manuals