EasyManua.ls Logo

Tecma X-light - Zentralisierte Süßwasseranlage; Impianto Centralizzato Acqua Dolce

Default Icon
Print Icon
To Next Page IconTo Next Page
To Next Page IconTo Next Page
To Previous Page IconTo Previous Page
To Previous Page IconTo Previous Page
Loading...
Operation/installation/service manual MACERATOR TOILETS
Manuale di utilizzo / installazione / manutenzione TOILET MACERATRICI
X-light / Privilege / Evolution / Breeze / E-Breeze / Silence Plus / Elegance / Saninautico / Prestige
132
www.thetfordmarine.com / TECMA SRL Via Flaminia / Loc Castel delle Formiche/ 05030 Otricoli (TR) / Italy
Manual rev 25.2014 ©TECMA SRL
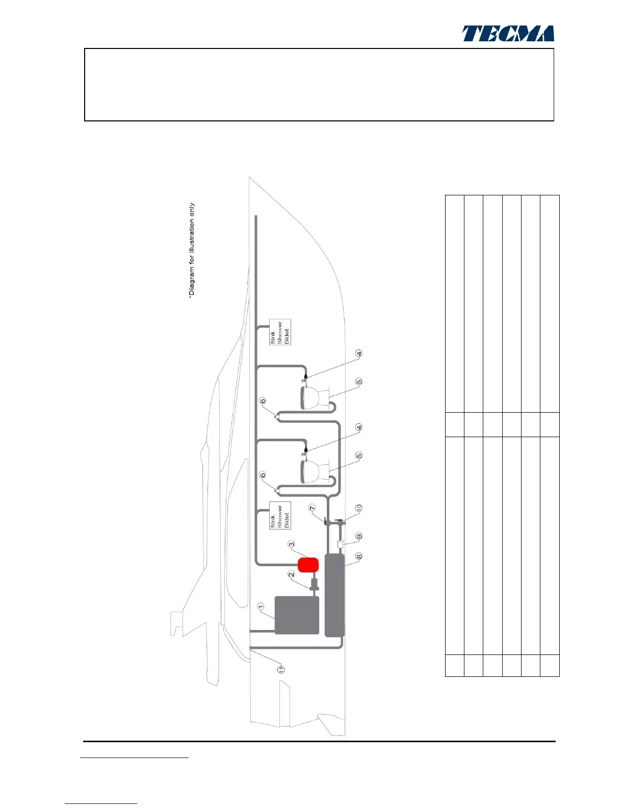
8.5 CENTRALIZED FRESH WATER SYSTEM / IMPIANTO CENTRALIZZATO ACQUA DOLCE
TECMA VENTILATION VALVE
Y SEL
ECTION VALVE
HOLDING TANK with TECMA sensor
HOLDING TANK DISCHARGE PUMP
BLACK WATER OUTLET
- HULL
BLACK WATER OUTLET
- DECK
6
7
8
9
10
11
FRESH WATER TANK
FRESH WATER PUMP
ACCUMULATOR
SOLENOID
TECMA MACERATOR TOILET
1
2
3
4
5

Table of Contents