EasyManua.ls Logo

TECO 36 SPECIAL - 18 Schéma Circuit Pneumatique

TECO 36 SPECIAL
301 pages
Go to English
To Next Page IconTo Next Page
To Next Page IconTo Next Page
To Previous Page IconTo Previous Page
To Previous Page IconTo Previous Page
Loading...
180 Manuel d’utilisation
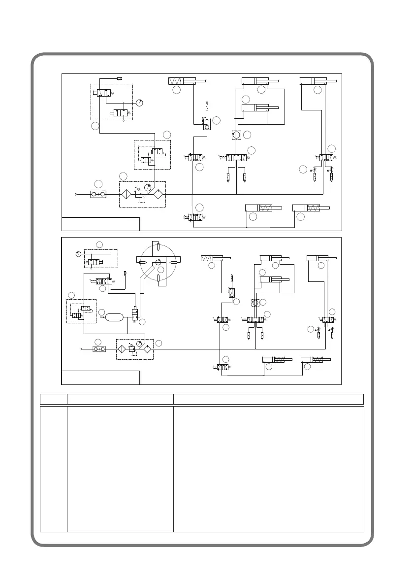
18. SCHÉMA CIRCUIT PNEUMATIQUE
REF. DESCRIZIONE DESCRIPTION
01 INNESTO RAPIDO MASCHIO QUICK UNION
  
03 VALVOLA GONFIAGGIO RAPIDO QUICK INFLATING VALVE
04 PISTOLETTA DI GONFIAGGIO INFLATING GUN AND GAUGE
05 VALVOLA STALLONATORE BEAD BREAKING VALVE
06 VALVOLA SCARICO RAPIDO QUICK DISCHARGED VALVE
07 CILINDRO STALLONATORE BEAD BREAKING CYLINDER
08 VALVOLA AUTOCENTRANTE SELF-CENTERING CHUCK VALVE
09 RACCORDO GIREVOLE ROTATING UNION
10 CILINDRO AUTOCENTRANTE SELF-CENTERING CHUCK CYLINDER
11 VALVOLA DI GONFIAGGIO INFLATING VALVE
12 VALVOLA A MEMBRANA VALVE
13 VALVOLA DI SICUREZZA SAFETY VALVE
14 UNITA’ DI GONFIAGGIO INFLATE UNION BOX
15 SILENZIATORI REGOLABILI REGULATE SYLENCER
16 VALVOLA PALO VERTICALE VERTICAL POST VALVE
17 CILINDRO PALO VERTICALE VERTICAL POST CYLINDER
18 PULSANTE BLOCCAGGIO BRACCIO LOCKING HORIZONTAL ARM BUTTON
19 CILINDRO BLOCCAGGIO BRACCIO LOCKING HORIZONTAL ARM CYLINDER
20 CILINDRO BLOCCAGGIO ASTA VERT LOCKING VERTICAL SHAFT CYLINDER
8-16 bar
MAX 10 bar
01
02
03
04
05
06
07
08
09
10
10
SCHEMA PNEUMATICO STD

15
16
17
18
19
20
8-16 bar
MAX 10 bar
MAX 11 bar
01
02
03
11
05
06
07
08
09
10
10
SCHEMA PNEUMATICO T.I.

12
13
14
09
15
16
17
18
19 20

Table of Contents

Related product manuals